Contact
Tell us about your needs

2100 KINGS HIGHWAY UNIT 481

For Sale
$299,000

BTC: 9.96666667

ETH: 149.50000000

22 days
2 bds
2 ba
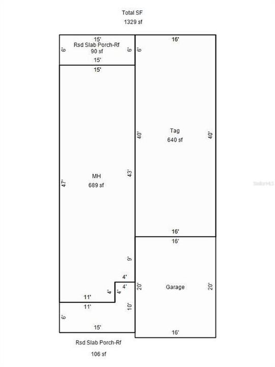
1,329 sqft
Est. Estimated sales range: $0 - $0
$0

Overview

2005 Palm Harbor built home with an oversize one car garage and amazing views. You will enjoy watching the sunrise from your front porch and watching the sunset from your back porch. This home is situated the 4th fairway of an award winning golf course with views of the 4th green, 4th fairway and beyond. Floor plan includes Two Bedrooms PLUS a Den/Home office with a sleep sofa, two bathrooms, open concept living area that includes kitchen, dining area and living room that exits out to the covered rear porch. The den/home office could easily be converted into a 3rd bedroom with space for closet already in place that is currently being used for a desk. Primary bedroom with en-suite bath and large walk-in closest. Primary bath features a soaking tub, guest bath features a walk-in shower. Roof re-shingled in 2023. Home price includes certificate. Maple Leaf is a popular resident owned 55+ gated golf course community with an active resort lifestyle. Features an award winning 18 hole, par 62 golf course, 5 tennis courts, bocce ball, lawn bowling, 2 shuffleboard courts, 4 heated swimming pools, 2 hot tubs, fitness facility, woodworking facility, 75+ clubs/activities, 4 pickleball courts, restaurants, tiki hut/bar and much more. It is true what they say, it's all about the lifestyle in Maple Leaf!

Location

Facts and features

Type:
Residential
Parking:
Covered / Driveway / Garage Door Opener / Golf Cart Parking / Oversized / Workshop in Garage
Year Built:
2005
Lot:
0.11 Acres
Heating:
Central
Price/sqft:
$225
Cooling:
Central Air
HOA:
$433
All facts and features
  • Flooring

    • Ceramic Tile

    • Luxury Vinyl

    Heating

    • Central

    Cooling

    • Central Air

    Appliances

    • Dishwasher

    • Dryer

    • Electric Water Heater

    • Range

    • Range Hood

    • Refrigerator

    • Washer

    Other interior features

    • Crown Molding

    • Living Room/Dining Room Combo

    • Open Floorplan

    • Split Bedroom

    • Thermostat

    • Walk-In Closet(s)

    • Window Treatments

    Bedrooms and bathrooms

    • Bedrooms: 2

    • Full bathrooms: 2

  • Parking

    • Covered

    • Driveway

    • Garage Door Opener

    • Golf Cart Parking

    • Oversized

    • Workshop in Garage

    Property

    • Levels: One

    • Exterior Features: Irrigation System / Sliding Doors

    Lot

    • Lot: 0.11 Acres

    Other Property Information

    • Parcel Number: 402318208914

    • Zoning: MHP

  • Type and style

    • Property Type: Residential

    • Property Sub Type: Manufactured Home

  • Utility

    • Cable Available

    • Electricity Connected

    • Fiber Optics

    • Phone Available

    • Public

    • Sewer Connected

    • Sprinkler Recycled

    • Street Lights

    • Underground Utilities

    • Water Connected

  • Other financial information

    • HOA: $433

    • HOA Frequency: Monthly

    • Annual tax amount: $3,442

  • Source details

    • MLS ID: C7517629

    Other facts

    • Construction Materials: Vinyl Siding

    • Foundation Details: Crawlspace

    • Laundry Features: Inside / Laundry Closet

    • Lot Features: Near Golf Course / On Golf Course

    • Patio And Porch Features: Covered / Rear Porch

    • Pool Features: Heated / In Ground

    • Direction Faces: Southeast

    • Architectural Style: Custom

    • Garage Spaces: 1

    • Attached Garage: Yes

    • Garage: Yes

    • Living Area: 1329

    • Water Source: Public

    • Subdivision Name: MAPLE LEAF ESTATES

Similar Homes

24758 NOVA LANE placeholder 24758 NOVA LANE
New
For Sale
Lots/Land
$295,000
0 room(s)
24758 NOVA LANE
2100 KINGS HIGHWAY UNIT 918 placeholder 2100 KINGS HIGHWAY UNIT 918
New
For Sale
$225,000
2 bds 2 ba 1,202 sqft
2100 KINGS HIGHWAY UNIT 918
2247 HAMBURG LANE placeholder 2247 HAMBURG LANE
1 days
For Sale
House
$365,000
4 bds 2 ba 2,247 sqft
2247 HAMBURG LANE
1255 SAXONY CIRCLE UNIT 4106 placeholder 1255 SAXONY CIRCLE UNIT 4106
2 days
For Sale
Condo/Co-op
$225,000
2 bds 2 ba 1,291 sqft
1255 SAXONY CIRCLE UNIT 4106
25170 OBELISK COURT placeholder 25170 OBELISK COURT
3 days
For Sale
House
$385,000
3 bds 2 ba 2,155 sqft
25170 OBELISK COURT
1074 MARCUS STREET placeholder 1074 MARCUS STREET
3 days
For Sale
House
$280,000
3 bds 2 ba 1,445 sqft
1074 MARCUS STREET
25889 AYSEN DRIVE placeholder 25889 AYSEN DRIVE
4 days
For Sale
House
$359,900
4 bds 2 ba 1,998 sqft
25889 AYSEN DRIVE
22508 BOLANOS COURT placeholder 22508 BOLANOS COURT
4 days
For Sale
House
$299,000
4 bds 2 ba 2,620 sqft
22508 BOLANOS COURT

The multiple listing information is provided by the Stellar MLS from a copyrighted compilation of listings. The compilation of listings and each individual listing are ©2025-present Stellar MLS. All Rights Reserved. The information provided is for consumers' personal, noncommercial use and may not be used for any purpose other than to identify prospective properties consumers may be interested in purchasing. All properties are subject to prior sale or withdrawal. All information provided is deemed reliable but is not guaranteed accurate, and should be independently verified. Listing courtesy of: RE/MAX PALM PCS