Contact
Tell us about your needs

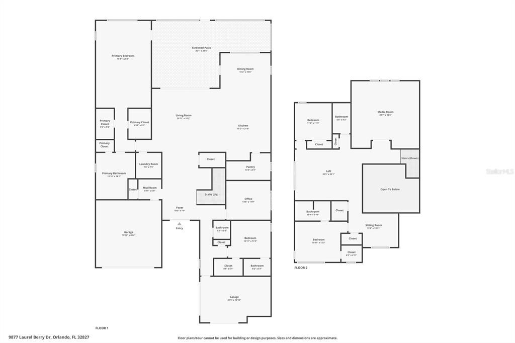
9877 LAUREL BERRY DRIVE

House For Rent
$10,000

BTC: 0.33333333

ETH: 5.00000000

/mo
5 days
4 bds
4 ba
4,860 sqft
Est. Estimated sales range: $0 - $0
$0

Overview

Experience high-end living in one of Lake Nona’s most exclusive gated communities. This luxury home sits on an oversized lot with no rear neighbors, offering privacy and a true resort-style outdoor retreat. Inside, the dramatic two-story foyer, custom millwork, statement lighting, and sleek iron railings set an elevated tone from the moment you walk in. The open great room features a floor-to-ceiling accent wall, electric fireplace, recessed TV niche, and floating shelves—perfect for relaxing or entertaining. The chef’s kitchen impresses with light grey shaker cabinets, a waterfall-edge quartz island, designer tile backsplash, and matte black fixtures. The first-floor primary suite offers a calm, spacious retreat with private lanai access, a spa-style bath, freestanding tub, dual vanities, large walk-in shower, and two custom-designed closets. A guest suite with private bath, an additional full bath, drop zone, and laundry room complete the main level. Upstairs, you’ll find a large loft for extra living space, a secondary flex loft ideal for reading or work, two additional bedrooms (one en-suite), a hallway bath, and a fully enclosed media room. Your outdoor living is the highlight: a fully screened lanai with tongue-and-groove ceiling, oversized fans, gas fireplace, mounted TV, and full custom bar. Step out to a stunning PebbleTec saltwater pool and spa with water features, surrounded by lush tropical landscaping and a fenced yard. Additional features include dual garages, upgraded lighting, plantation shutters, luxury finishes, and smart design throughout. Located in the heart of Lake Nona, minutes from Medical City, VA Hospital, Nemours, top-rated schools, USTA, MCO Airport, major highways, shopping, dining, and Orlando’s world-class attractions.

Location

Facts and features

Type:
Residential Lease
Parking:
Driveway / Garage Door Opener / Other / Oversized
Year Built:
2024
Lot:
0.43 Acres
Heating:
Electric / Heat Pump
Price/sqft:
$2
Cooling:
Central Air
HOA:
No Data
All facts and features
  • Flooring

    • Carpet

    • Luxury Vinyl

    • Porcelain Tile

    Heating

    • Electric

    • Heat Pump

    Cooling

    • Central Air

    Appliances

    • Dishwasher

    • Disposal

    • Microwave

    • Range

    • Range Hood

    • Refrigerator

    • Tankless Water Heater

    Other interior features

    • Built-in Features

    • Coffered Ceiling(s)

    • Eating Space In Kitchen

    • High Ceilings

    • In Wall Pest System

    • Kitchen/Family Room Combo

    • Living Room/Dining Room Combo

    • Open Floorplan

    • Other

    • Primary Bedroom Main Floor

    • Solid Wood Cabinets

    • Split Bedroom

    • Stone Counters

    • Thermostat

    • Tray Ceiling(s)

    • Walk-In Closet(s)

    • Window Treatments

    Bedrooms and bathrooms

    • Bedrooms: 4

    • Bathrooms: 1

    • Full bathrooms: 4

  • Parking

    • Driveway

    • Garage Door Opener

    • Other

    • Oversized

    Property

    • Levels: Two

    • Pool Private: Yes

    Lot

    • Lot: 0.43 Acres

    Other Property Information

    • Parcel Number: 312431487700690

  • Type and style

    • Property Type: Residential Lease

    • Property Sub Type: Single Family Residence

  • Utility

    • Public

  • Source details

    • MLS ID: O6360873

    Other facts

    • Fireplace Features: Electric / Living Room

    • Laundry Features: Inside / Laundry Room

    • Lot Features: Conservation Area / Corner Lot / Landscaped / Level / Oversized Lot / Sidewalk

    • Patio And Porch Features: Deck / Patio / Rear Porch / Screened

    • Pool Features: Heated / In Ground / Lighting / Salt Water

    • Fireplace: Yes

    • Garage Spaces: 3

    • Attached Garage: Yes

    • Garage: Yes

    • Living Area: 4860

    • Water Source: Public

    • Subdivision Name: LAUREL POINTE

Similar Homes

9004 SANTORINI DRIVE placeholder 9004 SANTORINI DRIVE
26 days
For Rent
House
$7,800 /mo
4 bds 4 ba 4,495 sqft
9004 SANTORINI DRIVE
10774 PAHOKEE BEACH PL placeholder 10774 PAHOKEE BEACH PL
-$900 (2025/09/03)
For Rent
House
$7,900 /mo
6 bds 4 ba 4,263 sqft
10774 PAHOKEE BEACH PL

The multiple listing information is provided by the Stellar MLS from a copyrighted compilation of listings. The compilation of listings and each individual listing are ©2025-present Stellar MLS. All Rights Reserved. The information provided is for consumers' personal, noncommercial use and may not be used for any purpose other than to identify prospective properties consumers may be interested in purchasing. All properties are subject to prior sale or withdrawal. All information provided is deemed reliable but is not guaranteed accurate, and should be independently verified. Listing courtesy of: REAL BROKER, LLC