Contacto
Cuéntenos sobre sus necesidades

100 1ST AVENUE N UNIT 501

Condo / Coop En Venta
$1,750,000

BTC: 58.33333333

ETH: 875.00000000

80 días
2 camas
2 baños
1,765 sqft
Est. Rango de ventas estimado: $0 - $0
$0

Visión general

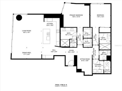
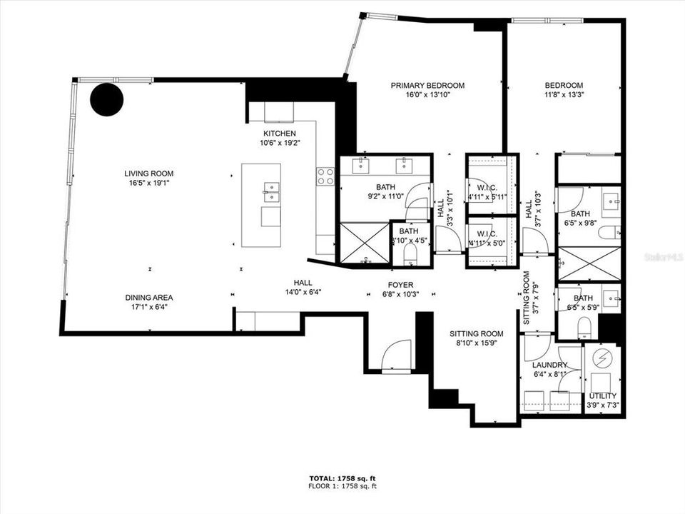
Welcome to an unparalleled urban retreat, a chic and modern 2-bedroom, 2.5-bathroom residence with a den, spanning an impressive 1894 sq ft, with an XL 400 sf terrace, in the very heart of vibrant St. Petersburg. This luxurious home is perfectly positioned in the center of downtown, placing you just steps away from the very best of Tampa Bay. You will be immersed in a world of acclaimed restaurants, the beautiful 7 mile long waterfront park system, renowned museums, eclectic art galleries, and charming coffee shops, with the vibrant parades and festivals on the St. Pete Pier right at your doorstep. Step inside to be greeted by breathtaking water views that set the tone for this upscale home. The open layout is adorned with sleek finishes and flooded with natural light, creating an inviting ambiance. The residence features a massive terrace off the southeast end of the building, offering spectacular views over Tampa Bay and all the iconic sites of downtown St. Pete. Additionally, the primary bedroom boasts a private terrace, perfect for morning coffee or an evening glass of wine while watching the sunset over the bay. Designed for the modern urbanite, this home includes two balconies, an in-unit washer/dryer in separate laundry room, and a flexible den/office space. Enjoy the ultimate convenience of assigned parking with a garage entrance on the same floor as your residence, placing your parking spots directly by your door. Elevator access leads you to a suite of building amenities, including a game room, gym, and spa. Soak up the Florida sun by the pool or on downtowns best pool deck, and for entertaining, the cabana provides an ideal spot for hosting gatherings. The amenity floor includes a clubroom for all your gatherings that can be reserved for private parties and boasts views over the bay to watch sunrises and the fireworks over the pier. The game room has a pool and ping pong table for fun with friends. The 3000sf fitness center has all the weight and cardio machines you could wish for and a separate studio for spin and classes where you can bring your personal trainer for a private session. This property offers a perfect blend of sophisticated urban living and resort-style amenities, making it an ideal oasis in the heart of it all.

Ubicación

Hechos y características

Tipo:
Residential
Estacionamiento:
Sin datos
Año de construcción:
2018
Lote:
0.80 Hectáreas
Calefacción:
Central
precio por sq. medidor:
$992
Enfriamiento:
Central Air
HOA:
Sin datos
Más hechos y características
  • Piso

    • Carpet

    • Tile

    Calefacción

    • Central

    Enfriamiento

    • Central Air

    Accesorios

    • Cooktop

    • Dishwasher

    • Disposal

    • Dryer

    • Ice Maker

    • Microwave

    • Range Hood

    • Refrigerator

    • Washer

    • Wine Refrigerator

    Otras características interiores

    • Ceiling Fan(s)

    • Open Floorplan

    • Solid Surface Counters

    • Window Treatments

    Dormitorios y baños

    • Dormitorios: 2

    • Baños: 1

    • Baños completos: 2

  • Propiedad

    • Pisos: One

    • Características Exteriores: Balcony

    Lote

    • Lote: 0.80 Hectáreas

    Otra Información de Propiedad

    • Número de Parcela: 193117641380000501

  • Tipo y estilo

    • Tipo de propiedad: Residential

    • Subtipo de propiedad: Condominium

  • Utilidad

    • Cable Connected

    • Electricity Connected

    • Sewer Connected

    • Water Connected

  • Otra información financiera

    • Frecuencia HOA: Quarterly

    • Importe anual de impuestos: $27,661

  • Detalles de la fuente

    • MLS ID: TB8428870

    Otros hechos

    • Materiales de construcción: Concrete

    • Detalles de la fundación: Pillar/Post/Pier

    • Características de lavandería: Inside / Laundry Room

    • Características de la piscina: Deck / Gunite / Heated / In Ground / Lap / Salt Water

    • Caras de dirección: East

    • Espacios de garaje: 2

    • Garaje adjunto: Si

    • Garaje: Si

    • Salón: 1765

    • Fuente de agua: Public

    • Nombre de subdivisión: ONE ST PETERSBURG CONDO

Casas similares

176 4TH AVENUE NE UNIT 1002 placeholder 176 4TH AVENUE NE UNIT 1002
Nuevo
En Venta
Condo / Coop
$2,250,000
3 camas 3 baños 2,120 sqft
176 4TH AVENUE NE UNIT 1002
100 1ST AVENUE N UNIT 1504 placeholder 100 1ST AVENUE N UNIT 1504
1 días
En Venta
Condo / Coop
$1,800,000
2 camas 2 baños 1,522 sqft
100 1ST AVENUE N UNIT 1504
211 30TH AVENUE N placeholder 211 30TH AVENUE N
1 días
En Venta
Casa
$1,850,000
6 camas 4 baños 3,573 sqft
211 30TH AVENUE N
621 37TH AVENUE N placeholder 621 37TH AVENUE N
4 días
En Venta
Casa
$1,399,000
5 camas 3 baños 2,990 sqft
621 37TH AVENUE N
3104 11TH STREET N placeholder 3104 11TH STREET N
4 días
En Venta
Casa
$1,375,000
4 camas 3 baños 2,703 sqft
3104 11TH STREET N
288 BEACH DRIVE NE UNIT 4B placeholder 288 BEACH DRIVE NE UNIT 4B
-$12K (2025/11/26)
En Venta
Condo / Coop
$1,487,000
3 camas 2 baños 2,600 sqft
288 BEACH DRIVE NE UNIT 4B
301 1ST STREET S UNIT 1006 placeholder 301 1ST STREET S UNIT 1006
10 días
En Venta
Condo / Coop
$1,290,000
2 camas 2 baños 1,667 sqft
301 1ST STREET S UNIT 1006
1034 QUEEN STREET N placeholder 1034 QUEEN STREET N
15 días
En Venta
Casa
$1,275,000
5 camas 3 baños 2,347 sqft
1034 QUEEN STREET N

The multiple listing information is provided by the Stellar MLS from a copyrighted compilation of listings. The compilation of listings and each individual listing are ©2025-present Stellar MLS. All Rights Reserved. The information provided is for consumers' personal, noncommercial use and may not be used for any purpose other than to identify prospective properties consumers may be interested in purchasing. All properties are subject to prior sale or withdrawal. All information provided is deemed reliable but is not guaranteed accurate, and should be independently verified. Listing courtesy of: COMPASS FLORIDA LLC