Contacto
Cuéntenos sobre sus necesidades

10427 ABBEVILLE STREET

Casa Activo con contrato
$250,000

BTC: 8.33333333

ETH: 125.00000000

89 días
3 camas
2 baños
1,070 sqft
Est. Rango de ventas estimado: $0 - $0
$0

Visión general

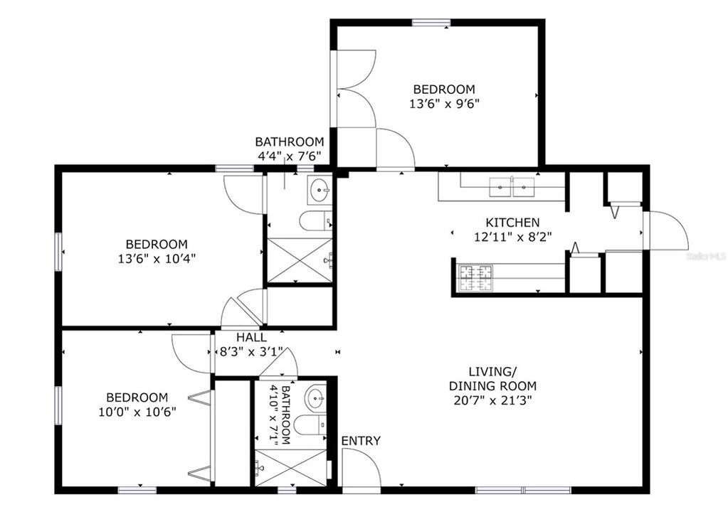
Under contract-accepting backup offers. Come fall in love with this; 3-bedroom, 2-bathroom, 1 car garage home! This home has been well maintained and ready for a new homeowner. When you enter the home, you will find an open living room and dining room combo with a galley kitchen adjacent. Kitchen features ample counter space and includes all major appliances. Just a step out of the kitchen into the garage is the laundry room and storage space. Primary Bedroom and a secondary bedroom are located down a hallway with guest bathroom. Separate from bedrooms and off the main living is a flex space that is being used as a 3rd bedroom, could be used for a home office or additional living space. French doors lead from the flex space to a large backyard that is fully fenced. Exterior and interior painted in 2020, AC replaced in 2020, Electrical panel has been upgraded, home is updated and turnkey ready. Schedule your appointment to see this home today!

Ubicación

Hechos y características

Tipo:
Residential
Estacionamiento:
Driveway
Año de construcción:
1979
Lote:
0.23 Hectáreas
Calefacción:
Central
precio por sq. medidor:
$234
Enfriamiento:
Central Air
HOA:
Sin datos
Más hechos y características
  • Piso

    • Carpet

    • Laminate

    • Tile

    Calefacción

    • Central

    Enfriamiento

    • Central Air

    Accesorios

    • Dishwasher

    • Dryer

    • Electric Water Heater

    • Microwave

    • Range

    • Refrigerator

    • Washer

    Otras características interiores

    • Living Room/Dining Room Combo

    • Open Floorplan

    • Primary Bedroom Main Floor

    • Solid Surface Counters

    • Thermostat

    • Walk-In Closet(s)

    • Window Treatments

    Dormitorios y baños

    • Dormitorios: 3

    • Baños completos: 2

  • Estacionamiento

    • Driveway

    Propiedad

    • Pisos: One

    • Características Exteriores: French Doors / Private Mailbox / Sidewalk

    Lote

    • Lote: 0.23 Hectáreas

    Otra Información de Propiedad

    • Número de Parcela: R3232317509005120210

    • Zonificación: PDP

  • Tipo y estilo

    • Tipo de propiedad: Residential

    • Subtipo de propiedad: Single Family Residence

  • Utilidad

    • Cable Available

    • Electricity Connected

    • Fiber Optics

    • Water Connected

  • Otra información financiera

    • Importe anual de impuestos: $2,757

  • Detalles de la fuente

    • MLS ID: TB8412615

    Otros hechos

    • Materiales de construcción: Block

    • Detalles de la fundación: Slab

    • Características de lavandería: In Garage

    • Características del patio y el porche: Front Porch

    • Características de la ventana: Drapes / Rods

    • Caras de dirección: South

    • Estilo arquitectónico: Traditional

    • Espacios de garaje: 1

    • Garaje adjunto: Si

    • Garaje: Si

    • Salón: 1070

    • Fuente de agua: None

    • Nombre de subdivisión: SPRING HILL

Casas similares

1230 VAN DALE AVENUE placeholder 1230 VAN DALE AVENUE
2 días
Activo con contrato
Casa
$279,900
3 camas 2 baños 1,493 sqft
1230 VAN DALE AVENUE
2054 ARBUCKLE ROAD placeholder 2054 ARBUCKLE ROAD
3 días
Activo con contrato
Casa
$309,000
3 camas 2 baños 1,261 sqft
2054 ARBUCKLE ROAD
2344 SUMMERFIELD AVENUE placeholder 2344 SUMMERFIELD AVENUE
3 días
Activo con contrato
Casa
$250,000
2 camas 2 baños 1,177 sqft
2344 SUMMERFIELD AVENUE
4227 SURFSIDE CIRCLE placeholder 4227 SURFSIDE CIRCLE
3 días
Activo con contrato
Casa
$210,000
3 camas 2 baños 1,344 sqft
4227 SURFSIDE CIRCLE
12224 FOOTHILL STREET placeholder 12224 FOOTHILL STREET
4 días
Activo con contrato
Casa
$249,500
2 camas 2 baños 1,148 sqft
12224 FOOTHILL STREET
10225 HAYWARD ROAD placeholder 10225 HAYWARD ROAD
4 días
Activo con contrato
Casa
$310,000
3 camas 2 baños 2,081 sqft
10225 HAYWARD ROAD
8364 ELDRIDGE ROAD placeholder 8364 ELDRIDGE ROAD
+$26K (2025/10/07)
Activo con contrato
Casa
$239,000
2 camas 2 baños 1,235 sqft
8364 ELDRIDGE ROAD
11487 LINDEN DRIVE placeholder 11487 LINDEN DRIVE
4 días
Activo con contrato
Casa
$257,900
3 camas 2 baños 1,324 sqft
11487 LINDEN DRIVE

The multiple listing information is provided by the Stellar MLS from a copyrighted compilation of listings. The compilation of listings and each individual listing are ©2025-present Stellar MLS. All Rights Reserved. The information provided is for consumers' personal, noncommercial use and may not be used for any purpose other than to identify prospective properties consumers may be interested in purchasing. All properties are subject to prior sale or withdrawal. All information provided is deemed reliable but is not guaranteed accurate, and should be independently verified. Listing courtesy of: MIHARA & ASSOCIATES INC.