Contacto
Cuéntenos sobre sus necesidades

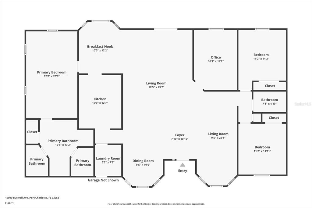
15099 BUSWELL AVENUE

Casa Activo con contrato
$549,000

BTC: 18.30000000

ETH: 274.50000000

25 días
3 camas
2 baños
2,392 sqft
Est. Rango de ventas estimado: $0 - $0
$0

Visión general

Under contract-accepting backup offers. Welcome to this beautifully maintained 3-bedroom, 2-bath pool home with a private office, situated on a fully fenced double lot already combined on the tax record for extra space and privacy! The property features a new roof, double-gate access, and a large storage shed—perfect for tools, equipment, or hobbies. There’s ample room for a boat, RV, or trailer, along with additional yard space for entertaining, pets, or future additions. Inside, you’ll find a bright, open floor plan with vaulted ceilings, large windows, and modern finishes throughout. The kitchen offers stainless-steel appliances, abundant cabinetry, and a breakfast bar that opens to the main living area—ideal for everyday living or hosting guests. The owner’s suite features a walk-in closet and private bath, while the split-bedroom design ensures privacy for family and guests. A versatile office/den provides extra flexibility for remote work or creative space. Step outside to your own backyard oasis—a screened lanai overlooking a sparkling pool, surrounded by lush landscaping and plenty of patio space for relaxing Florida evenings. Located in a quiet, convenient neighborhood close to shopping, dining, boating, golf, and Gulf beaches. No HOA, not in a flood zone, and move-in ready! New roof • Office • Double lot • Fenced yard with gate access • Pool & lanai oasis • Large storage shed — this one has it all! Schedule your private showing today!

Ubicación

Hechos y características

Tipo:
Residential
Estacionamiento:
Sin datos
Año de construcción:
2005
Lote:
0.46 Hectáreas
Calefacción:
Central / Electric / Exhaust Fan
precio por sq. medidor:
$230
Enfriamiento:
Central Air
HOA:
Sin datos
Más hechos y características
  • Piso

    • Ceramic Tile

    Calefacción

    • Central

    • Electric

    • Exhaust Fan

    Enfriamiento

    • Central Air

    Accesorios

    • Built-In Oven

    • Dishwasher

    • Disposal

    • Dryer

    • Electric Water Heater

    • Exhaust Fan

    • Ice Maker

    • Microwave

    • Refrigerator

    • Washer

    Otras características interiores

    • Accessibility Features

    • Cathedral Ceiling(s)

    • Ceiling Fan(s)

    • Crown Molding

    • Eating Space In Kitchen

    • High Ceilings

    • Kitchen/Family Room Combo

    • Primary Bedroom Main Floor

    • Solid Wood Cabinets

    • Split Bedroom

    • Thermostat

    • Window Treatments

    Dormitorios y baños

    • Dormitorios: 3

    • Baños completos: 2

  • Propiedad

    • Pisos: One

    • Piscina Privada: Si

    • Características Exteriores: Hurricane Shutters

    Lote

    • Lote: 0.46 Hectáreas

    Otra Información de Propiedad

    • Número de Parcela: 402103355011

    • Zonificación: RSF3.5

  • Tipo y estilo

    • Tipo de propiedad: Residential

    • Subtipo de propiedad: Single Family Residence

  • Utilidad

    • BB/HS Internet Available

    • Cable Available

    • Electricity Available

    • Electricity Connected

    • Phone Available

    • Sprinkler Meter

    • Water Available

    • Water Connected

  • Otra información financiera

    • Importe anual de impuestos: $6,806

  • Detalles de la fuente

    • MLS ID: D6144509

    Otros hechos

    • Materiales de construcción: Concrete

    • Detalles de la fundación: Slab

    • Características de lavandería: Inside

    • Características de la piscina: Gunite / Heated / In Ground / Lighting

    • Caras de dirección: North

    • Espacios de garaje: 2

    • Garaje adjunto: Si

    • Garaje: Si

    • Salón: 2392

    • Fuente de agua: None

    • Tamaño de la parcela: 80 x 125

    • Nombre de subdivisión: PORT CHARLOTTE SEC 032

Casas similares

3320 COMO STREET placeholder 3320 COMO STREET
Nuevo
Activo con contrato
Casa
$405,100
4 camas 3 baños 2,265 sqft
3320 COMO STREET
2140 LA PALMA AVENUE placeholder 2140 LA PALMA AVENUE
7 días
Activo con contrato
Casa
$439,900
4 camas 2 baños 2,161 sqft
2140 LA PALMA AVENUE
1466 MABLETON DRIVE placeholder 1466 MABLETON DRIVE
11 días
Activo con contrato
Casa
$389,999
5 camas 3 baños 2,490 sqft
1466 MABLETON DRIVE
2080 GARDENIA AVENUE placeholder 2080 GARDENIA AVENUE
18 días
Activo con contrato
Casa
$549,000
3 camas 3 baños 2,217 sqft
2080 GARDENIA AVENUE
1615 LAUREL BROOK LANE placeholder 1615 LAUREL BROOK LANE
20 días
Activo con contrato
Casa
$424,900
3 camas 2 baños 2,443 sqft
1615 LAUREL BROOK LANE
2995 THOMAS LANE placeholder 2995 THOMAS LANE
22 días
Activo con contrato
Casa
$650,000
3 camas 2 baños 1,683 sqft
2995 THOMAS LANE
3441 BAY RIDGE WAY placeholder 3441 BAY RIDGE WAY
23 días
Activo con contrato
Casa
$449,000
3 camas 2 baños 2,309 sqft
3441 BAY RIDGE WAY
16211 CHAMBERLAIN BOULEVARD placeholder 16211 CHAMBERLAIN BOULEVARD
23 días
Activo con contrato
Casa
$449,000
3 camas 2 baños 1,577 sqft
16211 CHAMBERLAIN BOULEVARD

The multiple listing information is provided by the Stellar MLS from a copyrighted compilation of listings. The compilation of listings and each individual listing are ©2025-present Stellar MLS. All Rights Reserved. The information provided is for consumers' personal, noncommercial use and may not be used for any purpose other than to identify prospective properties consumers may be interested in purchasing. All properties are subject to prior sale or withdrawal. All information provided is deemed reliable but is not guaranteed accurate, and should be independently verified. Listing courtesy of: RE/MAX PALM REALTY OF VENICE