Contacto
Cuéntenos sobre sus necesidades

40327 ROYAL TRAILS ROAD

Casa En Venta
$610,000

BTC: 20.33333333

ETH: 305.00000000

-$39K (2025/09/29)
252 días
4 camas
3 baños
2,795 sqft
Est. Rango de ventas estimado: $0 - $0
$0

Visión general

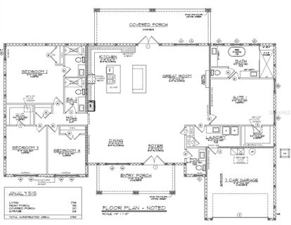
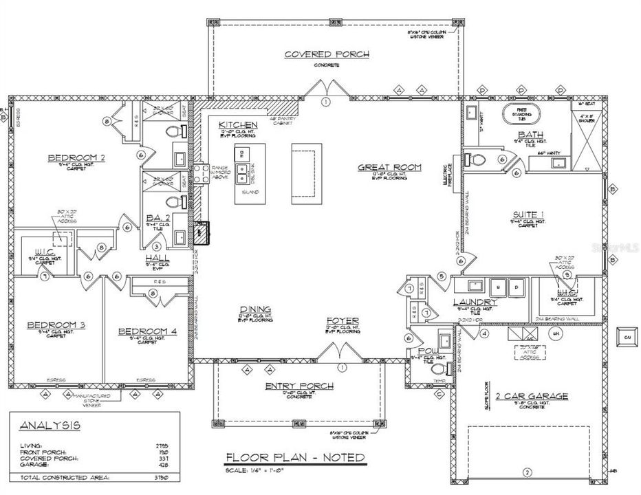
Under Construction. 1 acre corner lot. Brand new home under construction. Estimated completion in 7 days. Royal Trails Community is surrounded by Seminole State Forest. HOA fee only $80 a year. Come live in the country with the deer and turkeys. Asking price is for fully completed home with sod, landscaping and irrigation system. Closing to occur once all final building inxpections from Lake County are completed and a Certificate of Occupancy has been issued and all Buyer's final inspection/punch list are completed. Stunning home, bult to impress. Luxury everything. 14' ceiling. Porceline tile in main room/kitchen/bathrooms. Double rainfall shower heads in Master Bath with separate controls. Split Plan. Luxury everything. 15 minutes from Wekiva Parkway/SR429 and Publix. Community boatramp/dock to Lake Norris. Lake Norris is a private, 1,200 acre pristine lake. 15 minute drive to boat ramp on St Johns River at Ed Stone Park.

Ubicación

Florida EUSTIS 32736 Casa En Venta

Hechos y características

Tipo:
Residential
Estacionamiento:
Sin datos
Año de construcción:
2025
Lote:
1.02 Hectáreas
Calefacción:
Central / Electric
precio por sq. medidor:
$218
Enfriamiento:
Central Air
HOA:
$80
Más hechos y características
  • Piso

    • Carpet

    • Porcelain Tile

    Calefacción

    • Central

    • Electric

    Enfriamiento

    • Central Air

    Accesorios

    • Built-In Oven

    • Dishwasher

    • Disposal

    • Electric Water Heater

    • Microwave

    • Refrigerator

    Otras características interiores

    • Ceiling Fan(s)

    • High Ceilings

    • Open Floorplan

    • Primary Bedroom Main Floor

    • Solid Surface Counters

    • Solid Wood Cabinets

    • Split Bedroom

    • Thermostat

    • Walk-In Closet(s)

    Dormitorios y baños

    • Dormitorios: 4

    • Baños: 1

    • Baños completos: 3

  • Propiedad

    • Pisos: One

    • Características Exteriores: French Doors / Lighting

    Lote

    • Lote: 1.02 Hectáreas

    Otra Información de Propiedad

    • Número de Parcela: 361728010005900700

    • Zonificación: R-1

  • Tipo y estilo

    • Tipo de propiedad: Residential

    • Subtipo de propiedad: Single Family Residence

  • Utilidad

    • Electricity Connected

  • Otra información financiera

    • HOA: $80

    • Frecuencia HOA: Annually

    • Importe anual de impuestos: $490

  • Detalles de la fuente

    • MLS ID: G5094783

    Otros hechos

    • Materiales de construcción: Block / Stucco

    • Detalles de la fundación: Slab

    • Características de la chimenea: Electric

    • Características de lavandería: Laundry Room / Washer Hookup

    • Caras de dirección: East

    • Hogar: Si

    • Nombre del cuerpo de agua: LAKE NORRIS

    • Espacios de garaje: 2

    • Garaje adjunto: Si

    • Garaje: Si

    • Salón: 2795

    • Fuente de agua: Well

    • Nombre de subdivisión: ROYAL TRAILS UNIT 01

Casas similares

41719 ASPEN DRIVE placeholder 41719 ASPEN DRIVE
33 días
En Venta
Casa
$569,900
4 camas 3 baños 2,267 sqft
41719 ASPEN DRIVE
30807 QUINCE AVENUE placeholder 30807 QUINCE AVENUE
91 días
En Venta
Casa
$599,000
4 camas 2 baños 2,660 sqft
30807 QUINCE AVENUE
39817 FOREST DRIVE placeholder 39817 FOREST DRIVE
129 días
En Venta
Casa
$629,000
4 camas 2 baños 2,660 sqft
39817 FOREST DRIVE
30626 QUINCE AVENUE placeholder 30626 QUINCE AVENUE
-$20K (2025/10/16)
En Venta
Casa
$574,900
4 camas 2 baños 2,660 sqft
30626 QUINCE AVENUE
41550 ROYAL TRAILS ROAD placeholder 41550 ROYAL TRAILS ROAD
-$28K (2025/11/15)
En Venta
Casa
$447,000
4 camas 2 baños 1,913 sqft
41550 ROYAL TRAILS ROAD
30342 VITEX AVENUE placeholder 30342 VITEX AVENUE
-$51K (2025/08/29)
En Venta
Casa
$749,000
5 camas 4 baños 3,802 sqft
30342 VITEX AVENUE
42368 W CASHEW COURT placeholder 42368 W CASHEW COURT
228 días
En Venta
Casa
$700,000
4 camas 3 baños 2,510 sqft
42368 W CASHEW COURT
42329 CHINABERRY STREET placeholder 42329 CHINABERRY STREET
-$26K (2025/10/15)
En Venta
Casa
$549,000
5 camas 3 baños 2,490 sqft
42329 CHINABERRY STREET

The multiple listing information is provided by the Stellar MLS from a copyrighted compilation of listings. The compilation of listings and each individual listing are ©2025-present Stellar MLS. All Rights Reserved. The information provided is for consumers' personal, noncommercial use and may not be used for any purpose other than to identify prospective properties consumers may be interested in purchasing. All properties are subject to prior sale or withdrawal. All information provided is deemed reliable but is not guaranteed accurate, and should be independently verified. Listing courtesy of: TREE FROG REALTY, LLC