Contact
Tell us about your needs

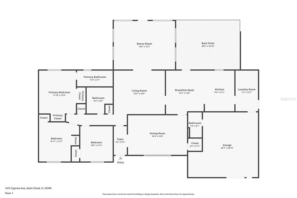
1412 CYPRESS AVENUE

House For Sale
$430,000

BTC: 4.95106505

ETH: 215.00000000

54 days
3 bds
3 ba
2,056 sqft
Est. Estimated sales range: $0 - $0
$0

Overview

Enjoy the landscaped walkway to your new front patio with custom wood ceiling and plenty of sitting space which is a wonderful place to relax. This lovely 3-bedroom, 3-bathroom home with detached Workshop/Office is located 2 blocks from the Saint Cloud Lakefront Park. Once you walk through the front door into the foyer, you'll be pleasantly surprised by the spacious layout. There is a formal dining area off to the side that accesses the kitchen and offers a walk in closet storage area. The kitchen was recently updated and boasts a passthrough window to the backyard, solid wood cabinets, granite counter tops and newer appliances! The custom Built-In dinette area is perfect for those holiday get togethers and family dinners. Head through the living area to the Family room that showcases a projector AND screen to watch your favorite movie or Sport game. The hallway adjacent from living room accesses all 3 bedrooms, and a full guest bathroom. The Master bedroom with dual closets and bathroom en suite with walk-in shower is fit for a king! The adorable utility area with shelving sits just off of the kitchen and leads to the garage where you will find 1 of the bathrooms. The dinette area leads out to the rear wooden deck covered patio and opens to the fenced in backyard with firepit, detached block Workshop/Office. The Workshop/Office offers electricity, window unit A/C and was recently drywalled. There is an outdoor covered Grill area that is perfect spot for the BBQ Grill or Smoker. But wait, there is still so much more! In 2020 the A/C, Roof and Storm/Hurricane proof windows were installed. If that didn't do it for you then how about in 2021 PAID OFF Solar Panels were installed and significantly REDUCED the electric bill! The fenced backyard features a garden with a well for irrigation and a fire pit for those chilly winter night. Schedule your showing today and live within a short distance of gorgeous sunrises and sunsets, a sandy lakefront beach, 4 miles of walking paths, 2 piers, a marina and restaurant at the Saint Cloud Lakefront.

Location

Facts and features

Type:
Residential
Parking:
No Data
Year Built:
1973
Lot:
0.34 Acres
Heating:
Central
Price/sqft:
$209
Cooling:
Central Air / Wall/Window Unit(s)
HOA:
No Data
All facts and features
  • Flooring

    • Carpet

    • Tile

    • Vinyl

    Heating

    • Central

    Cooling

    • Central Air

    • Wall/Window Unit(s)

    Appliances

    • Dishwasher

    • Electric Water Heater

    • Range

    • Range Hood

    • Refrigerator

    Other interior features

    • Attic Fan

    • Ceiling Fan(s)

    • Eating Space In Kitchen

    • Primary Bedroom Main Floor

    • Solid Surface Counters

    • Solid Wood Cabinets

    Bedrooms and bathrooms

    • Bedrooms: 3

    • Full bathrooms: 3

  • Property

    • Levels: One

    • Exterior Features: Private Mailbox / Rain Gutters

    Lot

    • Lot: 0.34 Acres

    Other Property Information

    • Parcel Number: 012630065000010645

    • Zoning: SR1A

  • Type and style

    • Property Type: Residential

    • Property Sub Type: Single Family Residence

  • Utility

    • Electricity Connected

  • Other financial information

    • Annual tax amount: $7,532

  • Source details

    • MLS ID: S5137145

    Other facts

    • Construction Materials: Block

    • Foundation Details: Block

    • Laundry Features: Inside / Laundry Room

    • Lot Features: Flood Insurance Required / FloodZone / City Lot / Near Marina

    • Patio And Porch Features: Covered / Front Porch / Rear Porch

    • Window Features: Storm Window(s)

    • Direction Faces: South

    • Other Structures: Workshop

    • Garage Spaces: 1

    • Attached Garage: Yes

    • Garage: Yes

    • Living Area: 2056

    • Water Source: Public

    • Lot Size Dimensions: 100 x 150

    • Subdivision Name: LAKE FRONT ADD TO TOWN OF ST CLOUD

Similar Homes

4071 FLOWERING PEACH LANE placeholder 4071 FLOWERING PEACH LANE
1 days
For Sale
House
$500,000
5 bds 2 ba 3,367 sqft
4071 FLOWERING PEACH LANE
486 PINE TREE BRIDGE TRAIL placeholder 486 PINE TREE BRIDGE TRAIL
1 days
For Sale
House
$389,990
4 bds 2 ba 1,845 sqft
486 PINE TREE BRIDGE TRAIL
1020 WISCONSIN AVENUE placeholder 1020 WISCONSIN AVENUE
1 days
For Sale
House
$519,900
4 bds 3 ba 2,288 sqft
1020 WISCONSIN AVENUE
1121 ILLINOIS AVENUE placeholder 1121 ILLINOIS AVENUE
1 days
For Sale
House
$325,000
5 bds 2 ba 1,379 sqft
1121 ILLINOIS AVENUE
1860 CENTENNIAL AVENUE placeholder 1860 CENTENNIAL AVENUE
2 days
For Sale
House
$409,900
4 bds 2 ba 2,048 sqft
1860 CENTENNIAL AVENUE
3132 GARDEN COURT placeholder 3132 GARDEN COURT
2 days
For Sale
House
$375,000
4 bds 3 ba 1,763 sqft
3132 GARDEN COURT
19 COLUMBIA AVENUE placeholder 19 COLUMBIA AVENUE
3 days
For Sale
Multi-family
$475,000
4 bds 1,768 sqft
19 COLUMBIA AVENUE
229 STRATHMORE CIRCLE placeholder 229 STRATHMORE CIRCLE
8 days
For Sale
House
$499,900
5 bds 3 ba 2,606 sqft
229 STRATHMORE CIRCLE

The multiple listing information is provided by the Stellar MLS from a copyrighted compilation of listings. The compilation of listings and each individual listing are ©2025-present Stellar MLS. All Rights Reserved. The information provided is for consumers' personal, noncommercial use and may not be used for any purpose other than to identify prospective properties consumers may be interested in purchasing. All properties are subject to prior sale or withdrawal. All information provided is deemed reliable but is not guaranteed accurate, and should be independently verified. Listing courtesy of: IRON VALLEY REAL ESTATE OSCEOL