Недвижимость
Ознакомьтесь с нашими объявлениями
Контакты
Расскажите нам о своих потребностях

2486 CARING WAY UNIT 14A

Квартира Под контрактом
$148,500

BTC: 4.95000000

ETH: 74.25000000

-$30K (2025/10/20)
189 Дней
Набережная
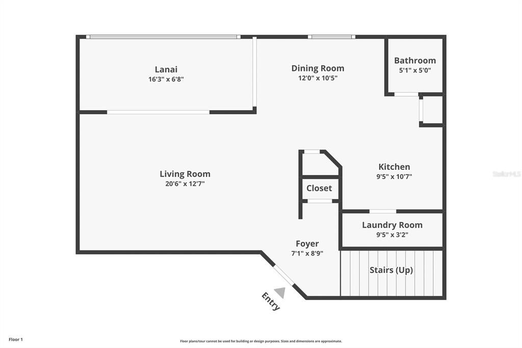
2 спален
2 ванн
1,240 кв.фт.
Est. Предполагаемый диапазон продаж: $0 - $0
$0

Обзор

Under contract-accepting backup offers. The perfect centrally located canal view condo for you! This is a two-story condo with TONS of natural light that feels like a townhome once inside. Two bedrooms, Two bathrooms + a bonus half bathroom. This unit is located JUST OUTSIDE THE ELEVATOR with a front door on both the 1st and 2nd floor for super EASY ACCESS. The first floor features a spacious living room, a charming kitchen equipped with granite countertops and beautiful cabinets, a half bathroom/powder room, a dining nook and a canal view screened in lanai. The 2nd floor features two spacious bedrooms with attached bathrooms giving you TWO PRIMARY BEDROOMS. Both bedrooms have tons of closet space. The 2nd floor has a PRIVATE screened in BALCONY overlooking the canal. Updates include - NEW ROOF, NEW RECESSED LIGHTING, NEW FANS, FRESH PAINT INSIDE and OUTSIDE, NEWER AC BLOWS ICE COLD, NEW VANITIES, IMPACT WINDOWS, NEW CARPET & LUXURY VINYL UPSTAIRS. The HOA INCLUDES your water and trash. PETS ALLOWED! COVERED PARKING and OUTSIDE STORAGE INCLUDED. Parking lot has been recently resealed. Both upstairs and downstairs lanai and balcony have electric roll down shades giving you the ability to adjust the natural light if you choose. This condo is super close to doctors' offices, hospitals, grocery stores, restaurants and just up the road from the Historic Downtown Punta Gorda and Sunseeker Resort + much morel Call your agent if you have any questions. Easy to see this property! Lots to love about it!

Локация

Факты и особенности

Тип:
Residential
Парковка:
Нет данных
Год постройки:
1981
Лот:
0.02 Акров
Отопление:
Central / Electric
Цена/кв.фут:
$120
Охлаждение:
Central Air
HOA:
Нет данных
Больше фактов и особенностей
  • Напольное покрытие

    • Ceramic Tile

    • Vinyl

    Отопление

    • Central

    • Electric

    Охлаждение

    • Central Air

    Бытовая техника

    • Disposal

    • Microwave

    • Range

    • Refrigerator

    Другие особенности интерьера

    • Ceiling Fan(s)

    • PrimaryBedroom Upstairs

    • Stone Counters

    • Thermostat

    • Walk-In Closet(s)

    Спальни и ванные комнаты

    • Спальни: 2

    • Ванные: 1

    • Полные ванные комнаты: 2

  • Имущество

    • Этажи: Two

    • Особенности Экстерьера: Lighting / Storage

    Лот

    • Лот: 0.02 Акров

    Другая Информация о Недвижимости

    • Номер Земельного Участка: 402215751005

    • Зонирование: RMF15

  • Тип и стиль

    • Тип недвижимости: Residential

    • Подтип недвижимости: Condominium

  • Общественное благосостояние

    • BB/HS Internet Available

    • Cable Available

    • Electricity Connected

    • Sewer Connected

    • Street Lights

    • Water Connected

  • Другая финансовая информация

    • Частота HOA: Monthly

    • Годовая сумма налога: $729

  • Детали источника

    • MLS ID: C7510315

    Другие факты

    • Строительные материалы: Block / Stucco

    • Детали фундамента: Slab

    • Особенности прачечной: Laundry Closet / Laundry Room

    • Особенности окна: Storm Window(s)

    • Направленные лица: East

    • Берег: Да

    • Жилая площадь: 1240

    • Источник воды: Public

    • Название подразделения: SUNRISE TOWERS PH 01

Похожие дома

21115 GLENDALE AVENUE placeholder 21115 GLENDALE AVENUE
Новое
Под контрактом
Дом
$109,900
3 спален 2 ванн 1,314 кв.фт.
21115 GLENDALE AVENUE
1099 RIGGS STREET placeholder 1099 RIGGS STREET
2 Дней
Под контрактом
Дом
$145,000
3 спален 2 ванн 1,152 кв.фт.
1099 RIGGS STREET
3006 CARING WAY UNIT 402 placeholder 3006 CARING WAY UNIT 402
4 Дней
Под контрактом
Квартира
$104,900
1 спален 1 ванн 634 кв.фт.
3006 CARING WAY UNIT 402
1282 W CORKTREE CIRCLE placeholder 1282 W CORKTREE CIRCLE
5 Дней
Под контрактом
Дом
$185,000
2 спален 2 ванн 852 кв.фт.
1282 W CORKTREE CIRCLE
5121 CHAVES CIRCLE placeholder 5121 CHAVES CIRCLE
7 Дней
Под контрактом
Дом
$175,000
3 спален 2 ванн 1,336 кв.фт.
5121 CHAVES CIRCLE
2486 CARING WAY UNIT 10C placeholder 2486 CARING WAY UNIT 10C
8 Дней
Под контрактом
Квартира
$145,000
2 спален 2 ванн 992 кв.фт.
2486 CARING WAY UNIT 10C
19505 QUESADA AVENUE UNIT EE103 placeholder 19505 QUESADA AVENUE UNIT EE103
-$10K (2025/11/10)
Под контрактом
Квартира
$160,000
2 спален 2 ванн 838 кв.фт.
19505 QUESADA AVENUE UNIT EE103
1515 FORREST NELSON BOULEVARD UNIT N206 placeholder 1515 FORREST NELSON BOULEVARD UNIT N206
-$10K (2025/12/04)
Под контрактом
Квартира
$138,888
2 спален 2 ванн 899 кв.фт.
1515 FORREST NELSON BOULEVARD UNIT N206

The multiple listing information is provided by the Stellar MLS from a copyrighted compilation of listings. The compilation of listings and each individual listing are ©2025-present Stellar MLS. All Rights Reserved. The information provided is for consumers' personal, noncommercial use and may not be used for any purpose other than to identify prospective properties consumers may be interested in purchasing. All properties are subject to prior sale or withdrawal. All information provided is deemed reliable but is not guaranteed accurate, and should be independently verified. Listing courtesy of: ERA ADVANTAGE REALTY, INC.