特性
探索我们的清单
聯繫
告诉我们您的需求

876 NE 81st St, Miami FL 33138

房屋 待售
$829,999

BTC: 27.66663333

ETH: 414.99950000

-$20K (2025/11/17)
24 天
3 贝兹
2 浴室
1,418 平方英尺
Est. 预计销售范围: $0 - $0
$0

总览

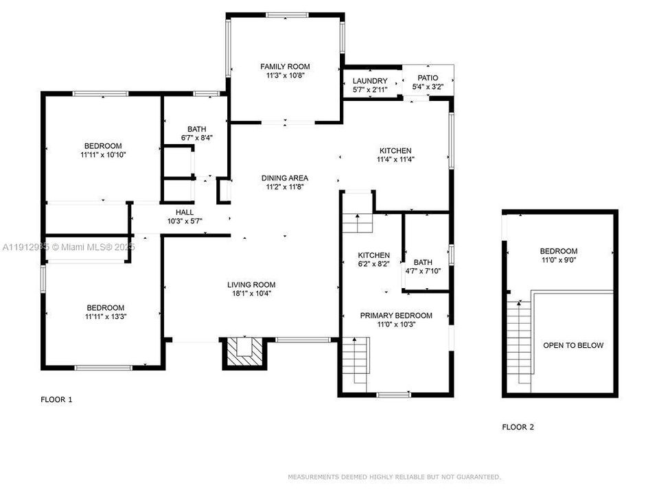
PRICED TO SELL. Completely renovated 3BR/2BA home in Miami’s desirable Shorecrest, combining sleek design with practical livability. Features include a new metal roof, impact windows, quartz countertops, custom cabinetry, designer bathrooms, new flooring, and premium finishes throughout. A spacious den offers the perfect setup for a home office or creative studio, while the third bedroom has a private entrance—ideal for guests or rental income. The oversized backyard, complete with a mature mango tree, invites endless possibilities: add a pool, outdoor kitchen, or garden retreat. Located minutes from Biscayne Bay, the MiMo District, Wynwood, beaches, and top dining, this home delivers modern upgrades and a lifestyle in one of Miami’s most dynamic neighborhoods.

位置

佛罗里达 迈阿密 33138 房屋 待售

详情与特色

类型:
Residential
停车:
Driveway
建造年份:
1940
地段:
6240 平方英尺
暖气:
Central / Electric
价格/平方英尺:
$585
冷气:
Central Air / Electric
HOA:
没有数据
更多事实和特点
  • 暖气

    • Central

    • Electric

    冷气

    • Central Air

    • Electric

    设备

    • Dryer

    • Electric Water Heater

    • Microwave

    • Electric Range

    • Refrigerator

    • Washer

    其他室内特点

    • First Floor Entry

    • Closet Cabinetry

    • Pull Down Stairs

    • Attic

    • Den/Library/Office

    • Loft

    • Studio Apartment

    • Utility Room/Laundry

    卧室和浴室

    • 卧室: 3

    • 完整的浴室: 2

  • 停车

    • Driveway

    房屋

    • 外观特征: Fruit Trees / Room For Pool

    地段

    • 地段: 6240 平方英尺

    其他财产信息

    • 包裹编号: 01-32-07-016-2390

    • 分区: 0100

  • 类型与风格

    • 财产种类: Residential

    • 属性子类型: Single Family Residence

  • 其他财政信息

    • 年税额: $9,151

  • 来源细节

    • MLS ID: A11912935

    其他详情

    • 建筑材料: CBS Construction

    • 洗衣功能: Utility Room/Laundry

    • 地段特征: Less Than 1/4 Acre Lot

    • 天井和门廊特色: Patio

    • 窗户功能: High Impact Windows

    • 方向面: North

    • 建筑风格: Detached / One Story

    • 生活区域: 1418

    • 水源: Municipal Water

    • 细分名称: SHORECREST

类似房屋

5241 NW 11th Ave, Miami FL 33127 placeholder 5241 NW 11th Ave, Miami FL 33127
1 天
待售
多户家庭
$600,000
0 room(s) 1,560 平方英尺
5241 NW 11th Ave, Miami FL 33127
136 NE 101st St, Miami Shores FL 33138 placeholder 136 NE 101st St, Miami Shores FL 33138
1 天
待售
房屋
$997,000
2 贝兹 1 浴室 1,073 平方英尺
136 NE 101st St, Miami Shores FL 33138
601 NE 36th St # 1101, Miami FL 33137 placeholder 601 NE 36th St # 1101, Miami FL 33137
1 天
待售
公寓/合作社
$774,900
2 贝兹 2 浴室 1,449 平方英尺
601 NE 36th St # 1101, Miami FL 33137
10851 NE 2nd Ct, Miami FL 33161 placeholder 10851 NE 2nd Ct, Miami FL 33161
2 天
待售
房屋
$595,000
3 贝兹 2 浴室 1,267 平方英尺
10851 NE 2nd Ct, Miami FL 33161
3470 E Coast Ave # H0904, Miami FL 33137 placeholder 3470 E Coast Ave # H0904, Miami FL 33137
2 天
待售
公寓/合作社
$840,000
3 贝兹 2 浴室 1,242 平方英尺
3470 E Coast Ave # H0904, Miami FL 33137
480 NE 110th St, Miami FL 33161 placeholder 480 NE 110th St, Miami FL 33161
2 天
待售
房屋
$620,000
3 贝兹 1 浴室 1,037 平方英尺
480 NE 110th St, Miami FL 33161
3900 Biscayne Blvd # 813, Miami FL 33137 placeholder 3900 Biscayne Blvd # 813, Miami FL 33137
3 天
待售
公寓/合作社
$599,990
1 贝兹 1 浴室 808 平方英尺
3900 Biscayne Blvd # 813, Miami FL 33137
470 NE 110th St, Miami FL 33161 placeholder 470 NE 110th St, Miami FL 33161
3 天
待售
房屋
$749,900
3 贝兹 2 浴室 1,192 平方英尺
470 NE 110th St, Miami FL 33161

The multiple listing information is provided by the Miami Association of REALTORS® from a copyrighted compilation of listings. The compilation of listings and each individual listing are ©2025-present Miami Association of REALTORS®. All Rights Reserved. The information provided is for consumers' personal, noncommercial use and may not be used for any purpose other than to identify prospective properties consumers may be interested in purchasing. All properties are subject to prior sale or withdrawal. All information provided is deemed reliable but is not guaranteed accurate, and should be independently verified. Listing courtesy of: Avenew Realty Corp