Contact
Tell us about your needs

145 Peruvian, Palm Beach, FL 33480

Condo/Co-op For Sale
$6,900,000

BTC: 77.31612209

ETH: 3,450.00000000

-$900K (2025/11/09)
62 days
3 bds
3 ba
2,428 sqft
Est. Estimated sales range: $0 - $0
$0

Overview

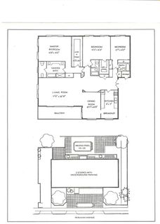
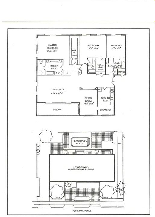
3 Bedroom 3 Bath with Dinning Room , Foyer, Galley Kitchen, Heated Pool, . Constructed by Quality Builder Overland Construction and designed by Renowned Gene Lawerence Architect in Style of French Regwency. The 3 Story Building consists of (6) six residential units, 2 Apartments per floor, 12 Underground Garage Parking spaces and is fabulously located in the Ocean Block next to Worth Avenue. This offered Condominium is approximately(3,000Sf ) 2,428 SF and 500 SF (2 car) of designated garage space including Balcony. First Time Available . Original Owner and Developer.

Location

Facts and features

Type:
Residential
Parking:
2+ Spaces / Covered / Garage - Building / Under Building
Year Built:
1980
Lot:
No Data
Heating:
Central
Price/sqft:
$2,842
Cooling:
Central
HOA:
No Data
All facts and features
  • Flooring

    • Marble

    Heating

    • Central

    Cooling

    • Central

    Appliances

    • Dishwasher

    • Dryer

    • Refrigerator

    • Washer

    Other interior features

    • Bar

    • Built-in Shelves

    • Ctdrl/Vault Ceilings

    • Custom Mirror

    • Elevator

    • Foyer

    • Pantry

    • Roman Tub

    • Sky Light(s)

    • Split Bedroom

    • Walk-in Closet

    Bedrooms and bathrooms

    • Bedrooms: 3

    • Full bathrooms: 3

  • Parking

    • 2+ Spaces

    • Covered

    • Garage - Building

    • Under Building

    Other Property Information

    • Parcel Number: 50434326150003010

    • Zoning: R-C

  • Type and style

    • Property Type: Residential

    • Property Sub Type: Condominium

  • Utility

    • Cable

    • Public Sewer

    • Water Available

  • Other financial information

    • Annual tax amount: $9,310

  • Source details

    • MLS ID: RX-11134332

    Other facts

    • Construction Materials: Concrete

    • Laundry Features: Washer and Dryer

    • Patio And Porch Features: Balcony

    • Garage Spaces: 2

    • Garage: Yes

    • Living Area: 2428

    • Subdivision Name: REGENCY SIX CONDO

Similar Homes

222 Cherry, Palm Beach, FL 33480 placeholder 222 Cherry, Palm Beach, FL 33480
6 days
For Sale
Commercial
$5,850,000
0 room(s)
222 Cherry, Palm Beach, FL 33480
622 Flagler, West Palm Beach, FL 33401 placeholder 622 Flagler, West Palm Beach, FL 33401
13 days
For Sale
Condo/Co-op
$7,250,000
4 bds 4 ba 5,650 sqft
622 Flagler, West Palm Beach, FL 33401
240 Seabreeze, Palm Beach, FL 33480 placeholder 240 Seabreeze, Palm Beach, FL 33480
13 days
For Sale
House
$8,495,000
3 bds 2 ba 2,080 sqft
240 Seabreeze, Palm Beach, FL 33480
217 Bunker Ranch, West Palm Beach, FL 33405 placeholder 217 Bunker Ranch, West Palm Beach, FL 33405
15 days
For Sale
House
$7,795,000
5 bds 5 ba 5,252 sqft
217 Bunker Ranch, West Palm Beach, FL 33405
2 Breakers, Palm Beach, FL 33480 placeholder 2 Breakers, Palm Beach, FL 33480
18 days
For Sale
Condo/Co-op
$7,500,000
3 bds 3 ba 3,020 sqft
2 Breakers, Palm Beach, FL 33480
1717 Flagler, West Palm Beach, FL 33407 placeholder 1717 Flagler, West Palm Beach, FL 33407
25 days
For Sale
Condo/Co-op
$6,601,900
3 bds 3 ba 3,244 sqft
1717 Flagler, West Palm Beach, FL 33407
1717 Flagler, West Palm Beach, FL 33407 placeholder 1717 Flagler, West Palm Beach, FL 33407
25 days
For Sale
Condo/Co-op
$5,070,900
3 bds 3 ba 2,541 sqft
1717 Flagler, West Palm Beach, FL 33407
1717 Flagler, West Palm Beach, FL 33407 placeholder 1717 Flagler, West Palm Beach, FL 33407
25 days
For Sale
Condo/Co-op
$4,850,900
3 bds 1 ba 2,541 sqft
1717 Flagler, West Palm Beach, FL 33407

The multiple listing information is provided by the Beaches MLS from a copyrighted compilation of listings. The compilation of listings and each individual listing are ©2025-present Beaches MLS. All Rights Reserved. The information provided is for consumers' personal, noncommercial use and may not be used for any purpose other than to identify prospective properties consumers may be interested in purchasing. All properties are subject to prior sale or withdrawal. All information provided is deemed reliable but is not guaranteed accurate, and should be independently verified. Listing courtesy of: Hollis Realty Group, Inc.