Contact
Tell us about your needs

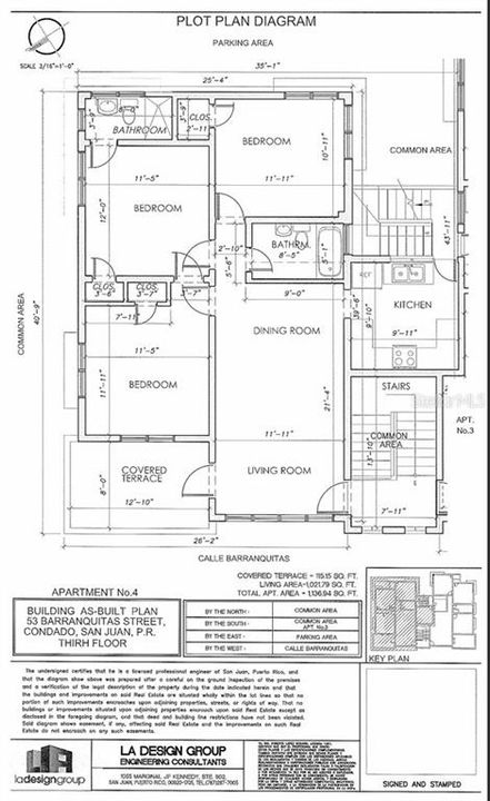
53 CALLE BARRANQUITAS

Condo/Co-op Active With Contract
$2,260,000

BTC: 26.02187680

ETH: 1,130.00000000

73 days
12 bds
8 ba
7,275 sqft
Est. Estimated sales range: $0 - $0
$0

Overview

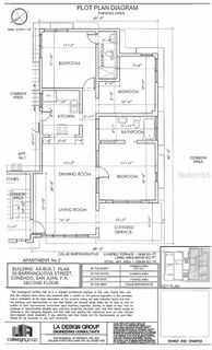
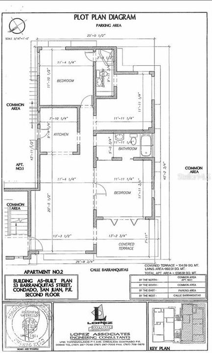
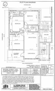
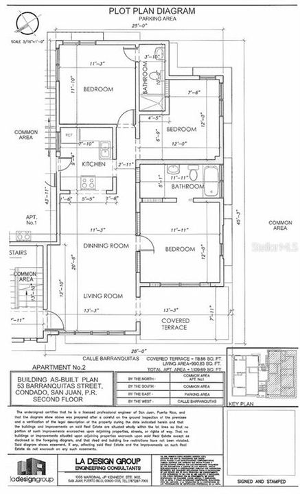
Under contract-accepting backup offers. Excellent investment opportunity in the heart of Condado—a three-story mixed-use fixer-upper located directly across from the Vanderbilt Hotel and next to the O:LV Hotel. This property features four spacious residential units, each with 3 bedrooms and 2 bathrooms, along with four ground-level commercial spaces that can be used for retail, offices, or converted into additional parking. Situated in a prime location steps away from beaches, restaurants, and nightlife, the building offers strong income potential and future appreciation. Zoned CT (Comercial Turístico), it allows for a wide range of commercial, residential, or short-term rental uses, making it ideal for developers, investors, or anyone looking to reimagine a property in one of San Juan’s most desirable areas. The asking price matches the most recent appraisal.

Location

Facts and features

Type:
Residential
Parking:
No Data
Year Built:
1960
Lot:
0.15 Acres
Heating:
None
Price/sqft:
$311
Cooling:
None
HOA:
No Data
All facts and features
  • Flooring

    • Ceramic Tile

    Heating

    • None

    Cooling

    • None

    Appliances

    • None

    Other interior features

    • High Ceilings

    • Open Floorplan

    Bedrooms and bathrooms

    • Bedrooms: 12

    • Bathrooms: 4

    • Full bathrooms: 8

  • Property

    • Levels: One

    • Exterior Features: Balcony / Sidewalk

    Lot

    • Lot: 0.15 Acres

    Other Property Information

    • Parcel Number: 04002801806001

    • Zoning: CT

  • Type and style

    • Property Type: Residential

    • Property Sub Type: Condominium

  • Utility

    • Electricity Available

    • Water Available

  • Source details

    • MLS ID: PR9114768

    Other facts

    • Construction Materials: Block / Concrete

    • Foundation Details: Block / Concrete Perimeter

    • Laundry Features: In Kitchen

    • Direction Faces: West

    • Living Area: 7275

    • Water Source: None

    • Subdivision Name: COND SAN ANTONIO 53

Similar Homes

The Icon 1120 ASHFORD AVE UNIT 1002 placeholder The Icon 1120 ASHFORD AVE UNIT 1002
New
Active With Contract
Condo/Co-op
$2,000,000
2 bds 2 ba 1,379 sqft
The Icon 1120 ASHFORD AVE UNIT 1002
20 WASHINGTON STREET UNIT PH-C placeholder 20 WASHINGTON STREET UNIT PH-C
14 days
Active With Contract
Penthouse
$2,375,000
2 bds 2 ba 2,700 sqft
20 WASHINGTON STREET UNIT PH-C
54 KINGS COURT STREET UNIT 10B placeholder 54 KINGS COURT STREET UNIT 10B
34 days
Active With Contract
Condo/Co-op
$1,590,000
3 bds 2 ba 1,889 sqft
54 KINGS COURT STREET UNIT 10B
1212 LUCHETTI STREET UNIT 601 placeholder 1212 LUCHETTI STREET UNIT 601
61 days
Active With Contract
Condo/Co-op
$1,995,000
4 bds 3 ba 2,420 sqft
1212 LUCHETTI STREET UNIT 601
The Icon 1120 ASHFORD AVE UNIT 802 placeholder The Icon 1120 ASHFORD AVE UNIT 802
472 days
Active With Contract
Condo/Co-op
$2,925,000
3 bds 3 ba 2,326 sqft
The Icon 1120 ASHFORD AVE UNIT 802
274 CALLE SAN JORGE placeholder 274 CALLE SAN JORGE
-$600K (2025/06/20)
Active With Contract
Commercial
$1,600,000
0 room(s)
274 CALLE SAN JORGE
1214 MAGDALENA AVENUE UNIT 2 placeholder 1214 MAGDALENA AVENUE UNIT 2
718 days
Active With Contract
Condo/Co-op
$2,400,000
4 bds 4 ba 3,792 sqft
1214 MAGDALENA AVENUE UNIT 2

The multiple listing information is provided by the Stellar MLS from a copyrighted compilation of listings. The compilation of listings and each individual listing are ©2025-present Stellar MLS. All Rights Reserved. The information provided is for consumers' personal, noncommercial use and may not be used for any purpose other than to identify prospective properties consumers may be interested in purchasing. All properties are subject to prior sale or withdrawal. All information provided is deemed reliable but is not guaranteed accurate, and should be independently verified. Listing courtesy of: RICARDO MARQUEZ