Contact
Tell us about your needs

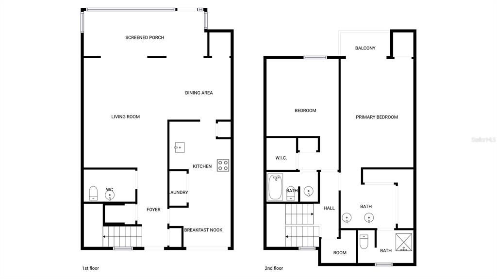
5302 JASMINE CREEK LANE UNIT 1304

Condo/Co-op For Sale
$141,000

BTC: 1.54945055

ETH: 70.50000000

New
2 bds
2 ba
1,703 sqft
Est. Estimated sales range: $0 - $0
$0

Overview

One or more photo(s) has been virtually staged. Welcome to this beautifully maintained property located at 5302 Jasmine Creek Ln, Unit 1304. The living room greets you with a calm, contemporary ambiance, enhanced by fresh interior paint and select flooring updates that create an easy backdrop for everyday living. The kitchen offers a functional layout ready for weeknight cooking or weekend baking. The bedrooms provide a peaceful retreat, their simplicity and fresh finishes making rest feel effortless. The primary bathroom elevates routines with double sinks and a relaxing, spa-like sense of space. Overall, the home keeps life streamlined and comfortable through its clean, modern touches. Outside, the setting invites you to savor a quiet moment in the open air, rounding out a tranquil place to call home.. Included 100-Day Home Warranty with buyer activation

Location

Facts and features

Type:
Residential
Parking:
Assigned
Year Built:
1973
Lot:
0.13 Acres
Heating:
Central
Price/sqft:
$83
Cooling:
Central Air
HOA:
$842
All facts and features
  • Flooring

    • Carpet

    • Tile

    Heating

    • Central

    Cooling

    • Central Air

    Appliances

    • Dishwasher

    • Electric Water Heater

    • Other

    • Range Hood

    Other interior features

    • Eating Space In Kitchen

    • Primary Bedroom Main Floor

    • Stone Counters

    Bedrooms and bathrooms

    • Bedrooms: 2

    • Bathrooms: 1

    • Full bathrooms: 2

  • Parking

    • Assigned

    Property

    • Levels: Two

    • Exterior Features: Other

    Lot

    • Lot: 0.13 Acres

    Other Property Information

    • Parcel Number: 182329190013040

    • Zoning: R-3B

  • Type and style

    • Property Type: Residential

    • Property Sub Type: Condominium

  • Utility

    • Electricity Available

    • Water Available

  • Other financial information

    • HOA: $842

    • HOA Frequency: Monthly

    • Annual tax amount: $3,209

  • Source details

    • MLS ID: O6367454

    Other facts

    • Construction Materials: Stucco / Wood Siding

    • Foundation Details: Slab

    • Laundry Features: None

    • Direction Faces: West

    • Living Area: 1703

    • Water Source: Public

    • Subdivision Name: CYPRESS WOODS CONDO

Similar Homes

5313 INDIAN CREEK DRIVE UNIT D placeholder 5313 INDIAN CREEK DRIVE UNIT D
New
For Sale
Condo/Co-op
$110,000
2 bds 2 ba 1,123 sqft
5313 INDIAN CREEK DRIVE UNIT D
7395 UNIVERSAL BOULEVARD UNIT 904 placeholder 7395 UNIVERSAL BOULEVARD UNIT 904
New
For Sale
$160,000
1 bds 1 ba 671 sqft
7395 UNIVERSAL BOULEVARD UNIT 904
4744 WALDEN CIRCLE UNIT 17 placeholder 4744 WALDEN CIRCLE UNIT 17
5 days
For Sale
Condo/Co-op
$139,000
2 bds 2 ba 956 sqft
4744 WALDEN CIRCLE UNIT 17
5961 WESTGATE DRIVE UNIT 2034 placeholder 5961 WESTGATE DRIVE UNIT 2034
6 days
For Sale
Condo/Co-op
$160,300
1 bds 1 ba 713 sqft
5961 WESTGATE DRIVE UNIT 2034
4175 COVINGTON STREET placeholder 4175 COVINGTON STREET
8 days
For Sale
House
$169,900
3 bds 1 ba 1,035 sqft
4175 COVINGTON STREET
6016 WESTGATE DRIVE UNIT 201 placeholder 6016 WESTGATE DRIVE UNIT 201
8 days
For Sale
Condo/Co-op
$169,000
2 bds 2 ba 991 sqft
6016 WESTGATE DRIVE UNIT 201
5572 METROWEST BOULEVARD UNIT 20 placeholder 5572 METROWEST BOULEVARD UNIT 20
9 days
For Sale
Condo/Co-op
$163,700
2 bds 2 ba 1,159 sqft
5572 METROWEST BOULEVARD UNIT 20
3561 CONROY ROAD UNIT 216 placeholder 3561 CONROY ROAD UNIT 216
9 days
For Sale
Condo/Co-op
$175,000
1 bds 1 ba 782 sqft
3561 CONROY ROAD UNIT 216

The multiple listing information is provided by the Stellar MLS from a copyrighted compilation of listings. The compilation of listings and each individual listing are ©2025-present Stellar MLS. All Rights Reserved. The information provided is for consumers' personal, noncommercial use and may not be used for any purpose other than to identify prospective properties consumers may be interested in purchasing. All properties are subject to prior sale or withdrawal. All information provided is deemed reliable but is not guaranteed accurate, and should be independently verified. Listing courtesy of: OPENDOOR BROKERAGE LLC