Contact
Tell us about your needs

8075 112TH STREET UNIT 303

Condo/Co-op For Rent
$1,300

BTC: 0.01480117

ETH: 0.65000000

/mo
New
1 bds
1 ba
704 sqft
Est. Estimated sales range: $0 - $0
$0

Overview

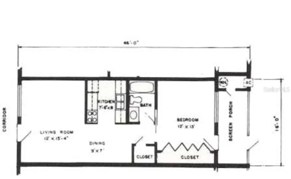
No Flood Zone - Non Evacuation Zone: Welcome to this peaceful one-bedroom, one-bath home in a well-cared-for 55+ community right in the heart of Seminole, ideally located between Clearwater and St. Petersburg. The community spans 53 beautifully landscaped acres and offers elevator access, assigned parking, and a calm, comfortable setting you’ll feel the moment you arrive. This unit features a bonus room overlooking one of the community’s two lakes. It’s the perfect spot for morning coffee, a small office, or simply a quiet place to relax and enjoy the view. The home comes partially furnished with a wood entertainment center, couch, table, lamp, queen adjustable Sealy Posturepedic mattress, bedroom TV, desk, and office chair. Laminate and Tile throughout. It’s truly move-in ready. Just bring your clothes and personal touches. Seminole Gardens offers fantastic amenities, including a heated pool, hot tub, steam sauna, community center, pool table, library, game room, fitness area, and shuffleboard courts. There is a Seminole Garden community bus which offers FREE bus rides. There is a bus stop right in front of the building and multiple pickup times throughout the day. Get to know your neighbors by joining in on the activities and clubs at the clubhouse. Shopping, restaurants, and everyday conveniences are all within easy walking distance. You’ll appreciate the laundry facilities located on the first floor just outside the elevator, along with your own private locked storage area. Mailboxes are conveniently located directly in front of your assigned parking spot. Best of all, you’re just minutes from the Gulf beaches while enjoying a quiet, non-evacuation, no flood zone location. One small dog or cat is allowed with a non-refundable pet fee. This is an easy, comfortable place to call home. If you’ve been looking for something quiet, convenient, and well-located, this one is worth seeing. Schedule your showing today.

Location

Facts and features

Type:
Residential Lease
Parking:
No Data
Year Built:
1967
Lot:
0.25 Acres
Heating:
Central
Price/sqft:
$2
Cooling:
Central Air
HOA:
No Data
All facts and features
  • Flooring

    • Laminate

    • Tile

    Heating

    • Central

    Cooling

    • Central Air

    Appliances

    • Dishwasher

    • Electric Water Heater

    • Microwave

    • Other

    • Range

    • Refrigerator

    Other interior features

    • Ceiling Fan(s)

    • Living Room/Dining Room Combo

    • Open Floorplan

    • Primary Bedroom Main Floor

    • Thermostat

    • Walk-In Closet(s)

    • Window Treatments

    Bedrooms and bathrooms

    • Bedrooms: 1

    • Full bathrooms: 1

  • Property

    • Levels: One

    Lot

    • Lot: 0.25 Acres

    Other Property Information

    • Parcel Number: 273015796881643030

  • Type and style

    • Property Type: Residential Lease

    • Property Sub Type: Condominium

  • Utility

    • Cable Available

    • Cable Connected

    • Electricity Available

    • Electricity Connected

    • Sewer Available

    • Sewer Connected

    • Street Lights

    • Water Available

    • Water Connected

  • Source details

    • MLS ID: TB8457015

    Other facts

    • Laundry Features: Common Area

    • Lot Features: In County / Landscaped / Near Golf Course / Near Marina / Near Public Transit / Sidewalk / Unincorporated

    • Pool Features: In Ground

    • Window Features: Blinds / Shutters

    • Living Area: 704

    • Water Source: Public

    • Subdivision Name: SEMINOLE GARDEN APTS CO-OP

Similar Homes

2103 CORDOVA GRN UNIT 2103 placeholder 2103 CORDOVA GRN UNIT 2103
New
For Rent
Condo/Co-op
$1,500 /mo
1 bds 1 ba 775 sqft
2103 CORDOVA GRN UNIT 2103
11485 OAKHURST ROAD UNIT 315 placeholder 11485 OAKHURST ROAD UNIT 315
11 days
For Rent
Condo/Co-op
$1,190 /mo
1 bds 1 ba 630 sqft
11485 OAKHURST ROAD UNIT 315
9434 LYNN LANE UNIT C placeholder 9434 LYNN LANE UNIT C
14 days
For Rent
Condo/Co-op
$1,495 /mo
2 bds 1 ba 960 sqft
9434 LYNN LANE UNIT C
9851 113TH STREET N UNIT 207 placeholder 9851 113TH STREET N UNIT 207
-$345 (2025/12/09)
For Rent
Condo/Co-op
$1,650 /mo
2 bds 2 ba 1,150 sqft
9851 113TH STREET N UNIT 207
11485 OAKHURST ROAD UNIT 1200-303 placeholder 11485 OAKHURST ROAD UNIT 1200-303
-$50 (2025/12/08)
For Rent
Condo/Co-op
$1,550 /mo
1 bds 1 ba 630 sqft
11485 OAKHURST ROAD UNIT 1200-303
8454 111TH STREET UNIT 205 placeholder 8454 111TH STREET UNIT 205
-$125 (2025/11/15)
For Rent
Condo/Co-op
$1,375 /mo
2 bds 1 ba 874 sqft
8454 111TH STREET UNIT 205
9403 LYNN LANE UNIT A placeholder 9403 LYNN LANE UNIT A
50 days
For Rent
Condo/Co-op
$1,495 /mo
2 bds 1 ba 960 sqft
9403 LYNN LANE UNIT A
10196 SAILWINDS BOULEVARD S UNIT 208 placeholder 10196 SAILWINDS BOULEVARD S UNIT 208
-$50 (2025/11/29)
For Rent
Condo/Co-op
$1,400 /mo
1 bds 1 ba 657 sqft
10196 SAILWINDS BOULEVARD S UNIT 208

The multiple listing information is provided by the Stellar MLS from a copyrighted compilation of listings. The compilation of listings and each individual listing are ©2025-present Stellar MLS. All Rights Reserved. The information provided is for consumers' personal, noncommercial use and may not be used for any purpose other than to identify prospective properties consumers may be interested in purchasing. All properties are subject to prior sale or withdrawal. All information provided is deemed reliable but is not guaranteed accurate, and should be independently verified. Listing courtesy of: TREASURED HOME COLLECTION