Contact
Tell us about your needs

8298 PORTOFINO DRIVE UNIT 405

Condo/Co-op For Sale
$204,900

BTC: 2.35924007

ETH: 102.45000000

1 days
3 bds
2 ba
1,384 sqft
Est. Estimated sales range: $0 - $0
$0

Overview

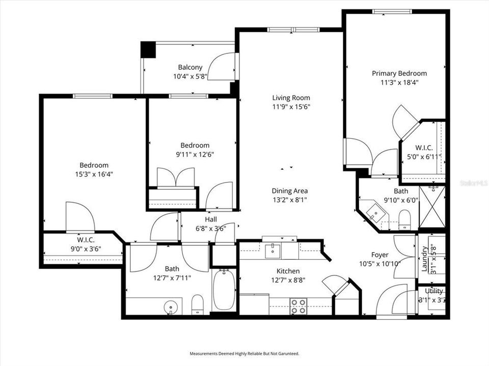
Welcome home to this top-floor condo in the gated community of Bella Trae, where comfort meets resort-style living. Enjoy peaceful mornings and relaxing evenings on the screened-in lanai overlooking a tranquil pond, offering added privacy with no neighbors above. The thoughtfully designed floor plan features a combined living and dining area, perfect for everyday living and entertaining. The kitchen overlooks the main living spaces and is equipped with stainless steel appliances, including a new refrigerator (2024), new microwave (2025), and upgraded dishwasher (2021). A laundry closet with a full-sized washer (2021) and dryer adds everyday convenience. The primary suite offers a walk-in closet and an updated en-suite bathroom with an upgraded sink and faucet plus medicine storage cabinets. The two additional bedrooms are separated for added privacy, with the second guest bedroom functioning as a dual primary suite featuring its own attached bathroom and walk-in closet—ideal for guests or multi-generational living. Additional highlights include one covered carport parking space with private storage, a smart door lock for remote access, and a newer AC (2021) with UV light. HOA dues include water, pest control, and basic cable and internet, making for low-maintenance living. Bella Trae delivers an exceptional lifestyle with resort-style amenities, including a zero-entry heated pool and spa, clubhouse, fitness center, community grills, billiards room, Wall Street library, putting green, and pickleball courts. Ideally located near world-famous theme parks and multiple golf courses, this condo offers the perfect blend of relaxation, recreation, and convenience. Schedule your private showing today and experience the Bella Trae lifestyle for yourself.

Location

Facts and features

Type:
Residential
Parking:
Deeded / Ground Level / Guest
Year Built:
2008
Lot:
No Data
Heating:
Central / Electric
Price/sqft:
$148
Cooling:
Central Air
HOA:
$536
All facts and features
  • Flooring

    • Carpet

    • Tile

    Heating

    • Central

    • Electric

    Cooling

    • Central Air

    Appliances

    • Dishwasher

    • Dryer

    • Microwave

    • Range

    • Refrigerator

    • Washer

    Other interior features

    • Ceiling Fan(s)

    • Living Room/Dining Room Combo

    • Primary Bedroom Main Floor

    • Split Bedroom

    • Thermostat

    • Walk-In Closet(s)

    Bedrooms and bathrooms

    • Bedrooms: 3

    • Full bathrooms: 2

  • Parking

    • Deeded

    • Ground Level

    • Guest

    Property

    • Levels: One

    • Exterior Features: Balcony / Other / Storage

    Other Property Information

    • Parcel Number: 332527466300041005

    • Zoning: RES

  • Type and style

    • Property Type: Residential

    • Property Sub Type: Condominium

  • Utility

    • BB/HS Internet Available

    • Cable Available

  • Other financial information

    • HOA: $536

    • HOA Frequency: Monthly

    • Annual tax amount: $1,295

  • Source details

    • MLS ID: O6368027

    Other facts

    • Construction Materials: Block / Stucco

    • Foundation Details: Slab

    • Laundry Features: Laundry Closet

    • Patio And Porch Features: Enclosed

    • Direction Faces: Northwest

    • Living Area: 1384

    • Water Source: Public

    • Subdivision Name: VENTURA AT BELLA TRAE CONDO PH 5

Similar Homes

7697 HERITAGE CROSSING WAY UNIT 202 placeholder 7697 HERITAGE CROSSING WAY UNIT 202
1 days
For Sale
Condo/Co-op
$249,900
3 bds 2 ba 1,344 sqft
7697 HERITAGE CROSSING WAY UNIT 202
1370 TUSCAN TERRACE UNIT 2202 placeholder 1370 TUSCAN TERRACE UNIT 2202
3 days
For Sale
Condo/Co-op
$175,000
2 bds 2 ba 1,134 sqft
1370 TUSCAN TERRACE UNIT 2202
8250 CIVITA DRIVE UNIT 201 placeholder 8250 CIVITA DRIVE UNIT 201
10 days
For Sale
Condo/Co-op
$225,000
3 bds 2 ba 1,248 sqft
8250 CIVITA DRIVE UNIT 201
8302 PORTOFINO DRIVE UNIT 105 placeholder 8302 PORTOFINO DRIVE UNIT 105
11 days
For Sale
Condo/Co-op
$198,900
3 bds 2 ba 1,384 sqft
8302 PORTOFINO DRIVE UNIT 105
214 MONROE CIRCLE placeholder 214 MONROE CIRCLE
12 days
For Sale
Townhouse
$215,000
3 bds 2 ba 1,262 sqft
214 MONROE CIRCLE
8996 AZALEA SANDS LANE UNIT 3301 placeholder 8996 AZALEA SANDS LANE UNIT 3301
16 days
For Sale
Condo/Co-op
$250,000
2 bds 2 ba 1,409 sqft
8996 AZALEA SANDS LANE UNIT 3301
8925 AZALEA SANDS LANE UNIT 602 placeholder 8925 AZALEA SANDS LANE UNIT 602
16 days
For Sale
Condo/Co-op
$235,000
2 bds 2 ba 1,409 sqft
8925 AZALEA SANDS LANE UNIT 602
1301 TUSCAN TERRACE UNIT 9105 placeholder 1301 TUSCAN TERRACE UNIT 9105
24 days
For Sale
Condo/Co-op
$213,900
3 bds 2 ba 1,244 sqft
1301 TUSCAN TERRACE UNIT 9105

The multiple listing information is provided by the Stellar MLS from a copyrighted compilation of listings. The compilation of listings and each individual listing are ©2025-present Stellar MLS. All Rights Reserved. The information provided is for consumers' personal, noncommercial use and may not be used for any purpose other than to identify prospective properties consumers may be interested in purchasing. All properties are subject to prior sale or withdrawal. All information provided is deemed reliable but is not guaranteed accurate, and should be independently verified. Listing courtesy of: REAL BROKER, LLC