Contact
Tell us about your needs

1554 LUNN WOODS TRAIL

For Sale
$329,900

BTC: 3.80069124

ETH: 112.74777854

22 days
4 bds
3 ba
2,160 sqft
Est. Estimated sales range: $0 - $0
$0

Overview

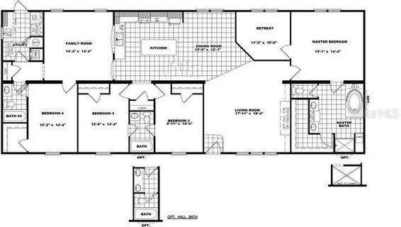
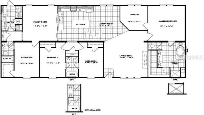
One or more photo(s) has been virtually staged. LISTED UNDER VALUE!! THIS ONE HAS EVERYTHING YOU ARE LOOKING FOR!!! NOT HOA & NOT CDD. Welcome to this beautiful double-wide mobile home, a modern marvel built in 2022 located in South Lakeland. Spanning over 2000 square feet, this spacious residence offers 4 bedrooms and 3 full bathrooms, making it an ideal retreat for families of all sizes. The home is nestled on a stunning 1.40-acre lot, providing ample outdoor space for recreation and relaxation. The master bedroom is a true sanctuary, featuring a den or retreat room that can easily be transformed into an office or nursery to suit your needs. The master suite also boasts a generous walk-in closet and high ceilings, adding to the sense of space and luxury. The living areas are designed for comfort and functionality, with a living room and family room providing plenty of space for both casual gatherings and formal entertaining. The heart of this home is the kitchen, which is both practical and beautiful. It features an island, perfect for meal prep and casual dining, and is equipped with stainless steel appliances that add a touch of modern elegance. The kitchen's thoughtful design ensures a comfortable and efficient cooking experience. The home also includes a convenient laundry room, enhancing your daily routine. With three full bathrooms, including a Jack and Jill bathroom, this home offers convenience and privacy for everyone. High ceilings throughout the home, along with crown molding, contribute to an open and airy atmosphere. Outside, you'll find a new shade structure in the backyard, providing a perfect spot for outdoor activities and relaxation. This property truly combines modern living with the tranquility of a spacious lot. Don't miss the opportunity to make this exceptional mobile home your own. Schedule a viewing today and experience the perfect blend of comfort, style, and functionality.

Location

Florida LAKELAND 33811 For Sale

Facts and features

Type:
Residential
Parking:
No Data
Year Built:
2022
Lot:
1.42 Acres
Heating:
Central
Price/sqft:
$153
Cooling:
Central Air
HOA:
No Data
All facts and features
  • Flooring

    • Carpet

    • Laminate

    Heating

    • Central

    Cooling

    • Central Air

    Appliances

    • Dishwasher

    • Electric Water Heater

    • Microwave

    • Range

    • Refrigerator

    Other interior features

    • Ceiling Fan(s)

    • Crown Molding

    • Eating Space In Kitchen

    • High Ceilings

    Bedrooms and bathrooms

    • Bedrooms: 4

    • Full bathrooms: 3

  • Property

    • Levels: One

    • Exterior Features: Storage

    Lot

    • Lot: 1.42 Acres

    Other Property Information

    • Parcel Number: 232923141803000310

  • Type and style

    • Property Type: Residential

    • Property Sub Type: Manufactured Home

  • Utility

    • Electricity Connected

  • Other financial information

    • Annual tax amount: $4,525

  • Source details

    • MLS ID: L4957826

    Other facts

    • Construction Materials: Other / Wood Frame

    • Foundation Details: Crawlspace

    • Laundry Features: Inside

    • Direction Faces: East

    • Other Structures: Shed(s)

    • Living Area: 2160

    • Water Source: Well

    • Subdivision Name: LUNN WOODS

Similar Homes

3024 BLOWN FEATHER LANE placeholder 3024 BLOWN FEATHER LANE
New
For Sale
House
$289,000
3 bds 2 ba 1,405 sqft
3024 BLOWN FEATHER LANE
1105 STONEY CREEK BOULEVARD placeholder 1105 STONEY CREEK BOULEVARD
New
For Sale
House
$382,000
3 bds 2 ba 2,010 sqft
1105 STONEY CREEK BOULEVARD
4121 PALO ALTO DRIVE placeholder 4121 PALO ALTO DRIVE
1 days
For Sale
House
$330,000
3 bds 2 ba 1,427 sqft
4121 PALO ALTO DRIVE
924 MICANOPY DRIVE placeholder 924 MICANOPY DRIVE
3 days
For Sale
House
$383,250
3 bds 2 ba 1,750 sqft
924 MICANOPY DRIVE
6433 TORRINGTON CIRCLE placeholder 6433 TORRINGTON CIRCLE
8 days
For Sale
Townhouse
$305,000
3 bds 2 ba 1,596 sqft
6433 TORRINGTON CIRCLE
5134 ORCHARD ORIOLE LOOP placeholder 5134 ORCHARD ORIOLE LOOP
10 days
For Sale
House
$357,490
5 bds 3 ba 2,601 sqft
5134 ORCHARD ORIOLE LOOP
4924 S DOSSEY ROAD placeholder 4924 S DOSSEY ROAD
12 days
For Sale
$285,000
3 bds 2 ba 1,284 sqft
4924 S DOSSEY ROAD
4708 DAIL ROAD placeholder 4708 DAIL ROAD
13 days
For Sale
House
$407,900
3 bds 2 ba 2,598 sqft
4708 DAIL ROAD

The multiple listing information is provided by the Stellar MLS from a copyrighted compilation of listings. The compilation of listings and each individual listing are ©2026-present Stellar MLS. All Rights Reserved. The information provided is for consumers' personal, noncommercial use and may not be used for any purpose other than to identify prospective properties consumers may be interested in purchasing. All properties are subject to prior sale or withdrawal. All information provided is deemed reliable but is not guaranteed accurate, and should be independently verified. Listing courtesy of: EXP REALTY LLC