Contact
Tell us about your needs

2511 Christopher Ln, Other City - In The State Of Florida FL 33440

House For Sale
$950,000

BTC: 10.93839954

ETH: 475.00000000

-$300K (2025/06/04)
427 days
Waterfront
4 bds
2 ba
2,356 sqft
Est. Estimated sales range: $0 - $0
$0

Overview

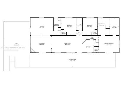
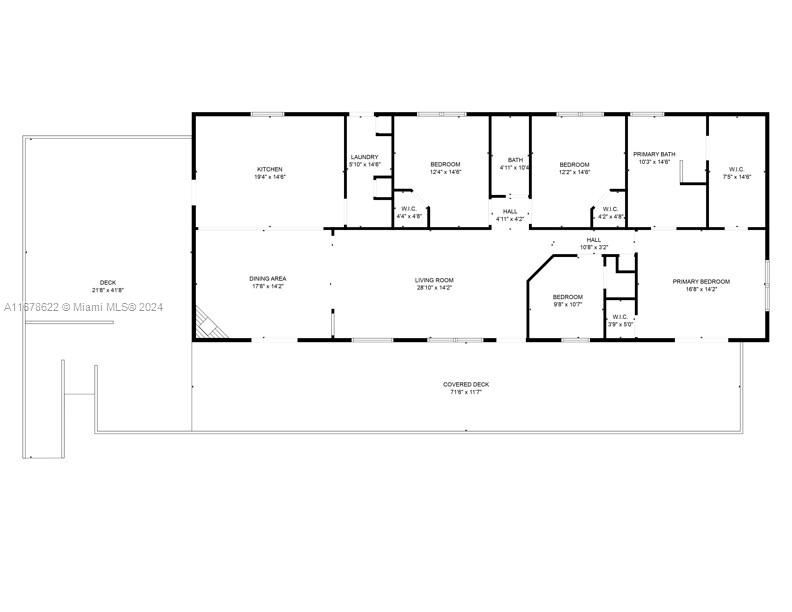
Escape the hustle and bustle of city life and embrace the serenity of country living with this charming home set on 5 acres of picturesque land. This property offers peace, tranquility, and endless possibilities, complete with a private pond and a wraparound porch that catches a gentle breeze year-round. The home features 4 spacious bedrooms, 2 bathrooms, and a cozy fireplace in the dining area, creating a warm and inviting atmosphere. The fully fenced 5-acre lot includes a gated entrance, providing privacy and security. Enjoy fishing in your very own pond, raising livestock, or cultivating your own fruits and vegetables—perfect for those looking to reconnect with nature. Experience country living at its finest—this home is a must-see!

Location

Facts and features

Type:
Residential
Parking:
Circular Driveway / Driveway
Year Built:
2005
Lot:
435600 Square Feet
Heating:
Central / Electric
Price/sqft:
$403
Cooling:
Ceiling Fan(s) / Central Air / Electric
HOA:
No Data
All facts and features
  • Flooring

    • Ceramic Floor

    • Wood

    Heating

    • Central

    • Electric

    Cooling

    • Ceiling Fan(s)

    • Central Air

    • Electric

    Appliances

    • Bottled Gas

    • Dishwasher

    • Dryer

    • Gas Water Heater

    • Microwave

    • Gas Range

    • Refrigerator

    • Washer

    • Water Softener Owned

    Other interior features

    • First Floor Entry

    • Cooking Island

    • Pantry

    • Roman Tub

    • Walk-In Closet(s)

    • Great Room

    • Utility Room/Laundry

    Bedrooms and bathrooms

    • Bedrooms: 4

    • Full bathrooms: 2

  • Parking

    • Circular Driveway

    • Driveway

    Property

    • Exterior Features: Lighting / Fruit Trees / Room For Pool

    Lot

    • Lot: 435600 Square Feet

    Other Property Information

    • Parcel Number: 1 13 43 21 010 0000-016.2

    • Zoning: Single Family

  • Type and style

    • Property Type: Residential

    • Property Sub Type: Mobile Home

  • Other financial information

    • Annual tax amount: $5,188

  • Source details

    • MLS ID: A11678622

    Other facts

    • Construction Materials: Modular Construction / Other

    • Fireplace Features: Fireplace

    • Laundry Features: Utility Room/Laundry

    • Lot Features: 4 To Less Than 5 Acre Lot

    • Patio And Porch Features: Wrap Around

    • Direction Faces: North

    • Other Structures: Extra Building/Shed

    • Architectural Style: Detached / One Story

    • Waterfront: Yes

    • Fireplace: Yes

    • Living Area: 2356

    • Water Source: Well

    • Subdivision Name: FL HENDRY LAND 40 AC TRS U,HENDRY ISLE

Similar Homes

2516 Christopher Lane, Clewiston FL 33440 placeholder 2516 Christopher Lane, Clewiston FL 33440
1 days
For Sale
Commercial
$758,000
0 room(s)
2516 Christopher Lane, Clewiston FL 33440
5250 PIONEER 15TH STREET placeholder 5250 PIONEER 15TH STREET
401 days
For Sale
$899,000
4 bds 2 ba 2,432 sqft
5250 PIONEER 15TH STREET

The multiple listing information is provided by the Miami Association of REALTORS® from a copyrighted compilation of listings. The compilation of listings and each individual listing are ©2025-present Miami Association of REALTORS®. All Rights Reserved. The information provided is for consumers' personal, noncommercial use and may not be used for any purpose other than to identify prospective properties consumers may be interested in purchasing. All properties are subject to prior sale or withdrawal. All information provided is deemed reliable but is not guaranteed accurate, and should be independently verified. Listing courtesy of: Real Estate Boutique of So Fla