Contact
Tell us about your needs

7809 Horned Lark, Port Saint Lucie, FL 34952

House For Sale
$169,900

BTC: 1.86703297

ETH: 54.80645161

-$10K (2025/12/05)
237 days
3 bds
2 ba
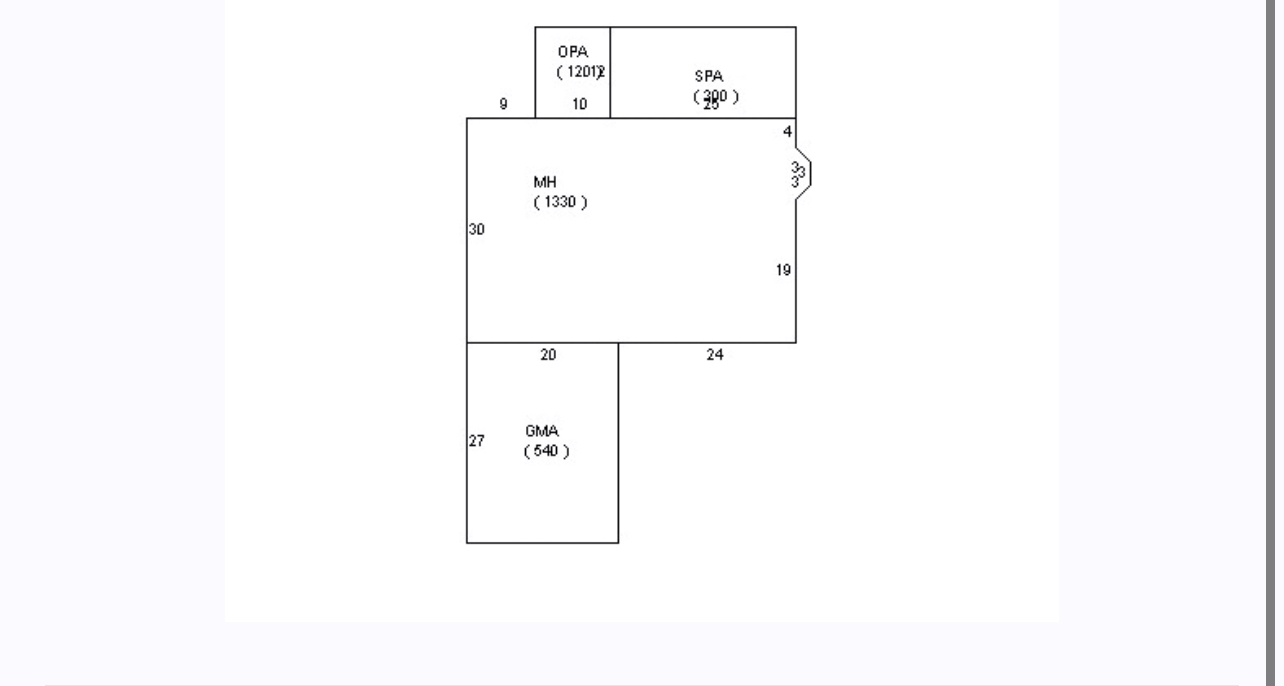
1,330 sqft
Est. Estimated sales range: $0 - $0
$0

Overview

In the 55 plus community of the Savanna Club, 16 minutes from the beach we have for sale a 3 bedroom 2 bath 2 car garage with an enclosed lanai! SO many upgrades, real windows, stainless steel appliances,! This could truly be your home in paradise! This land lease property is ready for someone to make memories with!

Location

Facts and features

Type:
Residential
Parking:
2+ Spaces
Year Built:
2004
Lot:
6395 Square Feet
Heating:
Central
Price/sqft:
$128
Cooling:
Ceiling Fan / Central
HOA:
No Data
All facts and features
  • Flooring

    • Linoleum

    • Tile

    Heating

    • Central

    Cooling

    • Ceiling Fan

    • Central

    Appliances

    • Auto Garage Open

    • Dishwasher

    • Dryer

    • Microwave

    • Refrigerator

    • Washer

    • Water Heater - Elec

    Other interior features

    • Walk-in Closet

    Bedrooms and bathrooms

    • Bedrooms: 3

    • Full bathrooms: 2

  • Parking

    • 2+ Spaces

    Property

    • Exterior Features: Auto Sprinkler

    Lot

    • Lot: 6395 Square Feet

    Other Property Information

    • Parcel Number: 342470200640002

    • Zoning: Planne

  • Type and style

    • Property Type: Residential

    • Property Sub Type: Mobile Home

  • Utility

    • Cable

    • Electric

    • Public Sewer

    • Public Water

  • Other financial information

    • Annual tax amount: $3,293

  • Source details

    • MLS ID: RX-11091230

    Other facts

    • Construction Materials: Manufactured

    • Laundry Features: Washer and Dryer

    • Lot Features: < 1/4 Acre

    • Patio And Porch Features: Patio

    • Direction Faces: From US1Turn Right on to Savanna Club BoulevardTurn left onto Bromeliad CircleTurn left onto Green Heron Blvd.Turn left onto Horned Lark Cir.Turn right Home will be on your right

    • Living Area: 1330

    • Subdivision Name: EAGLE'S RETREAT AT SAVANNA CLUB PHASE 2

Similar Homes

5831 Honeybell, Fort Pierce, FL 34982 placeholder 5831 Honeybell, Fort Pierce, FL 34982
2 days
For Sale
Condo/Co-op
$180,000
2 bds 2 ba 1,336 sqft
5831 Honeybell, Fort Pierce, FL 34982
2 Antigua, Port Saint Lucie, FL 34952 placeholder 2 Antigua, Port Saint Lucie, FL 34952
2 days
For Sale
House
$189,500
2 bds 2 ba 1,463 sqft
2 Antigua, Port Saint Lucie, FL 34952
422 Coconut, Port Saint Lucie, FL 34952 placeholder 422 Coconut, Port Saint Lucie, FL 34952
3 days
For Sale
House
$219,971
3 bds 1 ba 1,330 sqft
422 Coconut, Port Saint Lucie, FL 34952
8126 Meadowlark, Port Saint Lucie, FL 34952 placeholder 8126 Meadowlark, Port Saint Lucie, FL 34952
3 days
For Sale
House
$187,777
2 bds 2 ba 1,529 sqft
8126 Meadowlark, Port Saint Lucie, FL 34952
3801 Meadowlark, Port Saint Lucie, FL 34952 placeholder 3801 Meadowlark, Port Saint Lucie, FL 34952
3 days
For Sale
House
$159,900
2 bds 2 ba 1,216 sqft
3801 Meadowlark, Port Saint Lucie, FL 34952
3805 Doral, Port Saint Lucie, FL 34952 placeholder 3805 Doral, Port Saint Lucie, FL 34952
5 days
For Sale
House
$137,900
3 bds 2 ba 1,336 sqft
3805 Doral, Port Saint Lucie, FL 34952
22 Lake Vista, Port Saint Lucie, FL 34952 placeholder 22 Lake Vista, Port Saint Lucie, FL 34952
6 days
For Sale
Condo/Co-op
$189,000
2 bds 2 ba 1,080 sqft
22 Lake Vista, Port Saint Lucie, FL 34952
1679 Green Acres, Port Saint Lucie, FL 34952 placeholder 1679 Green Acres, Port Saint Lucie, FL 34952
7 days
For Sale
Condo/Co-op
$179,000
2 bds 2 ba 874 sqft
1679 Green Acres, Port Saint Lucie, FL 34952

The multiple listing information is provided by the Beaches MLS from a copyrighted compilation of listings. The compilation of listings and each individual listing are ©2026-present Beaches MLS. All Rights Reserved. The information provided is for consumers' personal, noncommercial use and may not be used for any purpose other than to identify prospective properties consumers may be interested in purchasing. All properties are subject to prior sale or withdrawal. All information provided is deemed reliable but is not guaranteed accurate, and should be independently verified. Listing courtesy of: Atlantic Shores ERA Powered