Contact
Tell us about your needs

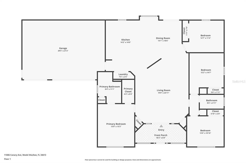
11006 CANARY AVENUE

House For Sale
$365,000

BTC: 4.20264824

ETH: 182.50000000

-$15K (2025/12/01)
51 days
4 bds
2 ba
1,897 sqft
Est. Estimated sales range: $0 - $0
$0

Overview

Welcome to a truly special home nestled on an oversized half-acre corner lot where space and privacy combine to create a rare offering in this desirable Weeki Wachee area. A brand-new roof, completed in August 2025, provides lasting peace of mind and adds to the home’s value. As you approach, the charming gable roof and welcoming screened front porch greet you — this unique space, under the main roof and offering plenty of privacy, feels like a cozy outdoor retreat yet serves as the gracious entry into the home. Step through double French doors with matching sidelights into a luminous foyer where tile flooring stretches into a living room anchored by vaulted ceilings, large gable-windows bathing the space in natural light, and beautiful wood flooring underfoot; the living room even features two closets, adding versatile storage in an open-concept layout that flows directly into the heart of the home. The kitchen shines with stylish counters, a central island, double sink under a window looking out to the yard, and tile flooring, while the adjacent dining area offers a built-in window seat and French doors leading out to the backyard oasis. Behind the scenes just off the kitchen you’ll find the convenient laundry closet. On the opposite side of the home, four spacious bedrooms provide ample room for family or guests; the primary suite boasts carpeted floors, an ensuite bathroom with dual sinks, tub/shower combo, and a walk-in closet. The second bath mirrors the tub/shower layout with a single sink. Outside, the completely fenced backyard with white PVC fencing and side gates offers a large tree-scattered yard, a small fire-pit for cozy evenings, and a concrete patio shaded by awnings over the French doors and nearby windows — a perfect setting for gardening, play, or simply enjoying Florida living. The three-car garage adds tremendous value and flexibility. And just beyond your doorstep, you’re located near one of Florida’s most enchanting destinations — the beloved Weeki Wachee Springs State Park — where you can watch the iconic mermaid shows and float down the crystal clear waters of the Weeki Wachee River amidst nature’s splendor. This home combines elegance, room to roam, quality updates, and immediate access to one of the Sunshine State’s most magical playgrounds — all in a serene corner-lot setting.

Location

Facts and features

Type:
Residential
Parking:
Garage Door Opener / Ground Level / Off Street
Year Built:
2007
Lot:
0.51 Acres
Heating:
Central / Electric
Price/sqft:
$192
Cooling:
Central Air
HOA:
No Data
All facts and features
  • Flooring

    • Carpet

    • Ceramic Tile

    Heating

    • Central

    • Electric

    Cooling

    • Central Air

    Appliances

    • Dishwasher

    • Microwave

    • Range

    • Refrigerator

    Other interior features

    • Cathedral Ceiling(s)

    • Ceiling Fan(s)

    • High Ceilings

    • Open Floorplan

    • Primary Bedroom Main Floor

    • Split Bedroom

    • Stone Counters

    • Thermostat

    • Vaulted Ceiling(s)

    • Walk-In Closet(s)

    Bedrooms and bathrooms

    • Bedrooms: 4

    • Full bathrooms: 2

  • Parking

    • Garage Door Opener

    • Ground Level

    • Off Street

    Property

    • Levels: One

    • Exterior Features: Awning(s) / Rain Gutters

    Lot

    • Lot: 0.51 Acres

    Other Property Information

    • Parcel Number: R0122117340001390080

    • Zoning: R1C

  • Type and style

    • Property Type: Residential

    • Property Sub Type: Single Family Residence

  • Utility

    • BB/HS Internet Available

    • Electricity Available

    • Water Available

  • Other financial information

    • Annual tax amount: $3,605

  • Source details

    • MLS ID: W7880246

    Other facts

    • Construction Materials: Block / Stucco

    • Foundation Details: Concrete Perimeter

    • Laundry Features: Electric Dryer Hookup / Laundry Room / Washer Hookup

    • Lot Features: Corner Lot / Irregular Lot

    • Patio And Porch Features: Front Porch / Screened

    • Direction Faces: North

    • Garage Spaces: 3

    • Attached Garage: Yes

    • Garage: Yes

    • Living Area: 1897

    • Water Source: Well

    • Subdivision Name: ROYAL HIGHLANDS

Similar Homes

5432 BIRCHWOOD ROAD placeholder 5432 BIRCHWOOD ROAD
New
For Sale
House
$359,900
3 bds 3 ba 2,129 sqft
5432 BIRCHWOOD ROAD
13120 TAYLOR STREET placeholder 13120 TAYLOR STREET
1 days
For Sale
$315,000
3 bds 3 ba 1,728 sqft
13120 TAYLOR STREET
5178 ROBLE AVENUE placeholder 5178 ROBLE AVENUE
1 days
For Sale
House
$335,000
3 bds 2 ba 1,954 sqft
5178 ROBLE AVENUE
11664 MEMORIAL DRIVE placeholder 11664 MEMORIAL DRIVE
1 days
For Sale
House
$368,070
5 bds 3 ba 2,605 sqft
11664 MEMORIAL DRIVE
5505 OCEAN BREEZE DRIVE placeholder 5505 OCEAN BREEZE DRIVE
2 days
For Sale
House
$303,950
3 bds 2 ba 1,512 sqft
5505 OCEAN BREEZE DRIVE
5180 WINTERVILLE ROAD placeholder 5180 WINTERVILLE ROAD
2 days
For Sale
House
$419,400
4 bds 3 ba 2,061 sqft
5180 WINTERVILLE ROAD
5515 OCEAN BREEZE DRIVE placeholder 5515 OCEAN BREEZE DRIVE
2 days
For Sale
House
$320,850
3 bds 2 ba 1,720 sqft
5515 OCEAN BREEZE DRIVE
9376 BEARWALK PATH placeholder 9376 BEARWALK PATH
3 days
For Sale
House
$459,900
3 bds 3 ba 2,144 sqft
9376 BEARWALK PATH

The multiple listing information is provided by the Stellar MLS from a copyrighted compilation of listings. The compilation of listings and each individual listing are ©2025-present Stellar MLS. All Rights Reserved. The information provided is for consumers' personal, noncommercial use and may not be used for any purpose other than to identify prospective properties consumers may be interested in purchasing. All properties are subject to prior sale or withdrawal. All information provided is deemed reliable but is not guaranteed accurate, and should be independently verified. Listing courtesy of: RE/MAX MARKETING SPECIALISTS