Contact
Tell us about your needs

1101 80TH STREET COURT S

House For Sale
$999,500

BTC: 11.19963247

ETH: 499.75000000

New
4 bds
2 ba
2,613 sqft
Est. Estimated sales range: $0 - $0
$0

Overview

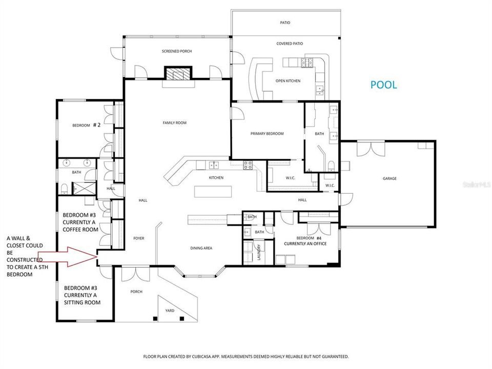
Exceptional pride of ownership is apparent in this move-in-ready, solid block single-level pool home, ideally positioned on a quiet cul-de-sac in the highly desirable neighborhood of Yacht Club Estates. Offering 2,613 heated square feet of thoughtfully designed living space, this home features 4 bedrooms with potential for a 5th, 2.5 baths, interior laundry, and a 2-car garage - Delivering the space, functionality, and quality today’s buyers seek. The spacious open concept living and kitchen area is enhanced by a three-way split bedroom floor plan and continuous luxury vinyl plank flooring throughout. Designed for both daily living and entertaining, the bright and updated kitchen showcases an abundance of solid wood cabinetry, granite countertops, black stainless steel GE appliances, a reverse osmosis filtration system, an InsinkErator hot water dispenser, a center island, a 6 plus seat breakfast bar, and a serving counter that seamlessly connects to the formal dining room. Privately located off the living room, the primary suite offers a true retreat, complete with a custom walk-in closet and a spa-inspired en-suite bath featuring dual sinks, generous cabinet storage, a large walk-in shower, and a dedicated makeup vanity. To the right of the kitchen is a newly remodeled half bath with an option to add a shower in the attached closet, a bedroom currently utilized as an office, and a convenient laundry room. A custom glass door leads to the pristine garage, finished with epoxy flooring. On the left side of the home is an updated hall bath with dual sinks and a walk-in shower, along with two additional bedrooms. The oversized front bedroom - approximately 26’ X 11 1/2’ - is currently used as a sitting room/coffee room. A demising wall and closet could easily convert this space into a fifth bedroom. In its current design, it is perfect for single family, in-law or multi-generational living. Step outside to your private tropical oasis and enjoy Florida living year-round. A newly constructed, covered and screened patio extends directly off the back of the house. The exceptional outdoor bar and kitchen overlooks the sparkling pool with new pump and filter and is a true showpiece, offering seating for 10+ guests and featuring a Lazyman propane grill, bar refrigerator, wine cooler, Luxor warming oven, bar sink with condiment trays and integrated ice storage – perfect for entertaining on any scale. The backyard is fully fenced with reclaimed water irrigation, and there is plenty of green space for all of your outdoor activities! Meticulously maintained and free of damage/water intrusion from the 2024 hurricane season - some of the homes valuable extras include: Roof (2025), Hot Water Heater (2025), Interior Doors (2025), AC (2024), Aluminum Covered Lanai (2022), Windows & Exterior Doors (2021/2022), Plantation Shutters, 5 ½" Baseboard, Crown Molding, Whole House Aerus Origins Water Purifier/Conditioner, Paver Driveway and Pool Deck, Safe Touch Security System, Outdoor Shed, Outdoor Lighting and Natural Gas available. Yacht Club Estates offers underground utilities, various clubs and is minutes to our beautiful beaches, shopping & restaurants. Schedule your private showing today!

Location

Facts and features

Type:
Residential
Parking:
Driveway / Garage Door Opener
Year Built:
1969
Lot:
0.23 Acres
Heating:
Central / Electric
Price/sqft:
$383
Cooling:
Central Air
HOA:
No Data
All facts and features
  • Flooring

    • Luxury Vinyl

    • Tile

    Heating

    • Central

    • Electric

    Cooling

    • Central Air

    Appliances

    • Dishwasher

    • Disposal

    • Dryer

    • Electric Water Heater

    • Kitchen Reverse Osmosis System

    • Microwave

    • Range

    • Refrigerator

    • Washer

    • Water Purifier

    Other interior features

    • Ceiling Fan(s)

    • Crown Molding

    • Kitchen/Family Room Combo

    • Open Floorplan

    • Primary Bedroom Main Floor

    • Solid Wood Cabinets

    • Split Bedroom

    • Stone Counters

    • Thermostat

    • Walk-In Closet(s)

    • Window Treatments

    Bedrooms and bathrooms

    • Bedrooms: 4

    • Bathrooms: 1

    • Full bathrooms: 2

  • Parking

    • Driveway

    • Garage Door Opener

    Property

    • Levels: One

    • Pool Private: Yes

    • Exterior Features: Irrigation System / Lighting / Outdoor Kitchen / Rain Gutters

    Lot

    • Lot: 0.23 Acres

    Other Property Information

    • Parcel Number: 253115841680080140

  • Type and style

    • Property Type: Residential

    • Property Sub Type: Single Family Residence

  • Utility

    • BB/HS Internet Available

    • Electricity Connected

    • Natural Gas Available

    • Public

    • Sprinkler Recycled

    • Street Lights

    • Underground Utilities

    • Water Connected

  • Other financial information

    • Annual tax amount: $5,277

  • Source details

    • MLS ID: TB8457963

    Other facts

    • Construction Materials: Block

    • Foundation Details: Slab

    • Fireplace Features: Living Room / Wood Burning

    • Laundry Features: Inside / Laundry Room

    • Lot Features: Cul-De-Sac / FloodZone / City Lot / Landscaped

    • Patio And Porch Features: Covered / Front Porch / Patio / Rear Porch / Screened

    • Pool Features: Deck / Gunite / In Ground / Lighting

    • Window Features: Window Treatments

    • Direction Faces: East

    • Other Structures: Outdoor Kitchen / Shed(s)

    • Fireplace: Yes

    • Garage Spaces: 2

    • Attached Garage: Yes

    • Garage: Yes

    • Living Area: 2613

    • Water Source: Public

    • Subdivision Name: SOUTH CSWY ISLE YACHT CLUB 5TH ADD

Similar Homes

7033 HIBISCUS AVENUE S placeholder 7033 HIBISCUS AVENUE S
New
For Sale
House
$699,999
4 bds 2 ba 1,864 sqft
7033 HIBISCUS AVENUE S
6855 GULF WINDS DRIVE placeholder 6855 GULF WINDS DRIVE
2 days
For Sale
Multi-family
$1,050,000
5 bds 2,012 sqft
6855 GULF WINDS DRIVE
4950 GULF BOULEVARD UNIT 207 placeholder 4950 GULF BOULEVARD UNIT 207
3 days
For Sale
Condo/Co-op
$900,000
2 bds 2 ba 1,340 sqft
4950 GULF BOULEVARD UNIT 207
7564 BAYSHORE DRIVE UNIT 202 placeholder 7564 BAYSHORE DRIVE UNIT 202
3 days
For Sale
Condo/Co-op
$829,000
2 bds 2 ba 1,140 sqft
7564 BAYSHORE DRIVE UNIT 202
1220 ROYAL PALM DRIVE S placeholder 1220 ROYAL PALM DRIVE S
7 days
For Sale
House
$1,150,000
5 bds 4 ba 3,392 sqft
1220 ROYAL PALM DRIVE S
13500 GULF BOULEVARD UNIT 702 placeholder 13500 GULF BOULEVARD UNIT 702
9 days
For Sale
Condo/Co-op
$1,195,000
2 bds 2 ba 1,200 sqft
13500 GULF BOULEVARD UNIT 702
12274 1ST STREET W UNIT 2 placeholder 12274 1ST STREET W UNIT 2
10 days
For Sale
Townhouse
$1,215,000
2 bds 2 ba 1,510 sqft
12274 1ST STREET W UNIT 2
1135 81ST STREET S placeholder 1135 81ST STREET S
11 days
For Sale
Lots/Land
$1,275,000
0 room(s)
1135 81ST STREET S

The multiple listing information is provided by the Stellar MLS from a copyrighted compilation of listings. The compilation of listings and each individual listing are ©2025-present Stellar MLS. All Rights Reserved. The information provided is for consumers' personal, noncommercial use and may not be used for any purpose other than to identify prospective properties consumers may be interested in purchasing. All properties are subject to prior sale or withdrawal. All information provided is deemed reliable but is not guaranteed accurate, and should be independently verified. Listing courtesy of: COLDWELL BANKER REALTY