Contact
Tell us about your needs

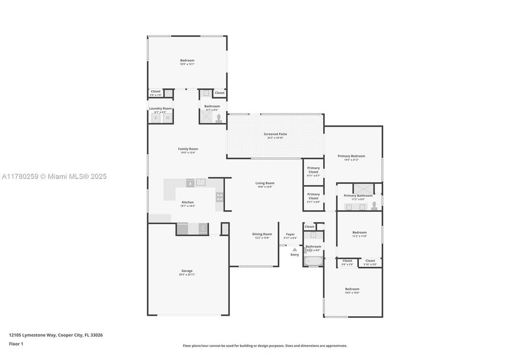
12105 Lymestone Way, Cooper City FL 33026

House Recently Sold
$880,000

BTC: 9.26315789

ETH: 283.87096774

Sold on: 2025-05-28
11 days
4 bds
3 ba
2,603 sqft
Est. Estimated sales range: $0 - $0
$0

Overview

This lovely 4-bed, 3-bath pool home is located on a 1/3 acre lot in a quiet cul-de-sac in the desirable Rock Creek community. The ROOF WAS REPLACED IN MARCH 2025, and the home has IMPACT WINDOWS throughout except three windows which have panels. Inside, the updated kitchen features wood shaker cabinets, granite countertops with seating and an open layout that flows into the family room. The primary bedroom offers 2 walk-in closets & a remodeled, modern bathroom. The backyard is an entertainer's paradise with an enclosed patio, large pool, lighting, shower and privacy provided by a greenbelt area behind the property. The addition of the fourth bedroom (21x13) and bathroom offers the perfect opportunity to create a private mother-in-law suite or split the room into 2 bedrooms with ease.

Location

Facts and features

Type:
Residential
Parking:
Driveway
Year Built:
1980
Lot:
13238 Square Feet
Heating:
Central
Price/sqft:
$352
Cooling:
Ceiling Fan(s) / Central Air
HOA:
$200
All facts and features
  • Flooring

    • Ceramic Floor

    • Vinyl

    • Wood

    Heating

    • Central

    Cooling

    • Ceiling Fan(s)

    • Central Air

    Appliances

    • Dishwasher

    • Dryer

    • Microwave

    • Electric Range

    • Refrigerator

    • Wall Oven

    Other interior features

    • First Floor Entry

    • Built-in Features

    • Utility Room/Laundry

    Bedrooms and bathrooms

    • Bedrooms: 4

    • Full bathrooms: 3

  • Parking

    • Driveway

    Property

    • Exterior Features: Lighting / Outdoor Shower

    Lot

    • Lot: 13238 Square Feet

    Other Property Information

    • Parcel Number: 514001020520

    • Zoning: PUD

  • Type and style

    • Property Type: Residential

    • Property Sub Type: Single Family Residence

  • Other financial information

    • HOA: $200

    • HOA Frequency: Quarterly

    • Annual tax amount: $4,553

  • Source details

    • MLS ID: A11780259

    Other facts

    • Construction Materials: CBS Construction

    • Laundry Features: Utility Room/Laundry

    • Lot Features: 1/4 To Less Than 1/2 Acre Lot

    • Patio And Porch Features: Deck / Screened Porch

    • Pool Features: In Ground

    • Window Features: Clear Impact Glass / Blinds / Drapes / High Impact Windows

    • Direction Faces: Southwest

    • Architectural Style: Detached / One Story

    • Garage Spaces: 2

    • Garage: Yes

    • Living Area: 2603

    • Water Source: Municipal Water

    • Subdivision Name: STONEBRIDGE PHASE 1

Similar Homes

10611 18 Place, Pembroke Pines, FL 33026 placeholder 10611 18 Place, Pembroke Pines, FL 33026
New
Recently Sold
House
$0
3 bds 2 ba 1,606 sqft
10611 18 Place, Pembroke Pines, FL 33026
11272 ROUNDELAY ROAD placeholder 11272 ROUNDELAY ROAD
New
Recently Sold
House
$719,000
4 bds 2 ba 1,994 sqft
11272 ROUNDELAY ROAD
1829 NW 126th Ave, Pembroke Pines FL 33028 placeholder 1829 NW 126th Ave, Pembroke Pines FL 33028
New
Recently Sold
House
$765,000
5 bds 3 ba 2,924 sqft
1829 NW 126th Ave, Pembroke Pines FL 33028
5141 SW 109th Ave, Davie FL 33328 placeholder 5141 SW 109th Ave, Davie FL 33328
New
Recently Sold
House
$838,000
6 bds 3 ba 5,719 sqft
5141 SW 109th Ave, Davie FL 33328
13174 Spring Lake Dr, Cooper City FL 33330 placeholder 13174 Spring Lake Dr, Cooper City FL 33330
New
Recently Sold
House
$925,000
4 bds 2 ba 2,691 sqft
13174 Spring Lake Dr, Cooper City FL 33330
9335 Old Orchard Rd, Davie FL 33328 placeholder 9335 Old Orchard Rd, Davie FL 33328
New
Recently Sold
House
$715,000
4 bds 3 ba 2,715 sqft
9335 Old Orchard Rd, Davie FL 33328
13796 NW 19th St, Pembroke Pines FL 33028 placeholder 13796 NW 19th St, Pembroke Pines FL 33028
New
Recently Sold
House
$840,000
5 bds 4 ba 3,966 sqft
13796 NW 19th St, Pembroke Pines FL 33028
721 NW 98th Ave, Pembroke Pines FL 33024 placeholder 721 NW 98th Ave, Pembroke Pines FL 33024
New
Recently Sold
House
$650,000
4 bds 2 ba 1,857 sqft
721 NW 98th Ave, Pembroke Pines FL 33024

The multiple listing information is provided by the Miami Association of REALTORS® from a copyrighted compilation of listings. The compilation of listings and each individual listing are ©2026-present Miami Association of REALTORS®. All Rights Reserved. The information provided is for consumers' personal, noncommercial use and may not be used for any purpose other than to identify prospective properties consumers may be interested in purchasing. All properties are subject to prior sale or withdrawal. All information provided is deemed reliable but is not guaranteed accurate, and should be independently verified. Listing courtesy of: Charles Rutenberg Realty Fort