Contact
Tell us about your needs

126 LAKE REGION CIRCLE

House For Sale
$400,000

BTC: 13.33333333

ETH: 200.00000000

50 days
4 bds
2 ba
2,142 sqft
Est. Estimated sales range: $0 - $0
$0

Overview

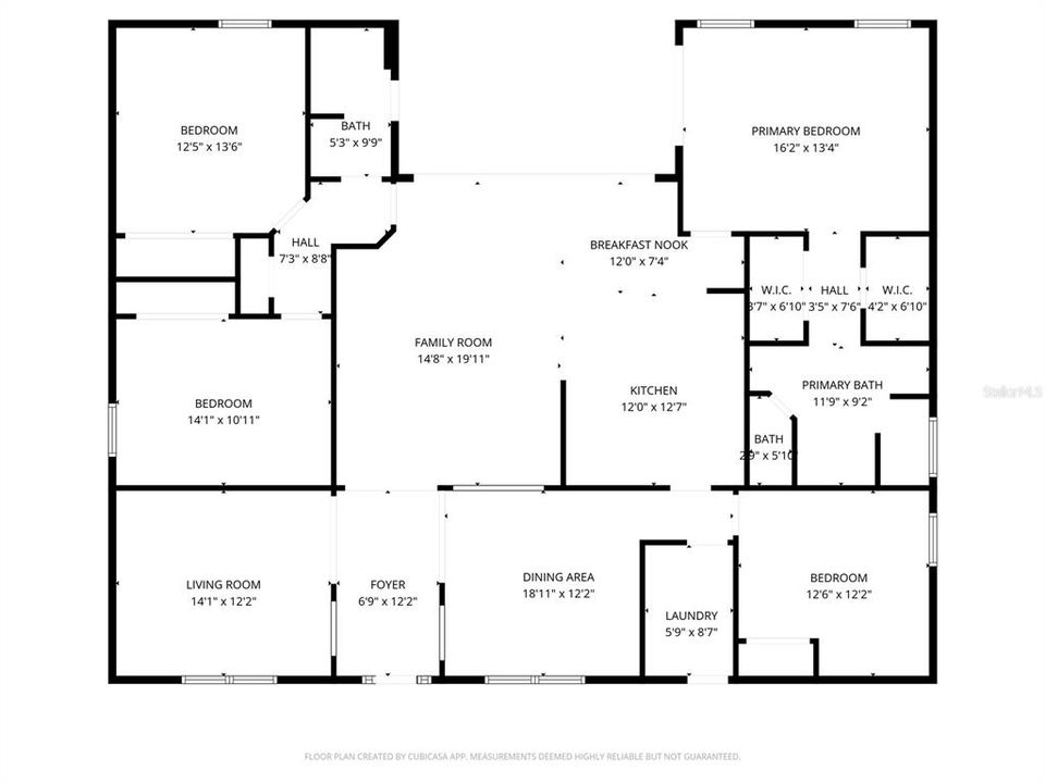
Enjoy the peaceful surroundings and relaxing environment from this 2142 SF executive style home located in The Gates of Lake Region, a well maintained and GATED community close to the Winter Haven Country Club! NEED SPACE? This customized 4BR/2BA home was designed with an open floor plan with split bedrooms, formal dining room and living room ( which could be easily used as a study, library and/or den), family room and interior laundry room. Note the Curb appeal of the landscaping, tile roof and brick paver driveway and walkway! The inviting and covered front porch provides respite from inclement weather. As you enter the entry foyer, the living room will be to the immediate left and the dining room to the right. Straight ahead is the family room with a set of sliding glass doors that opens onto the screened in lanai. Settle back, listen to the birds singing and observe the cows on the adjacent ranch property! To the left of the family are two bedrooms #2 and #3 and to the right is the kitchen, dining nook, primary bedroom suite, bedroom #4 and the laundry room! The well planned kitchen has a breakfast bar, white cabinetry with neutral colored solid countertop and stainless steel appliances. The kitchen appliances have been updated from 2018-2025. The spacious primary suite has sliding glass doors leading to the lanai, two walk-in closets and an ensuite bathroom with dual vanities and sinks, jetted tub, separate shower and a water closet! Bedroom #4 is currently used as a home office. The floor plan allows creativity in use. Most recent updates include: AC/Heat system April 2025; garbage disposal and microwave 2025; and lanai screen & door 2025. The perimeter 90 X 120 lot is a generous in size. There is room to add a pool, outdoor kitchen, play area and/or garden! The HOA fee provides re-use irrigation water and maintenance of the gate and common areas. Perfect for a year round or winter residence, this home is a blank canvas just waiting for YOUR decorating touches! For those who enjoy golf and/or tennis, the Country Club of Winter Haven is just 2 Blocks away! Publix Supermarket and additional stores are currently under construction and are located within 0.8 mile! Easy access to downtown Winter Haven, HWY 27 and I-4. Legoland, Bok Tower, world-famous theme parks of Disney, Universal Orlando, Sea World, water adventure parks, downtown Orlando and various other nature parks are within a 7 to 60 mile drive. Be sure to make your appointment to view this outstanding property! Measurements are approximate. All information is believed to be accurate but not guaranteed.

Location

Facts and features

Type:
Residential
Parking:
Driveway / Garage Door Opener
Year Built:
2003
Lot:
0.26 Acres
Heating:
Central / Heat Pump
Price/sqft:
$187
Cooling:
Central Air
HOA:
$95
All facts and features
  • Flooring

    • Carpet

    • Tile

    Heating

    • Central

    • Heat Pump

    Cooling

    • Central Air

    Appliances

    • Dishwasher

    • Disposal

    • Dryer

    • Electric Water Heater

    • Microwave

    • Range

    • Refrigerator

    • Washer

    Other interior features

    • Ceiling Fan(s)

    • Open Floorplan

    • Split Bedroom

    • Walk-In Closet(s)

    Bedrooms and bathrooms

    • Bedrooms: 4

    • Full bathrooms: 2

  • Parking

    • Driveway

    • Garage Door Opener

    Property

    • Levels: One

    • Exterior Features: Irrigation System / Private Mailbox / Sliding Doors

    Lot

    • Lot: 0.26 Acres

    Other Property Information

    • Parcel Number: 262824588502000140

    • Zoning: SFR

  • Type and style

    • Property Type: Residential

    • Property Sub Type: Single Family Residence

  • Utility

    • BB/HS Internet Available

    • Cable Connected

    • Electricity Connected

    • Natural Gas Available

    • Public

    • Sewer Connected

    • Street Lights

    • Underground Utilities

    • Water Connected

  • Other financial information

    • HOA: $95

    • HOA Frequency: Monthly

    • Annual tax amount: $3,169

  • Source details

    • MLS ID: P4936583

    Other facts

    • Construction Materials: Block / Stucco

    • Foundation Details: Slab

    • Laundry Features: Inside / Laundry Room

    • Lot Features: City Lot / Landscaped

    • Patio And Porch Features: Covered / Front Porch / Rear Porch / Screened

    • Direction Faces: East

    • Architectural Style: Florida

    • Garage Spaces: 2

    • Attached Garage: Yes

    • Garage: Yes

    • Living Area: 2142

    • Water Source: Public

    • Lot Size Dimensions: 90 x 120

    • Subdivision Name: GATES OF LAKE REGION

Similar Homes

3029 COUNTRY CLUB CIRCLE placeholder 3029 COUNTRY CLUB CIRCLE
New
For Sale
House
$319,990
4 bds 2 ba 1,828 sqft
3029 COUNTRY CLUB CIRCLE
271 INMAN BOULEVARD placeholder 271 INMAN BOULEVARD
New
For Sale
House
$350,000
5 bds 2 ba 2,274 sqft
271 INMAN BOULEVARD
2512 SHERWOOD STREET placeholder 2512 SHERWOOD STREET
New
For Sale
House
$479,900
4 bds 3 ba 2,697 sqft
2512 SHERWOOD STREET
340 GREENFIELD ROAD placeholder 340 GREENFIELD ROAD
1 days
For Sale
House
$415,000
4 bds 2 ba 2,460 sqft
340 GREENFIELD ROAD
108 LAKE REGION BOULEVARD N placeholder 108 LAKE REGION BOULEVARD N
2 days
For Sale
House
$449,000
4 bds 2 ba 2,495 sqft
108 LAKE REGION BOULEVARD N
312 TOWHEE ROAD placeholder 312 TOWHEE ROAD
2 days
For Sale
House
$375,000
3 bds 2 ba 2,020 sqft
312 TOWHEE ROAD
1516 AVENUE D NE placeholder 1516 AVENUE D NE
2 days
For Sale
House
$290,000
3 bds 2 ba 1,089 sqft
1516 AVENUE D NE
130 AUDUBON ROAD placeholder 130 AUDUBON ROAD
4 days
For Sale
House
$347,900
4 bds 2 ba 2,503 sqft
130 AUDUBON ROAD

The multiple listing information is provided by the Stellar MLS from a copyrighted compilation of listings. The compilation of listings and each individual listing are ©2025-present Stellar MLS. All Rights Reserved. The information provided is for consumers' personal, noncommercial use and may not be used for any purpose other than to identify prospective properties consumers may be interested in purchasing. All properties are subject to prior sale or withdrawal. All information provided is deemed reliable but is not guaranteed accurate, and should be independently verified. Listing courtesy of: JUDY B CLEAVES PROPERTIES INC