Contact
Tell us about your needs

12710 HYSMITH LOOP

House For Sale
$589,900

BTC: 19.66333333

ETH: 294.95000000

14 days
7 bds
3 ba
3,818 sqft
Est. Estimated sales range: $0 - $0
$0

Overview

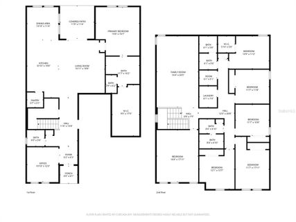
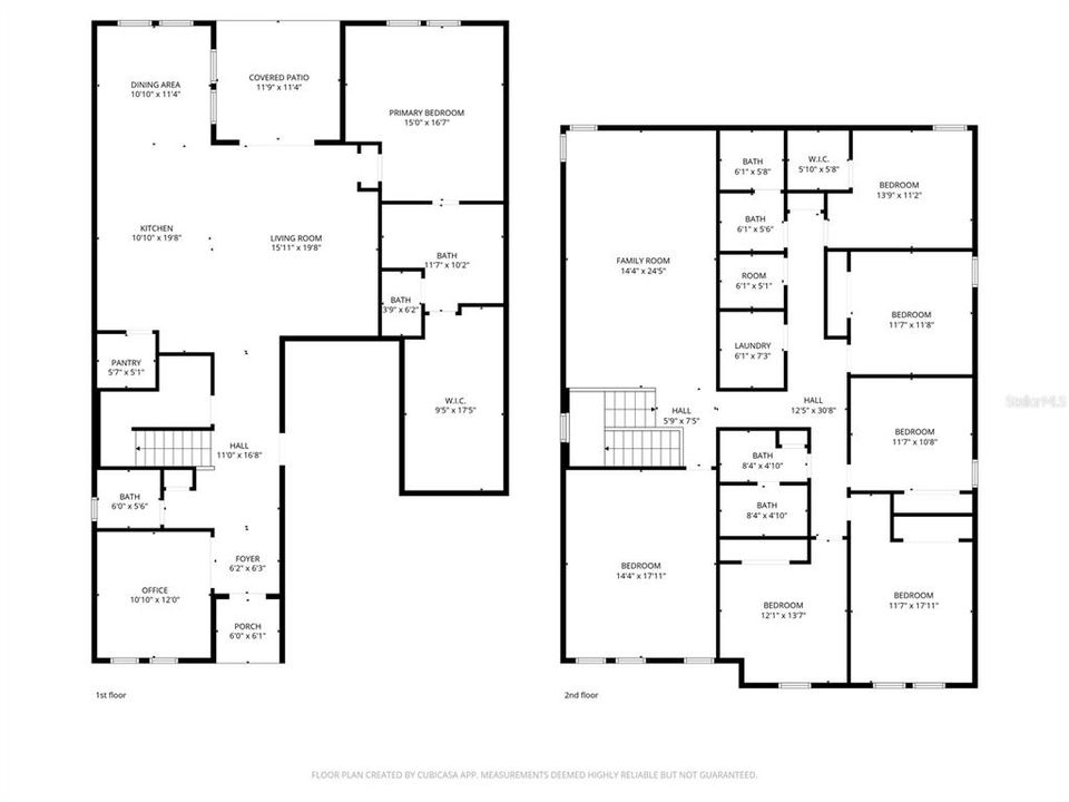
LOW HOA….....…7 LARGE BEDROOMS AND A DEN UNDER 600K…….......ON THE WATER….....….NEW BUILD ONE OWNER…..….NATURAL GAS……....HIGH CEILINGS…....….3 CAR GARAGE….....….94% LEFT ON THEIR ASSUMABLE LOAN…....…YES, YOUR BUYER CAN AFFORD TO ASSUME THE LOWER INTEREST RATE……………. From the moment you walk through the door, this home feels like the place where big family memories are meant to unfold. Sunlight fills nearly 4,000 sq ft of space as the great room opens to scenic water views, setting the scene for slow mornings, holiday gatherings, and evenings where the pond catches the last glow of the day. The primary suite, also overlooking the water, offers a quiet retreat for recharging and reconnecting. The kitchen becomes the true heart of the home, beautifully designed with a large walk-in pantry, quartz counters, stainless appliances, and the rare benefit of being plumbed for natural gas while still offering the option for electric cooking—giving every type of home chef the freedom to create. Thoughtful upgrades like built-in Cat 6 wiring, a naturally elevated yard that has never taken on water, and strong 2024 construction make life smooth and secure. And with 94% remaining on an assumable loan, you step into comfort and financial opportunity that most buyers can only hope for. Upstairs, the home expands into a place where laughter, creativity, and family life can flourish. Six well-sized bedrooms offer every family member a space to grow, dream, and make their own. The loft transforms into a movie-night haven, a game room, or a second living area—while the first-floor den offers privacy for work, fitness, or quiet time. Outside, the fully fenced yard becomes a playground for kids, a paradise for the dog, and the backdrop for summer barbecues and weekend memories. Set in a quiet, family-friendly neighborhood with a warm countryside feel, this home gives you peace without losing convenience—close to Lakewood Ranch, Bradenton, Sarasota, and Tampa. This is more than just a large home; it’s a place built for a big family, a loyal dog, and a life filled with moments you’ll remember forever.

Location

Facts and features

Type:
Residential
Parking:
Guest / Open
Year Built:
2024
Lot:
0.20 Acres
Heating:
Central
Price/sqft:
$155
Cooling:
Central Air
HOA:
$180
All facts and features
  • Flooring

    • Carpet

    • Luxury Vinyl

    Heating

    • Central

    Cooling

    • Central Air

    Appliances

    • Dishwasher

    • Dryer

    • Microwave

    • Range

    • Refrigerator

    • Washer

    Other interior features

    • High Ceilings

    • Open Floorplan

    • Primary Bedroom Main Floor

    • Solid Surface Counters

    • Stone Counters

    • Walk-In Closet(s)

    Bedrooms and bathrooms

    • Bedrooms: 7

    • Bathrooms: 1

    • Full bathrooms: 3

  • Parking

    • Guest

    • Open

    Property

    • Levels: Two

    • Exterior Features: Hurricane Shutters / Sliding Doors

    Lot

    • Lot: 0.20 Acres

    Other Property Information

    • Parcel Number: 426116209

    • Zoning: RESI

  • Type and style

    • Property Type: Residential

    • Property Sub Type: Single Family Residence

  • Utility

    • Cable Available

    • Electricity Available

    • Public

  • Other financial information

    • HOA: $180

    • HOA Frequency: Annually

    • Annual tax amount: $3,616

  • Source details

    • MLS ID: N6141492

    Other facts

    • Construction Materials: Block / Stucco

    • Foundation Details: Slab

    • Laundry Features: Inside / Laundry Room / Upper Level

    • Direction Faces: West

    • Garage Spaces: 3

    • Attached Garage: Yes

    • Garage: Yes

    • Living Area: 3818

    • Water Source: Public

    • Subdivision Name: CROSSWIND POINT PH II

Similar Homes

10227 LONGMEADOW AVENUE placeholder 10227 LONGMEADOW AVENUE
New
For Sale
House
$749,990
4 bds 3 ba 2,562 sqft
10227 LONGMEADOW AVENUE
11616 LITTLE RIVER WAY placeholder 11616 LITTLE RIVER WAY
4 days
For Sale
House
$479,000
5 bds 3 ba 2,600 sqft
11616 LITTLE RIVER WAY
11507 GALLATIN TRAIL placeholder 11507 GALLATIN TRAIL
6 days
For Sale
House
$499,000
3 bds 2 ba 2,391 sqft
11507 GALLATIN TRAIL
11743 FULL MOON LOOP placeholder 11743 FULL MOON LOOP
7 days
For Sale
House
$524,990
4 bds 3 ba 2,255 sqft
11743 FULL MOON LOOP
11718 FULL MOON LOOP placeholder 11718 FULL MOON LOOP
8 days
For Sale
House
$414,990
3 bds 2 ba 2,145 sqft
11718 FULL MOON LOOP
10705 WADING RIVER AVENUE placeholder 10705 WADING RIVER AVENUE
8 days
For Sale
House
$469,000
3 bds 2 ba 2,104 sqft
10705 WADING RIVER AVENUE
10823 MANAWA TERRACE placeholder 10823 MANAWA TERRACE
+$1K (2025/12/03)
For Sale
House
$475,990
4 bds 3 ba 3,313 sqft
10823 MANAWA TERRACE
12031 MOUNTAIN ISLAND TRAIL placeholder 12031 MOUNTAIN ISLAND TRAIL
10 days
For Sale
House
$420,990
5 bds 3 ba 2,605 sqft
12031 MOUNTAIN ISLAND TRAIL

The multiple listing information is provided by the Stellar MLS from a copyrighted compilation of listings. The compilation of listings and each individual listing are ©2025-present Stellar MLS. All Rights Reserved. The information provided is for consumers' personal, noncommercial use and may not be used for any purpose other than to identify prospective properties consumers may be interested in purchasing. All properties are subject to prior sale or withdrawal. All information provided is deemed reliable but is not guaranteed accurate, and should be independently verified. Listing courtesy of: KELLER WILLIAMS ON THE WATER S