Contact
Tell us about your needs

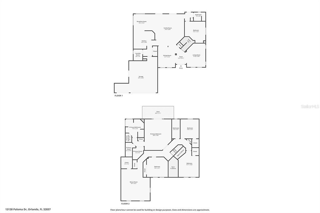
13138 PALOMA DRIVE

House For Sale
$619,900

BTC: 7.17892299

ETH: 211.85919344

-$30K (2025/12/04)
71 days
4 bds
3 ba
3,567 sqft
Est. Estimated sales range: $0 - $0
$0

Overview

One or more photo(s) has been virtually staged. Auction Property. Welcome! This spacious pool home resides in the heart of Hunter’s Creek, minutes from modern conveniences, and ready for life’s everchanging needs. Boasting 3,567 square feet of versatile living space, with four bedrooms, three full bathrooms, and two bonus rooms that can easily be converted into additional bedrooms, there is no shortage of space to relax. Its expansive footprint allows for generously sized bedrooms, providing everyone with a charming retreat, especially the primary suite, which features a private balcony only accessible from the main bedroom, perfect for unwinding each day. The covered patio and in-ground pool serve as the centerpieces for outdoor entertainment and relaxation, perfect for cooling off during warm days or hosting gatherings with friends and family. Its location provides exceptional convenience with minutes to schools, medical facilities, and primary services covering all of your primary needs, while quick access to Publix and bustling shopping plazas places groceries and modern conveniences at your fingertips. Inside the community, multiple parks, walking trails, and recreation activities are present for residents to regularly enjoy. Additionally, easy highway access ensures effortless commuting and weekend adventures, making this property ideally situated for both daily convenience and active lifestyles. Don't let this wonderful opportunity slip away - schedule your tour today and experience everything this home has to offer firsthand.

Location

Facts and features

Type:
Residential
Parking:
Driveway
Year Built:
2003
Lot:
0.22 Acres
Heating:
Central / Electric
Price/sqft:
$174
Cooling:
Central Air
HOA:
$36
All facts and features
  • Flooring

    • Laminate

    • Tile

    Heating

    • Central

    • Electric

    Cooling

    • Central Air

    Appliances

    • None

    Other interior features

    • Built-in Features

    • Ceiling Fan(s)

    • Kitchen/Family Room Combo

    • PrimaryBedroom Upstairs

    • Stone Counters

    • Thermostat

    • Walk-In Closet(s)

    Bedrooms and bathrooms

    • Bedrooms: 4

    • Full bathrooms: 3

  • Parking

    • Driveway

    Property

    • Levels: Two

    • Pool Private: Yes

    • Exterior Features: Balcony / French Doors / Rain Gutters / Sidewalk

    Lot

    • Lot: 0.22 Acres

    Other Property Information

    • Parcel Number: 302429386102060

    • Zoning: P-D

  • Type and style

    • Property Type: Residential

    • Property Sub Type: Single Family Residence

  • Utility

    • BB/HS Internet Available

    • Cable Available

    • Electricity Connected

    • Water Connected

  • Other financial information

    • HOA: $36

    • HOA Frequency: Monthly

    • Annual tax amount: $5,203

  • Source details

    • MLS ID: O6352202

    Other facts

    • Construction Materials: Block / Stucco

    • Foundation Details: Slab

    • Laundry Features: Electric Dryer Hookup / Inside / Laundry Room / Washer Hookup

    • Lot Features: Sidewalk

    • Patio And Porch Features: Covered / Front Porch / Rear Porch

    • Pool Features: Deck / In Ground

    • Direction Faces: East

    • Garage Spaces: 3

    • Attached Garage: Yes

    • Garage: Yes

    • Living Area: 3567

    • Water Source: Public

    • Subdivision Name: HUNTERS CREEK TR 515 PH 02 48 96

Similar Homes

5361 TORTUGA DRIVE placeholder 5361 TORTUGA DRIVE
3 days
For Sale
House
$624,900
4 bds 3 ba 2,611 sqft
5361 TORTUGA DRIVE
3052 GATSBY STREET placeholder 3052 GATSBY STREET
4 days
For Sale
Townhouse
$550,000
4 bds 3 ba 1,914 sqft
3052 GATSBY STREET
5008 OLDE KERRY DRIVE placeholder 5008 OLDE KERRY DRIVE
5 days
For Sale
House
$449,000
4 bds 2 ba 1,952 sqft
5008 OLDE KERRY DRIVE
2921 SIMILE STREET placeholder 2921 SIMILE STREET
8 days
For Sale
Townhouse
$469,000
4 bds 3 ba 1,914 sqft
2921 SIMILE STREET
4802 LOVE STOREY LANE placeholder 4802 LOVE STOREY LANE
12 days
For Sale
Townhouse
$498,000
4 bds 3 ba 1,914 sqft
4802 LOVE STOREY LANE
2737 BOOKMARK DRIVE placeholder 2737 BOOKMARK DRIVE
12 days
For Sale
House
$765,000
6 bds 5 ba 3,343 sqft
2737 BOOKMARK DRIVE
4661 EGG HARBOR DRIVE placeholder 4661 EGG HARBOR DRIVE
12 days
For Sale
House
$550,000
4 bds 2 ba 2,346 sqft
4661 EGG HARBOR DRIVE
4828 DEDICATION STREET placeholder 4828 DEDICATION STREET
13 days
For Sale
Townhouse
$540,000
5 bds 4 ba 2,168 sqft
4828 DEDICATION STREET

The multiple listing information is provided by the Stellar MLS from a copyrighted compilation of listings. The compilation of listings and each individual listing are ©2025-present Stellar MLS. All Rights Reserved. The information provided is for consumers' personal, noncommercial use and may not be used for any purpose other than to identify prospective properties consumers may be interested in purchasing. All properties are subject to prior sale or withdrawal. All information provided is deemed reliable but is not guaranteed accurate, and should be independently verified. Listing courtesy of: BERKSHIRE HATHAWAY HOMESERVICES RESULTS REALTY