Contact
Tell us about your needs

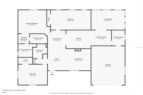
13781 SW 112TH TERRACE

House For Sale
$270,000

BTC: 3.12680950

ETH: 92.27614491

44 days
3 bds
2 ba
2,016 sqft
Est. Estimated sales range: $0 - $0
$0

Overview

Immaculate Home in a Desirable 55+ Gated Community! Welcome to 13781 SW 112th Terrace in beautiful Dunnellon—a spacious, impeccably maintained 3-bedroom, 2-bath home offering comfort, style, and an exceptional lifestyle. Step inside to large, light-filled rooms and an expansive open kitchen updated in 2024 with modern finishes and stainless steel appliances. The home’s thoughtful layout is designed for both relaxation and entertaining, creating a warm and inviting atmosphere throughout. This property has been meticulously cared for, with numerous upgrades including a new roof in 2025, a water heater replaced in November 2025, double-pane windows installed in 2019, updated window screens in November 2025, interior paint in 2021, and a master bathroom remodel completed in 2024. Additional features include a water softener system, a garage door rated for 150-mph winds installed in 2020, a garage floor refinished in 2022, a garage screen added in 2023, and dryer vents serviced in October 2025. Located within a vibrant 55+ gated community, residents enjoy resort-style amenities such as a clubhouse, pool, tennis courts, and more—offering the perfect blend of comfort, convenience, and leisure. Experience the best of Florida living in this beautifully updated and move-in-ready retreat.

Location

Facts and features

Type:
Residential
Parking:
No Data
Year Built:
1997
Lot:
0.18 Acres
Heating:
Heat Pump
Price/sqft:
$134
Cooling:
Central Air
HOA:
$194
All facts and features
  • Flooring

    • Carpet

    • Tile

    Heating

    • Heat Pump

    Cooling

    • Central Air

    Appliances

    • Dishwasher

    • Dryer

    • Microwave

    • Range

    • Refrigerator

    • Washer

    • Water Softener

    Other interior features

    • Ceiling Fan(s)

    • Open Floorplan

    • Primary Bedroom Main Floor

    • Walk-In Closet(s)

    Bedrooms and bathrooms

    • Bedrooms: 3

    • Full bathrooms: 2

  • Property

    • Levels: One

    • Exterior Features: Lighting / Private Mailbox

    Lot

    • Lot: 0.18 Acres

    Other Property Information

    • Parcel Number: 4076246000

    • Zoning: PUD

  • Type and style

    • Property Type: Residential

    • Property Sub Type: Single Family Residence

  • Utility

    • Cable Available

    • Electricity Available

    • Phone Available

    • Sewer Available

    • Water Available

  • Other financial information

    • HOA: $194

    • HOA Frequency: Monthly

    • Annual tax amount: $1,406

  • Source details

    • MLS ID: TB8447483

    Other facts

    • Construction Materials: Vinyl Siding

    • Foundation Details: Slab

    • Laundry Features: Laundry Room

    • Direction Faces: East

    • Garage Spaces: 2

    • Attached Garage: Yes

    • Garage: Yes

    • Living Area: 2016

    • Water Source: Public

    • Lot Size Dimensions: 85 x 90

    • Subdivision Name: SPRUCE CRK PRESERVE 03

Similar Homes

15277 SW 105TH AVENUE placeholder 15277 SW 105TH AVENUE
10 days
For Sale
$230,000
3 bds 2 ba 1,216 sqft
15277 SW 105TH AVENUE
9151 SW 157TH LANE placeholder 9151 SW 157TH LANE
16 days
For Sale
House
$340,000
5 bds 4 ba 3,318 sqft
9151 SW 157TH LANE
11655 SW 140TH LANE placeholder 11655 SW 140TH LANE
17 days
For Sale
House
$249,900
2 bds 2 ba 1,866 sqft
11655 SW 140TH LANE
14652 SW 112TH CIRCLE placeholder 14652 SW 112TH CIRCLE
17 days
For Sale
House
$225,000
2 bds 2 ba 2,026 sqft
14652 SW 112TH CIRCLE
14117 SW 115TH CIRCLE placeholder 14117 SW 115TH CIRCLE
18 days
For Sale
House
$199,900
2 bds 2 ba 1,296 sqft
14117 SW 115TH CIRCLE
11263 SW 138TH LANE placeholder 11263 SW 138TH LANE
20 days
For Sale
House
$275,000
2 bds 2 ba 1,664 sqft
11263 SW 138TH LANE
13798 SW 111TH AVENUE placeholder 13798 SW 111TH AVENUE
28 days
For Sale
House
$245,000
2 bds 2 ba 1,866 sqft
13798 SW 111TH AVENUE
13620 SW 114TH LANE placeholder 13620 SW 114TH LANE
39 days
For Sale
House
$214,900
3 bds 2 ba 1,127 sqft
13620 SW 114TH LANE

The multiple listing information is provided by the Stellar MLS from a copyrighted compilation of listings. The compilation of listings and each individual listing are ©2025-present Stellar MLS. All Rights Reserved. The information provided is for consumers' personal, noncommercial use and may not be used for any purpose other than to identify prospective properties consumers may be interested in purchasing. All properties are subject to prior sale or withdrawal. All information provided is deemed reliable but is not guaranteed accurate, and should be independently verified. Listing courtesy of: LPT REALTY, LLC