Contact
Tell us about your needs

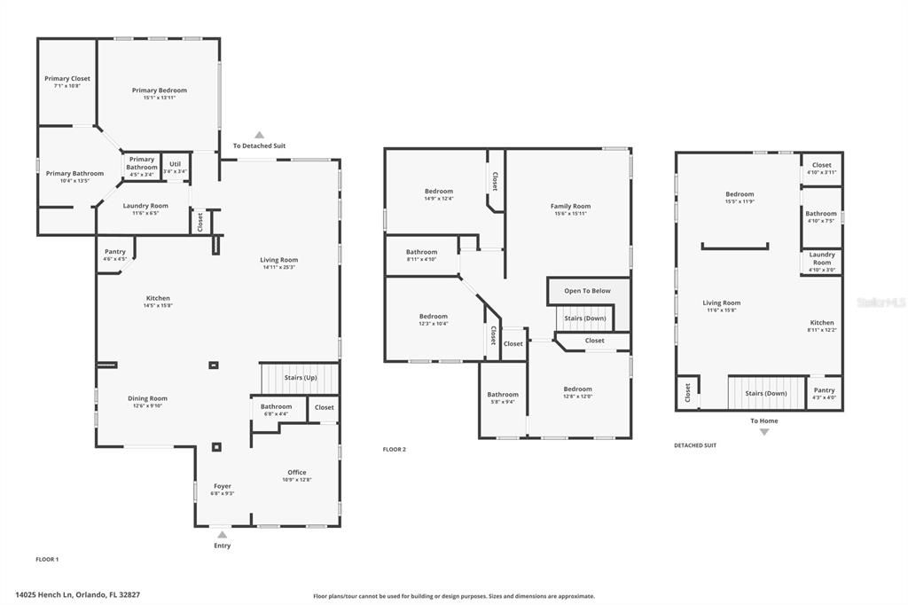
14025 HENCH LANE

House For Sale
$1,399,990

BTC: 16.21297047

ETH: 478.46548189

-$50K (2025/12/06)
240 days
5 bds
4 ba
3,802 sqft
Est. Estimated sales range: $0 - $0
$0

Overview

SELLER SAYS SELL! This home is a MUST See! You are walking distance to the highly sought after Laureate Park Elementary- No carpool lines!! This Reef model built by David Weekley offers a highly desired floor plan for the main house and a detached garage apartment. Situated on a Mew in Laureate Park, this home has a serene front view. Upon entry, you will adore the front wrap around side porch. As you enter the home you will appreciate the dedicated office space with detail trim work and a storage closet. Craftsman style built, this home features tall 12ft ceilings and stunning wood ceiling beamsThe kitchen, dining and family room are open concept and is excellent for entertaining and gathering. Your kitchen provides ample storage space, double stacked cabinets and a large center island. Gas cooktop, built in oven and microwave as well as a walk in pantry. The dining room features built in cabinetry for buffet storage and space that flows seamlessly from the kitchen. The family room is spacious and provides views out to your private pool. The primary suite is on the main floor and is large and your en-suite provides a very spacious and custom built out walk in closet. Noted is a large walk in shower with rain head shower and a dual sink vanity with great storage. The laundry room is on the main floor and offers more storage and a utility sink. Upstairs you will retreat to your secondary rooms which offer great natural light and space. The bonus loft area is ideal for a gym, extra office, play space or movie room. If you are looking for extra income, the garage apartment can be rented out of used for guest. This apartment is so spacious and features a kitchen, studio style bedroom and en-suite. This is one of the nicest apartments I have seen in Laureate Park! Your guest will enjoy private entry access as well! The swimming pool and spa are gorgeous! You have space for an outdoor chiminea or fireplace, great lounging space and the back yard is fully fenced in. 3 car garage is detached and has updated electrical which is great for a workshop space and also features EV charging outlet. The home has been well maintained and offers upgrades such as Plantation Shutters, Crown Molding and Engineered Wood Flooring. This home is walkable to the Laureate Park Elementary, convenient to the Nona Adventure Park and easy access to the dog park and community garden. HOA amenities include fitness center, aquatic center, basketball and tennis court, high speed internet is included as well! You can enjoy Boxi Park, Canvas and the small businesses in Laureate Park. Nemours Children's Hospital, UCF Medical School, The VA Hospital and the USTA is less than 5 minutes away. You will enjoy plenty of walking paths and bike trails. Easy access to the 417 and the 528, you are less than 20 minutes to MCO (Orlando International Airport). Nature lovers will enjoy being minutes to Moss State Park and plenty of lakes for fishing, kayaking and paddle boarding. Golfers will enjoy the choices of local and private courses in the immediate area. Downtown Orlando is approximately a 25 minute drive and if you like the Coast, that is about a 45 minute drive away! Watch the walk through video for an immersive tour of this home and call for your private showing!

Location

Facts and features

Type:
Residential
Parking:
Garage Door Opener / Garage Faces Rear
Year Built:
2014
Lot:
0.23 Acres
Heating:
Central / Electric / Propane
Price/sqft:
$368
Cooling:
Central Air
HOA:
$533
All facts and features
  • Flooring

    • Carpet

    • Engineered Hardwood

    • Tile

    Heating

    • Central

    • Electric

    • Propane

    Cooling

    • Central Air

    Appliances

    • Built-In Oven

    • Convection Oven

    • Cooktop

    • Dishwasher

    • Disposal

    • Electric Water Heater

    • Microwave

    • Refrigerator

    • Wine Refrigerator

    Other interior features

    • Ceiling Fan(s)

    • Crown Molding

    • Eating Space In Kitchen

    • In Wall Pest System

    • Kitchen/Family Room Combo

    • Open Floorplan

    • Primary Bedroom Main Floor

    • Solid Wood Cabinets

    • Stone Counters

    • Walk-In Closet(s)

    Bedrooms and bathrooms

    • Bedrooms: 5

    • Bathrooms: 1

    • Full bathrooms: 4

  • Parking

    • Garage Door Opener

    • Garage Faces Rear

    Property

    • Levels: Two

    • Pool Private: Yes

    • Exterior Features: Irrigation System / Lighting / Rain Gutters / Sidewalk

    Lot

    • Lot: 0.23 Acres

    Other Property Information

    • Parcel Number: 252430494501860

    • Zoning: PD/AN

  • Type and style

    • Property Type: Residential

    • Property Sub Type: Single Family Residence

  • Utility

    • BB/HS Internet Available

    • Cable Available

    • Electricity Connected

    • Propane

    • Street Lights

  • Other financial information

    • HOA: $533

    • HOA Frequency: Quarterly

    • Annual tax amount: $19,322

  • Source details

    • MLS ID: O6304467

    Other facts

    • Construction Materials: Block / HardiPlank Type / Stucco

    • Foundation Details: Slab

    • Laundry Features: Inside / Laundry Room

    • Lot Features: City Lot / Landscaped / Sidewalk

    • Patio And Porch Features: Covered / Front Porch / Porch / Rear Porch / Wrap Around

    • Pool Features: Fiber Optic Lighting / Gunite / In Ground / Lighting / Salt Water

    • Window Features: Shutters

    • Direction Faces: East

    • Other Structures: Guest House

    • Architectural Style: Craftsman / Traditional

    • Garage Spaces: 3

    • Garage: Yes

    • Living Area: 3802

    • Water Source: Public

    • Lot Size Dimensions: 70 x 151 x 66 x 113

    • Subdivision Name: LAUREATE PARK

Similar Homes

12077 ULETA LANE placeholder 12077 ULETA LANE
8 days
For Sale
House
$980,000
5 bds 4 ba 4,093 sqft
12077 ULETA LANE
4185 CARDINAL LANE placeholder 4185 CARDINAL LANE
8 days
For Sale
$1,200,000
2 bds 2 ba 1,188 sqft
4185 CARDINAL LANE
6713 NEW HOPE ROAD placeholder 6713 NEW HOPE ROAD
16 days
For Sale
House
$1,700,000
4 bds 3 ba 3,130 sqft
6713 NEW HOPE ROAD
7991 ESTA LANE placeholder 7991 ESTA LANE
21 days
For Sale
House
$995,000
4 bds 3 ba 3,454 sqft
7991 ESTA LANE
14978 FELLS LANE placeholder 14978 FELLS LANE
21 days
For Sale
House
$1,199,000
6 bds 4 ba 4,516 sqft
14978 FELLS LANE
13957 DESTIN BEACH LANE placeholder 13957 DESTIN BEACH LANE
21 days
For Sale
House
$1,150,000
3 bds 3 ba 2,743 sqft
13957 DESTIN BEACH LANE
13024 BOTTESFORD DRIVE placeholder 13024 BOTTESFORD DRIVE
22 days
For Sale
House
$1,370,000
5 bds 5 ba 4,158 sqft
13024 BOTTESFORD DRIVE
13131 ALDERLEY DRIVE placeholder 13131 ALDERLEY DRIVE
22 days
For Sale
House
$1,360,000
4 bds 4 ba 3,170 sqft
13131 ALDERLEY DRIVE

The multiple listing information is provided by the Stellar MLS from a copyrighted compilation of listings. The compilation of listings and each individual listing are ©2025-present Stellar MLS. All Rights Reserved. The information provided is for consumers' personal, noncommercial use and may not be used for any purpose other than to identify prospective properties consumers may be interested in purchasing. All properties are subject to prior sale or withdrawal. All information provided is deemed reliable but is not guaranteed accurate, and should be independently verified. Listing courtesy of: CORCORAN PREMIER REALTY