Contact
Tell us about your needs

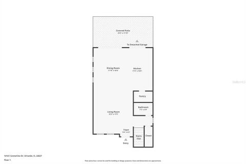
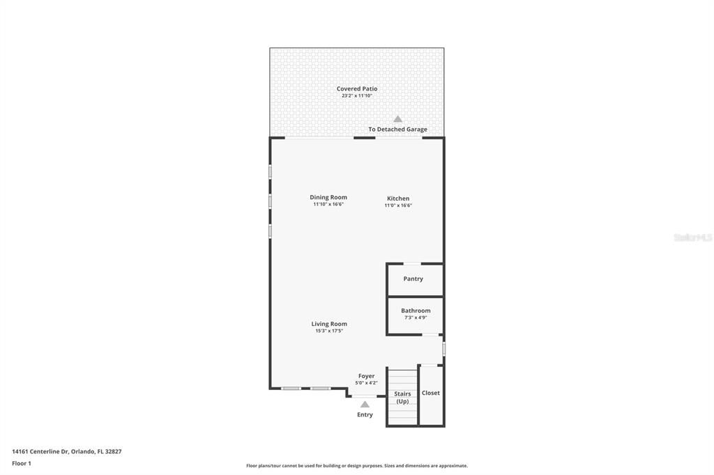
14161 CENTERLINE DRIVE

House For Sale
$699,000

BTC: 8.04835924

ETH: 349.50000000

New
4 bds
3 ba
2,367 sqft
Est. Estimated sales range: $0 - $0
$0

Overview

Thoughtfully upgraded Mason Floor Plan with Garage Apartment & Walkable Lake Nona Living! This beautifully designed Mason floor plan by Craft Builders offers exceptional flexibility, thoughtful upgrades, and a lifestyle-centered location in the heart of Laureate Park in Lake Nona. Featuring a private garage apartment and a light-filled, open layout, this home is ideal for modern living, multigenerational needs, or work-from-home flexibility. Designed for seamless indoor–outdoor living, the main home showcases upgraded expansive sliders leading to a covered, pavered lanai—perfect for entertaining or relaxing. French doors, abundant windows, and an open-concept design flood the home with natural sunlight throughout. Both the main home and garage apartment feature Bosch kitchen appliances and their own full-size washer and dryer, offering elevated comfort and true dual-living functionality. The fully fenced yard provides a private space for family and pets, and an installed walkway connects the main home to the garage apartment. Health, comfort, and efficiency were thoughtfully prioritized UV lights installed in the main home’s air conditioning system, a hybrid hot water heater, a circulating hot water pump for near-instant hot water and pre-wired for an EV charger. The primary suite offers a spa-like retreat with dual shower heads and an expansive walk-in closet, while the home is prewired for surround sound in the living room and features built-in speakers in the kitchen, loft, and patio. A fully wired security system with exterior camera wiring adds peace of mind. HOA perks add exceptional value, including high-speed internet and reclaimed water for irrigation. Living in Laureate Park also provides access to an unmatched lineup of resort-style amenities, including a state-of-the-art fitness center, an aquatic center with multiple pools, volleyball and basketball courts, playgrounds, parks, and over 40 miles of scenic walking, biking, and jogging trails. Enjoy a truly healthy and connected lifestyle with walking-distance access to the sports fields and community park, Lake Nona Adventure Park, the VA Hospital and Laureate Park Elementary, along with close proximity to Boxi Park, the USTA National Campus, Lake Nona Town Center, Medical City, shopping, and dining. Convenient access to SR-417, downtown Orlando, and Orlando International Airport, plus top-rated A-rated Lake Nona schools, makes this location as practical as it is desirable. Move-in ready and full of thoughtful enhancements, this home truly checks every box. Schedule your private tour today.

Location

Facts and features

Type:
Residential
Parking:
Alley Access
Year Built:
2020
Lot:
0.09 Acres
Heating:
Central
Price/sqft:
$295
Cooling:
Central Air
HOA:
$193
All facts and features
  • Flooring

    • Carpet

    • Laminate

    • Tile

    Heating

    • Central

    Cooling

    • Central Air

    Appliances

    • Cooktop

    • Dishwasher

    • Dryer

    • Microwave

    • Refrigerator

    • Washer

    Other interior features

    • Ceiling Fan(s)

    • Eating Space In Kitchen

    • Open Floorplan

    • PrimaryBedroom Upstairs

    • Solid Wood Cabinets

    • Stone Counters

    • Walk-In Closet(s)

    Bedrooms and bathrooms

    • Bedrooms: 4

    • Bathrooms: 1

    • Full bathrooms: 3

  • Parking

    • Alley Access

    Property

    • Levels: Two

    • Exterior Features: French Doors / Private Yard / Sliding Doors

    Lot

    • Lot: 0.09 Acres

    Other Property Information

    • Parcel Number: 362430497500120

    • Zoning: PD/AN

  • Type and style

    • Property Type: Residential

    • Property Sub Type: Single Family Residence

  • Utility

    • Public

  • Other financial information

    • HOA: $193

    • HOA Frequency: Monthly

    • Annual tax amount: $7,626

  • Source details

    • MLS ID: O6368553

    Other facts

    • Construction Materials: Block / Stucco

    • Foundation Details: Slab

    • Laundry Features: Inside / Laundry Room / Upper Level

    • Lot Features: Sidewalk

    • Patio And Porch Features: Covered / Front Porch / Rear Porch

    • Direction Faces: Northwest

    • Other Structures: Guest House

    • Garage Spaces: 2

    • Garage: Yes

    • Living Area: 2367

    • Water Source: Public

    • Subdivision Name: LAUREATE PARK PH 4

Similar Homes

3264 MAJESTIC OAK DRIVE placeholder 3264 MAJESTIC OAK DRIVE
New
For Sale
House
$580,000
3 bds 2 ba 2,595 sqft
3264 MAJESTIC OAK DRIVE
3162 HARVEST LANE placeholder 3162 HARVEST LANE
2 days
For Sale
House
$647,572
4 bds 3 ba 2,426 sqft
3162 HARVEST LANE
18730 PLANETREE STREET placeholder 18730 PLANETREE STREET
2 days
For Sale
House
$760,000
5 bds 4 ba 3,504 sqft
18730 PLANETREE STREET
14827 MILFOIL AVENUE placeholder 14827 MILFOIL AVENUE
3 days
For Sale
House
$615,000
4 bds 2 ba 2,240 sqft
14827 MILFOIL AVENUE
18907 RAWSON STREET placeholder 18907 RAWSON STREET
4 days
For Sale
House
$698,000
3 bds 2 ba 2,427 sqft
18907 RAWSON STREET
13701 CHAUVIN AVENUE placeholder 13701 CHAUVIN AVENUE
4 days
For Sale
House
$765,000
3 bds 2 ba 2,401 sqft
13701 CHAUVIN AVENUE
8483 KARRER TERRACE placeholder 8483 KARRER TERRACE
6 days
For Sale
Townhouse
$649,900
4 bds 3 ba 2,239 sqft
8483 KARRER TERRACE
10113 HIDDEN DUNES LANE placeholder 10113 HIDDEN DUNES LANE
7 days
For Sale
House
$570,000
4 bds 2 ba 2,025 sqft
10113 HIDDEN DUNES LANE

The multiple listing information is provided by the Stellar MLS from a copyrighted compilation of listings. The compilation of listings and each individual listing are ©2025-present Stellar MLS. All Rights Reserved. The information provided is for consumers' personal, noncommercial use and may not be used for any purpose other than to identify prospective properties consumers may be interested in purchasing. All properties are subject to prior sale or withdrawal. All information provided is deemed reliable but is not guaranteed accurate, and should be independently verified. Listing courtesy of: CREEGAN GROUP