Contact
Tell us about your needs

1561 NW 21ST STREET

House For Sale
$220,000

BTC: 2.53310305

ETH: 110.00000000

+$45K (2025/07/02)
260 days
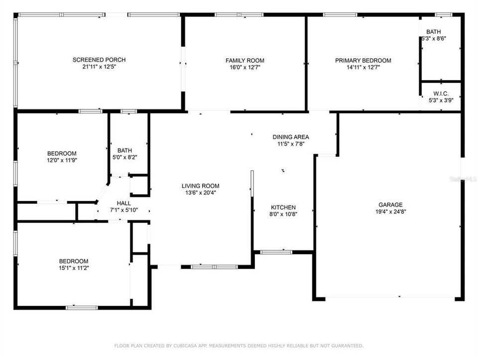
3 bds
2 ba
1,492 sqft
Est. Estimated sales range: $0 - $0
$0

Overview

Opportunity knocks with this spacious 3-bedroom, 2-bath block home in the heart of Crystal River, sitting on nearly half an acre (.44 acres) with optional private boat ramp access with fee, and ample room for parking on both sides of the home for boats and trailers. Built in 1974, this 1,492 sq ft home offers solid bones, a 2-car garage, and an open floor plan, and also features bigger bedrooms and more square footage than others for sale in the neighborhood. The seller is working on stucco & finishing new drywall now!! Price due to change as the seller completes repairs. Roof 2019, HVAC 2016, Water Heater, 2008. Located just a short drive from downtown Crystal River and the Gulf — with boating, fishing, and springs right at your fingertips, the house next door is going for $385k.

Location

Facts and features

Type:
Residential
Parking:
No Data
Year Built:
1974
Lot:
0.44 Acres
Heating:
Heat Pump
Price/sqft:
$147
Cooling:
Central Air
HOA:
No Data
All facts and features
  • Flooring

    • Ceramic Tile

    • Concrete

    Heating

    • Heat Pump

    Cooling

    • Central Air

    Appliances

    • None

    Other interior features

    • Primary Bedroom Main Floor

    • Thermostat

    Bedrooms and bathrooms

    • Bedrooms: 3

    • Full bathrooms: 2

  • Property

    • Levels: One

    • Exterior Features: Private Mailbox / Rain Gutters

    Lot

    • Lot: 0.44 Acres

    Other Property Information

    • Parcel Number: 17E18S170010000800250

    • Zoning: R1

  • Type and style

    • Property Type: Residential

    • Property Sub Type: Single Family Residence

  • Utility

    • Cable Available

    • Electricity Available

    • Electricity Connected

    • Public

    • Sewer Available

    • Sewer Connected

    • Water Available

    • Water Connected

  • Other financial information

    • Annual tax amount: $585

  • Source details

    • MLS ID: W7874237

    Other facts

    • Construction Materials: Block / Stucco

    • Foundation Details: Slab

    • Laundry Features: In Garage

    • Lot Features: Cleared / FloodZone / City Lot / Level

    • Patio And Porch Features: Rear Porch / Screened

    • Direction Faces: South

    • Architectural Style: Florida

    • Garage Spaces: 2

    • Attached Garage: Yes

    • Garage: Yes

    • Living Area: 1492

    • Water Source: Public

    • Lot Size Dimensions: 100 x 190

    • Subdivision Name: WOODLAND ESTATES UNIT 01

Similar Homes

3440 N OLIVE AVENUE placeholder 3440 N OLIVE AVENUE
New
For Sale
House
$220,990
3 bds 2 ba 1,114 sqft
3440 N OLIVE AVENUE
11243 W BAYSHORE DRIVE placeholder 11243 W BAYSHORE DRIVE
4 days
For Sale
House
$269,000
2 bds 2 ba 1,684 sqft
11243 W BAYSHORE DRIVE
11340 W BAYSHORE DRIVE placeholder 11340 W BAYSHORE DRIVE
4 days
For Sale
House
$179,900
2 bds 2 ba 1,584 sqft
11340 W BAYSHORE DRIVE
5018 N ANDRI DRIVE placeholder 5018 N ANDRI DRIVE
7 days
For Sale
Lots/Land
$160,000
0 room(s)
5018 N ANDRI DRIVE
9391 W MARQUETTE LANE placeholder 9391 W MARQUETTE LANE
9 days
For Sale
House
$245,000
3 bds 2 ba 1,197 sqft
9391 W MARQUETTE LANE
10220 W PAMONDEHO CIRCLE placeholder 10220 W PAMONDEHO CIRCLE
11 days
For Sale
House
$209,900
3 bds 2 ba 1,512 sqft
10220 W PAMONDEHO CIRCLE
11603 W BAYSHORE DRIVE UNIT 118 placeholder 11603 W BAYSHORE DRIVE UNIT 118
13 days
For Sale
Condo/Co-op
$249,000
2 bds 2 ba 1,862 sqft
11603 W BAYSHORE DRIVE UNIT 118
1050 N MIDIRON POINT placeholder 1050 N MIDIRON POINT
17 days
For Sale
House
$250,000
3 bds 2 ba 1,020 sqft
1050 N MIDIRON POINT

The multiple listing information is provided by the Stellar MLS from a copyrighted compilation of listings. The compilation of listings and each individual listing are ©2025-present Stellar MLS. All Rights Reserved. The information provided is for consumers' personal, noncommercial use and may not be used for any purpose other than to identify prospective properties consumers may be interested in purchasing. All properties are subject to prior sale or withdrawal. All information provided is deemed reliable but is not guaranteed accurate, and should be independently verified. Listing courtesy of: KELLER WILLIAMS REALTY-ELITE P