Contact
Tell us about your needs

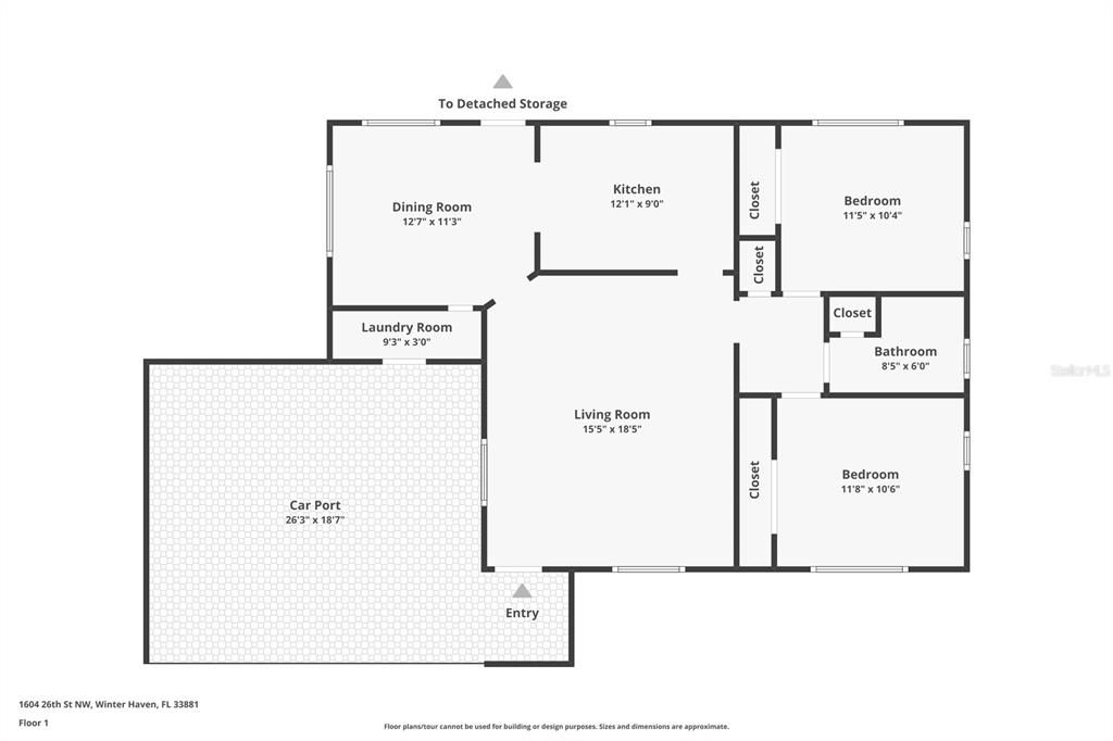
1604 26TH STREET NW

House Active With Contract
$189,900

BTC: 2.71285714

ETH: 92.40875912

25 days
2 bds
1 ba
880 sqft
Est. Estimated sales range: $0 - $0
$0

Overview

Under contract-accepting backup offers. No HOA + Oversized Lot + Workshop!! Amazing Potential Near the Lake! Looking for space, freedom, and BIG potential? Welcome to 1604 26th Street NW in Winter Haven! This charming property sits on over a ¼ Acre lot, offers NO HOA, and comes with a double carport, plus a detached workshop with its own enclosed carport — perfect for cars, tools, hobbies, or extra storage. The home itself needs some cosmetic TLC, but that means you get to update it your way while building instant equity. Solid layout, flexible spaces, and a huge yard give you tons of room to create the Florida lifestyle you’ve been dreaming of. One of the best parts? You’re just a short walk to the Massive Lake Cannon, giving you those peaceful breezes, morning strolls, bird watching, gorgeous skies, and the natural beauty Winter Haven is known for. For those relocating from out of state, you'll love that this property is nestled inside a quiet, established neighborhood with easy access to shopping, restaurants, medical facilities, and major highways, and the central location between Tampa and Orlando — all while enjoying the sunshine and laid-back vibe of Central Florida. With its no-HOA freedom, oversized lot, carports, workshop, and walkability to the lake, Garner Elementary School and Lake Cannon Park, this property has all the essential hard-to-replace features. Bring your vision for cosmetic updates and transform this solid home with endless potential into your perfect Florida haven!!

Location

Facts and features

Type:
Residential
Parking:
No Data
Year Built:
1955
Lot:
0.31 Acres
Heating:
Electric
Price/sqft:
$216
Cooling:
Central Air
HOA:
No Data
All facts and features
  • Flooring

    • Carpet

    • Other

    • Tile

    Heating

    • Electric

    Cooling

    • Central Air

    Appliances

    • Range

    • Refrigerator

    Other interior features

    • Other

    Bedrooms and bathrooms

    • Bedrooms: 2

    • Full bathrooms: 1

  • Property

    • Levels: One

    • Exterior Features: Storage

    Lot

    • Lot: 0.31 Acres

    Other Property Information

    • Parcel Number: 252813342000004110

    • Zoning: R-1

  • Type and style

    • Property Type: Residential

    • Property Sub Type: Single Family Residence

  • Utility

    • Other

  • Other financial information

    • Annual tax amount: $660

  • Source details

    • MLS ID: O6363383

    Other facts

    • Construction Materials: Brick

    • Foundation Details: Other

    • Laundry Features: Inside

    • Direction Faces: West

    • Other Structures: Shed(s)

    • Living Area: 880

    • Water Source: Public

    • Subdivision Name: INWOOD

Similar Homes

1956 28TH STREET NW placeholder 1956 28TH STREET NW
New
Active With Contract
House
$145,000
2 bds 1 ba 1,974 sqft
1956 28TH STREET NW
119 ALLEN AVENUE placeholder 119 ALLEN AVENUE
1 days
Active With Contract
House
$169,000
4 bds 2 ba 1,520 sqft
119 ALLEN AVENUE
2158 GREENWAY DRIVE placeholder 2158 GREENWAY DRIVE
4 days
Active With Contract
House
$244,900
3 bds 2 ba 1,740 sqft
2158 GREENWAY DRIVE
502 TROY LANE placeholder 502 TROY LANE
10 days
Active With Contract
House
$245,000
3 bds 2 ba 1,125 sqft
502 TROY LANE
2334 AVENUE E NW placeholder 2334 AVENUE E NW
21 days
Active With Contract
House
$189,900
3 bds 1 ba 1,118 sqft
2334 AVENUE E NW
229 NE AVENUE B placeholder 229 NE AVENUE B
27 days
Active With Contract
$240,000
4 bds 2 ba 1,593 sqft
229 NE AVENUE B
3121 AVENUE M NW placeholder 3121 AVENUE M NW
-$10K (2025/12/15)
Active With Contract
House
$210,000
2 bds 1 ba 1,208 sqft
3121 AVENUE M NW
2153 LOIS BOULEVARD placeholder 2153 LOIS BOULEVARD
-$7K (2025/12/02)
Active With Contract
$182,900
2 bds 2 ba 1,296 sqft
2153 LOIS BOULEVARD

The multiple listing information is provided by the Stellar MLS from a copyrighted compilation of listings. The compilation of listings and each individual listing are ©2026-present Stellar MLS. All Rights Reserved. The information provided is for consumers' personal, noncommercial use and may not be used for any purpose other than to identify prospective properties consumers may be interested in purchasing. All properties are subject to prior sale or withdrawal. All information provided is deemed reliable but is not guaranteed accurate, and should be independently verified. Listing courtesy of: EXP REALTY LLC