Contact
Tell us about your needs

16946 OVAL RUM DR.

House For Sale
$599,500

BTC: 6.31052632

ETH: 193.38709677

-$50K (2025/11/04)
294 days
4 bds
3 ba
3,362 sqft
Est. Estimated sales range: $0 - $0
$0

Overview

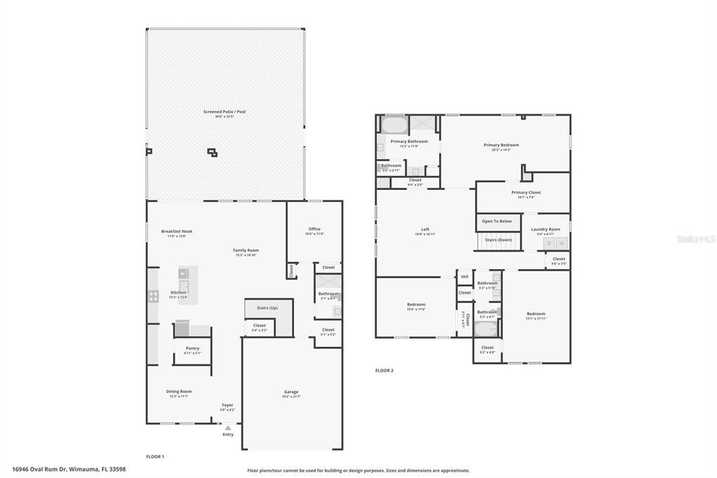
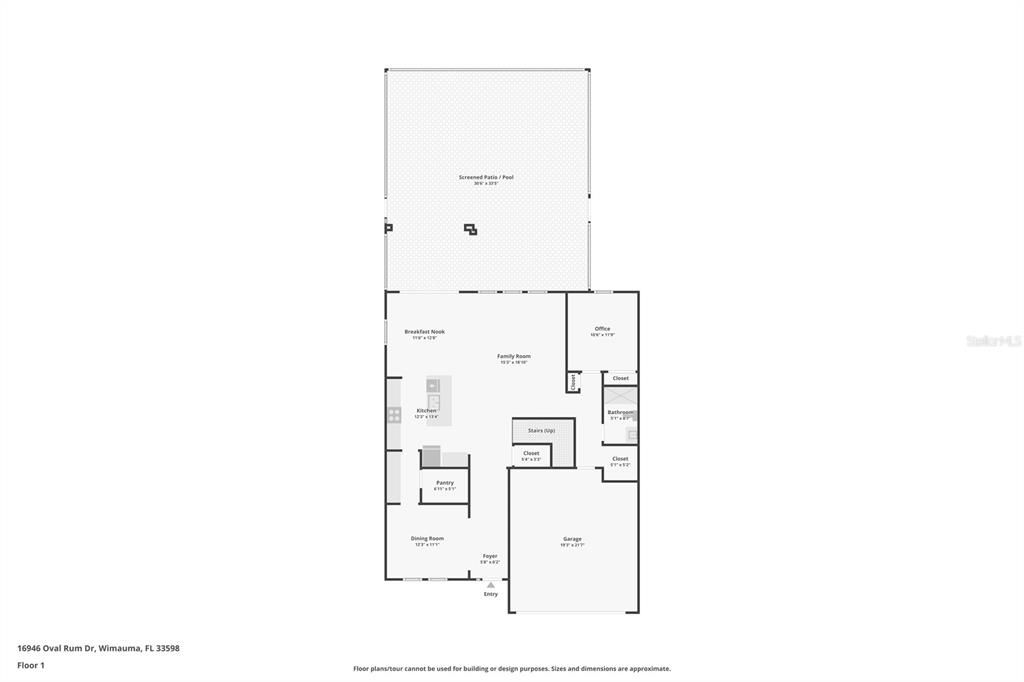
***Luxury Living with a Custom Pool & Spa and Solar in Southshore Bay!*** Welcome to this stunning four-bedroom, three-bathroom, two-story home in Southshore Bay. Built in 2021, it offers modern luxury and an incredible outdoor oasis—perfect for Florida living. The first floor features 9'4" ceilings and an expansive, open-concept layout. The main living areas include a flexible study/den and a spacious great room connecting to the kitchen. Designed for elegance and functionality, the kitchen boasts 42” cabinets, granite countertops, an oversized island, a butler’s pantry, and stainless steel appliances. A guest bedroom and full bath complete the first floor. The upstairs living areas include a versatile bonus room with durable, beautiful, and waterproof California Cavalieri flooring. The primary suite features a sitting room, a spa-like ensuite with granite countertops, a soaking tub, a separate shower, and a walk-in closet with direct access to the laundry room. Two additional bedrooms and a full bath complete the second level. Step outside to your private backyard paradise! This home features a custom 30' x 23' heated saltwater pool and spa —the perfect setting for relaxing or entertaining year-round. The oversized two-car garage with high ceilings provides ample storage. Located in the golf cart-friendly Southshore Bay community, residents enjoy access to the Southshore Bay Lagoon and nearby attractions like the TECO Manatee Viewing Center, local marinas, and E.G. Simmons Park. Built with all-concrete block construction and a thoughtfully designed layout, this home offers a perfect blend of comfort, style, and outdoor luxury—a must-see! Schedule your private showing today!

Location

Facts and features

Type:
Residential
Parking:
Driveway / Garage Door Opener
Year Built:
2021
Lot:
0.15 Acres
Heating:
Electric
Price/sqft:
$178
Cooling:
Central Air
HOA:
$236
All facts and features
  • Flooring

    • Carpet

    • Hardwood

    Heating

    • Electric

    Cooling

    • Central Air

    Appliances

    • Dishwasher

    • Disposal

    • Dryer

    • Electric Water Heater

    • Microwave

    • Range

    • Refrigerator

    • Washer

    Other interior features

    • Ceiling Fan(s)

    • High Ceilings

    • Open Floorplan

    • PrimaryBedroom Upstairs

    • Thermostat

    • Tray Ceiling(s)

    Bedrooms and bathrooms

    • Bedrooms: 4

    • Full bathrooms: 3

  • Parking

    • Driveway

    • Garage Door Opener

    Property

    • Levels: Two

    • Pool Private: Yes

    • Exterior Features: Hurricane Shutters / Irrigation System / Lighting / Sidewalk / Sliding Doors

    Lot

    • Lot: 0.15 Acres

    Other Property Information

    • Parcel Number: U173220C1E00000100021.0

    • Zoning: PD/PD

  • Type and style

    • Property Type: Residential

    • Property Sub Type: Single Family Residence

  • Utility

    • Cable Available

    • Electricity Available

    • Sewer Connected

    • Underground Utilities

    • Water Connected

  • Other financial information

    • HOA: $236

    • HOA Frequency: Quarterly

    • Annual tax amount: $10,223

  • Source details

    • MLS ID: TB8360517

    Other facts

    • Construction Materials: Block / Stucco / Wood Frame

    • Foundation Details: Slab

    • Laundry Features: Laundry Room

    • Lot Features: City Lot / In County

    • Pool Features: Heated / In Ground / Lighting / Salt Water / Screen Enclosure

    • Direction Faces: Southeast

    • Garage Spaces: 2

    • Attached Garage: Yes

    • Garage: Yes

    • Living Area: 3362

    • Water Source: None

    • Subdivision Name: FOREST BROOKE PHASE 4A

Similar Homes

3918 GAVIOTA DRIVE placeholder 3918 GAVIOTA DRIVE
New
For Sale
House
$625,000
4 bds 3 ba 2,898 sqft
3918 GAVIOTA DRIVE
16251 DIAMOND BAY DRIVE placeholder 16251 DIAMOND BAY DRIVE
1 days
For Sale
House
$515,000
3 bds 2 ba 2,465 sqft
16251 DIAMOND BAY DRIVE
16301 GARNET GLEN PLACE placeholder 16301 GARNET GLEN PLACE
1 days
For Sale
House
$635,000
3 bds 3 ba 2,723 sqft
16301 GARNET GLEN PLACE
1338 EMERALD DUNES DRIVE placeholder 1338 EMERALD DUNES DRIVE
1 days
For Sale
Condo/Co-op
$425,000
3 bds 2 ba 2,482 sqft
1338 EMERALD DUNES DRIVE
5103 SHADY STONE PLACE placeholder 5103 SHADY STONE PLACE
2 days
For Sale
House
$450,000
3 bds 2 ba 2,001 sqft
5103 SHADY STONE PLACE
1613 EMERALD DUNES DRIVE placeholder 1613 EMERALD DUNES DRIVE
2 days
For Sale
House
$529,000
3 bds 3 ba 2,547 sqft
1613 EMERALD DUNES DRIVE
16938 SCUBA CREST STREET placeholder 16938 SCUBA CREST STREET
5 days
For Sale
House
$624,999
3 bds 3 ba 2,778 sqft
16938 SCUBA CREST STREET
4904 EAGLE ROCK DRIVE placeholder 4904 EAGLE ROCK DRIVE
5 days
For Sale
House
$600,000
5 bds 4 ba 3,566 sqft
4904 EAGLE ROCK DRIVE

The multiple listing information is provided by the Stellar MLS from a copyrighted compilation of listings. The compilation of listings and each individual listing are ©2026-present Stellar MLS. All Rights Reserved. The information provided is for consumers' personal, noncommercial use and may not be used for any purpose other than to identify prospective properties consumers may be interested in purchasing. All properties are subject to prior sale or withdrawal. All information provided is deemed reliable but is not guaranteed accurate, and should be independently verified. Listing courtesy of: KELLER WILLIAMS SOUTH SHORE