Contact
Tell us about your needs

17991 NW 175TH AVENUE

House For Sale
$724,900

BTC: 24.16333333

ETH: 362.45000000

-$24K (2025/11/17)
32 days
4 bds
3 ba
3,117 sqft
Est. Estimated sales range: $0 - $0
$0

Overview

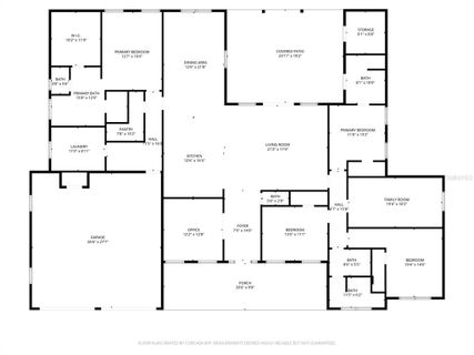
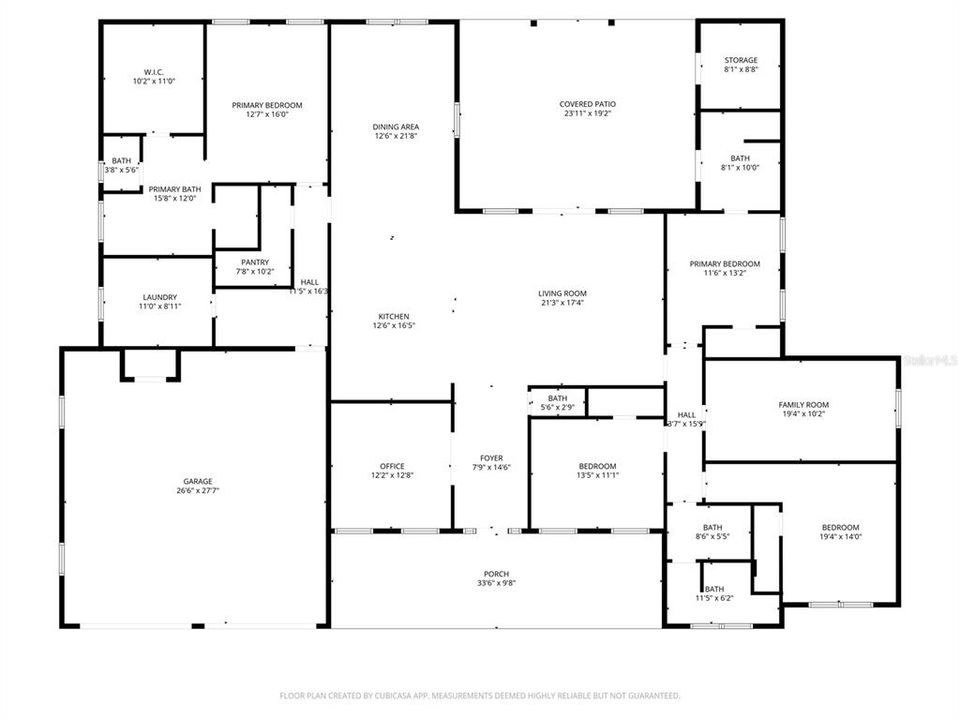
WOW! Discover a custom-built 4-bedroom, 3.5-bath home in the Meadow Glen community of Alachua—offering 3,117 sq. ft. of living space on a landscaped 1.06-acre lot. This home features a split floor plan, 11’ ceilings and architectural details that create an inviting, light-filled atmosphere. Inside a spacious foyer that leads to a private home office and convenient half bath. The great room impresses with its vaulted ceiling, shiplap accent wall and pillared archways that flow into the dining area and kitchen. Professional-grade stainless steel appliances—including two convection ovens, gas cooktop, smart refrigerator—under-cabinet lighting, granite countertops and an oversized 11-foot island ideal for gathering. The owner’s suite overlooks the backyard and features a spa-style bathroom with a large walk-in shower, jetted soaking tub, dual vanities and a 10x10 custom closet. Three additional bedrooms sit on the opposite side of the home. A dedicated guest suite includes its own full bath and direct access to the covered patio—perfect for multi-generational living or visiting guests. Outdoor there is a fully equipped summer kitchen, complete with a built-in KitchenAid grill and 36" Wolf gas range. The fenced backyard offers endless possibilities—add a pool, garden, playground, or simply enjoy the mature lemon, lime, and apple trees already thriving on the property. Additional highlights include, large laundry room with built-ins and folding station, walk-in pantry and mudroom, storage shed. Oversized 28x28 garage with roughed-in plumbing. New carpet in bedrooms + fresh interior paint (2025). Energy-efficient systems: Clay Electric, two Rinnai tankless water heaters, Carrier HVAC, Delta fixtures. Located minutes from Gainesville, the University of Florida, Publix, I-75, restaurants, and shopping. Move-in ready!!!

Location

Facts and features

Type:
Residential
Parking:
Driveway / Garage Door Opener / Oversized
Year Built:
2018
Lot:
1.06 Acres
Heating:
Central
Price/sqft:
$233
Cooling:
Central Air
HOA:
$200
All facts and features
  • Flooring

    • Carpet

    • Luxury Vinyl

    • Tile

    • Hardwood

    Heating

    • Central

    Cooling

    • Central Air

    Appliances

    • Built-In Oven

    • Convection Oven

    • Dishwasher

    • Disposal

    • Dryer

    • Exhaust Fan

    • Ice Maker

    • Microwave

    • Range

    • Range Hood

    • Refrigerator

    • Tankless Water Heater

    • Washer

    Other interior features

    • Ceiling Fan(s)

    • Crown Molding

    • Eating Space In Kitchen

    • High Ceilings

    • Kitchen/Family Room Combo

    • Open Floorplan

    • Primary Bedroom Main Floor

    • Solid Wood Cabinets

    • Split Bedroom

    • Thermostat

    • Tray Ceiling(s)

    • Vaulted Ceiling(s)

    • Walk-In Closet(s)

    • Window Treatments

    Bedrooms and bathrooms

    • Bedrooms: 4

    • Bathrooms: 1

    • Full bathrooms: 3

  • Parking

    • Driveway

    • Garage Door Opener

    • Oversized

    Property

    • Levels: One

    • Exterior Features: Dog Run / French Doors / Lighting / Outdoor Grill / Outdoor Kitchen / Storage

    Lot

    • Lot: 1.06 Acres

    Other Property Information

    • Parcel Number: 03024010018

    • Zoning: A

  • Type and style

    • Property Type: Residential

    • Property Sub Type: Single Family Residence

  • Utility

    • BB/HS Internet Available

    • Cable Available

    • Electricity Connected

    • Natural Gas Connected

    • Sewer Connected

    • Street Lights

    • Water Connected

  • Other financial information

    • HOA: $200

    • HOA Frequency: Annually

    • Annual tax amount: $13,204

  • Source details

    • MLS ID: GC534975

    Other facts

    • Construction Materials: Cement Siding

    • Foundation Details: Slab

    • Laundry Features: Laundry Room

    • Patio And Porch Features: Covered / Patio

    • Window Features: Blinds

    • Direction Faces: Northwest

    • Garage Spaces: 2

    • Attached Garage: Yes

    • Garage: Yes

    • Living Area: 3117

    • Water Source: Public

    • Subdivision Name: MEADOW GLEN REPL OF NOELLE ESTATE PH I

Similar Homes

21328 NW 165TH AVENUE placeholder 21328 NW 165TH AVENUE
23 days
For Sale
House
$929,900
3 bds 2 ba 2,865 sqft
21328 NW 165TH AVENUE
17598 NW 181ST STREET placeholder 17598 NW 181ST STREET
56 days
For Sale
House
$524,900
4 bds 3 ba 2,209 sqft
17598 NW 181ST STREET
14834 NW 149TH ROAD placeholder 14834 NW 149TH ROAD
-$20K (2025/10/13)
For Sale
House
$544,900
3 bds 2 ba 2,147 sqft
14834 NW 149TH ROAD
14857 NW 132ND PLACE placeholder 14857 NW 132ND PLACE
-$50K (2025/12/03)
For Sale
House
$549,900
3 bds 2 ba 2,410 sqft
14857 NW 132ND PLACE
20488 NW 160TH LANE placeholder 20488 NW 160TH LANE
82 days
For Sale
House
$535,900
4 bds 3 ba 2,118 sqft
20488 NW 160TH LANE

The multiple listing information is provided by the Stellar MLS from a copyrighted compilation of listings. The compilation of listings and each individual listing are ©2025-present Stellar MLS. All Rights Reserved. The information provided is for consumers' personal, noncommercial use and may not be used for any purpose other than to identify prospective properties consumers may be interested in purchasing. All properties are subject to prior sale or withdrawal. All information provided is deemed reliable but is not guaranteed accurate, and should be independently verified. Listing courtesy of: PEPINE REALTY