Contact
Tell us about your needs

1912 Lynx, Hutchinson Island, FL 34949

House For Sale
$895,000

BTC: 13.16176471

ETH: 430.28846154

-$35K (2025/10/14)
125 days
Waterfront
3 bds
3 ba
2,170 sqft
Est. Estimated sales range: $0 - $0
$0

Overview

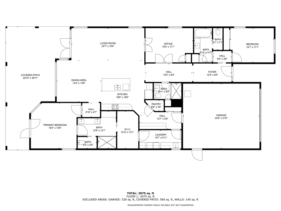
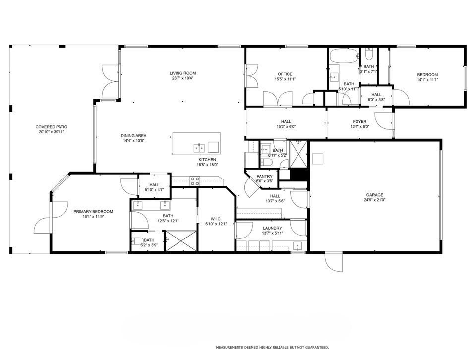
This exceptional, nearly new custom waterfront residence on Hutchinson Island offers all the modern features one would expect in a high-quality home. The welcoming foyer opens to a fantastic family room and gourmet, island kitchen overlooking peaceful Wildcat Cove. The large, screened lanai and patio are great for entertaining or enjoying beautiful sunsets after a long day. Interior features include stainless appliances, quartz countertops, endless cabinets, pantry, luxury vinyl flooring, crown molding, plantation shutters, picture window with push-button shade, energy efficient double pane impact windows, 86 inch television, walk in closet with doorway to laundry room. Exterior features include energy efficient foam insulation, whole house generator, oversized double garage with abundant

Location

Facts and features

Type:
Residential
Parking:
2+ Spaces / Driveway / Garage - Attached
Year Built:
2023
Lot:
10454 Square Feet
Heating:
Central / Electric
Price/sqft:
$412
Cooling:
Ceiling Fan / Central / Electric
HOA:
No Data
All facts and features
  • Flooring

    • Laminate

    • Vinyl Floor

    Heating

    • Central

    • Electric

    Cooling

    • Ceiling Fan

    • Central

    • Electric

    Appliances

    • Auto Garage Open

    • Dishwasher

    • Disposal

    • Dryer

    • Ice Maker

    • Microwave

    • Range - Electric

    • Washer

    • Water Heater - Elec

    Other interior features

    • Built-in Shelves

    • Foyer

    • French Door

    • Kitchen Island

    • Laundry Tub

    • Pantry

    • Pull Down Stairs

    • Split Bedroom

    • Volume Ceiling

    • Walk-in Closet

    Bedrooms and bathrooms

    • Bedrooms: 3

    • Full bathrooms: 3

  • Parking

    • 2+ Spaces

    • Driveway

    • Garage - Attached

    Property

    • Exterior Features: Auto Sprinkler / Open Patio / Outdoor Shower / Room for Pool / Screen Porch

    Lot

    • Lot: 10454 Square Feet

    Other Property Information

    • Parcel Number: 142562000270007

    • Zoning: Planne

  • Type and style

    • Property Type: Residential

    • Property Sub Type: Single Family Residence

  • Utility

    • Electric

    • Public Sewer

    • Public Water

  • Other financial information

    • Annual tax amount: $12,816

  • Source details

    • MLS ID: RX-11121600

    Other facts

    • Construction Materials: Block / CBS / Stucco

    • Lot Features: < 1/4 Acre / Paved Road

    • Patio And Porch Features: Patio / Porch

    • Direction Faces: 1-95, E on SR-70, (Okeechobee Rd.), N on US Hwy 1, right on Juanita Dr., right on N. Old Dixie Hwy, left on N. Causeway Dr., left on N. Hwy A1A, left on Lakeview Cir. right on Lynx Dr.

    • Waterfront: Yes

    • Garage Spaces: 2

    • Garage: Yes

    • Living Area: 2170

    • Subdivision Name: RIVERPOINT AT THE SANDS PHASE II

Similar Homes

4000 Highway A1a, Hutchinson Island, FL 34949 placeholder 4000 Highway A1a, Hutchinson Island, FL 34949
27 days
For Sale
Condo/Co-op
$1,150,000
3 bds 2 ba 2,701 sqft
4000 Highway A1a, Hutchinson Island, FL 34949
3880 N HIGHWAY A1A UNIT 104 placeholder 3880 N HIGHWAY A1A UNIT 104
28 days
For Sale
Condo/Co-op
$875,000
3 bds 2 ba 2,151 sqft
3880 N HIGHWAY A1A UNIT 104
3880 Highway A1a, Hutchinson Island, FL 34949 placeholder 3880 Highway A1a, Hutchinson Island, FL 34949
30 days
For Sale
Condo/Co-op
$875,000
3 bds 2 ba 2,151 sqft
3880 Highway A1a, Hutchinson Island, FL 34949
4000 Highway A1a, Hutchinson Island, FL 34949 placeholder 4000 Highway A1a, Hutchinson Island, FL 34949
35 days
For Sale
Condo/Co-op
$988,888
3 bds 2 ba 2,701 sqft
4000 Highway A1a, Hutchinson Island, FL 34949
4180 Highway A1a, Hutchinson Island, FL 34949 placeholder 4180 Highway A1a, Hutchinson Island, FL 34949
43 days
For Sale
Condo/Co-op
$1,000,000
3 bds 2 ba 2,343 sqft
4180 Highway A1a, Hutchinson Island, FL 34949
2486 HARBOUR COVE DRIVE placeholder 2486 HARBOUR COVE DRIVE
45 days
For Sale
Townhouse
$725,000
3 bds 2 ba 1,780 sqft
2486 HARBOUR COVE DRIVE
2486 Harbour Cove, Fort Pierce, FL 34949 placeholder 2486 Harbour Cove, Fort Pierce, FL 34949
46 days
For Sale
Townhouse
$725,000
3 bds 2 ba 1,780 sqft
2486 Harbour Cove, Fort Pierce, FL 34949
3100 Highway A1a, Hutchinson Island, FL 34949 placeholder 3100 Highway A1a, Hutchinson Island, FL 34949
51 days
For Sale
Condo/Co-op
$775,000
3 bds 2 ba 1,623 sqft
3100 Highway A1a, Hutchinson Island, FL 34949

The multiple listing information is provided by the Beaches MLS from a copyrighted compilation of listings. The compilation of listings and each individual listing are ©2026-present Beaches MLS. All Rights Reserved. The information provided is for consumers' personal, noncommercial use and may not be used for any purpose other than to identify prospective properties consumers may be interested in purchasing. All properties are subject to prior sale or withdrawal. All information provided is deemed reliable but is not guaranteed accurate, and should be independently verified. Listing courtesy of: Keller Williams Realty of PSL