Contact
Tell us about your needs

193 HAMPTON LOOP

House For Sale
$825,000

BTC: 9.55414013

ETH: 281.95488722

-$40K (2025/12/20)
23 days
4 bds
3 ba
2,714 sqft
Est. Estimated sales range: $0 - $0
$0

Overview

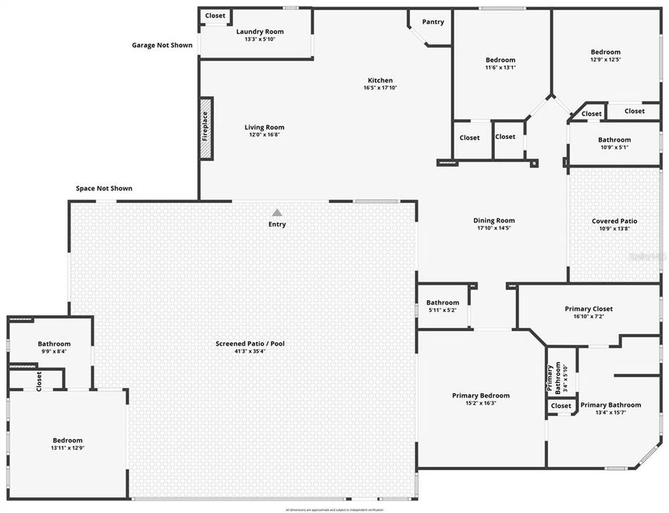
Seller is offering $15,000 in flex money that can be used toward the buyer’s closing costs or an interest rate buydown—an incredible opportunity to reduce your upfront costs or secure a lower monthly payment. Elegance and functionality come together in this stunning oversized custom courtyard home located in the resort-style community of Providence Golf Club. The private courtyard welcomes you with a heated saltwater pool, relaxing spa, summer kitchen, and generous patio space, perfect for outdoor living and entertaining. Inside, the open-concept layout seamlessly connects the living, dining, and kitchen areas. The gourmet kitchen features top-of-the-line appliances, including a Sub-Zero refrigerator, wine fridge, oversized island with ample storage, customized pantry, and rich cabinetry. Dramatic ceilings, designer finishes, premium flooring, and custom lighting elevate the home’s modern elegance. Enjoy peaceful views of the pond and the 15th hole of the golf course from the cozy patio with retractable screen. A private in-law suite with its own bathroom and courtyard access offers comfort and flexibility for guests or extended family. Providence Golf Club residents enjoy exceptional amenities, including an award-winning 18-hole golf course, clubhouse with restaurant and bar, resort-style pools, fitness center, tennis courts, playgrounds, walking trails, and 24-hour gated security. This home offers the perfect blend of luxury, comfort, and resort-style living in one of Central Florida’s most desirable communities.

Location

Facts and features

Type:
Residential
Parking:
Garage Door Opener / Oversized
Year Built:
2021
Lot:
0.22 Acres
Heating:
Central / Electric
Price/sqft:
$304
Cooling:
Central Air
HOA:
$143
All facts and features
  • Flooring

    • Carpet

    • Porcelain Tile

    Heating

    • Central

    • Electric

    Cooling

    • Central Air

    Appliances

    • Built-In Oven

    • Convection Oven

    • Cooktop

    • Dishwasher

    • Disposal

    • Exhaust Fan

    • Ice Maker

    • Kitchen Reverse Osmosis System

    • Microwave

    • Range Hood

    • Refrigerator

    • Water Filtration System

    • Water Purifier

    • Water Softener

    • Whole House R.O. System

    • Wine Refrigerator

    Other interior features

    • Ceiling Fan(s)

    • High Ceilings

    • Open Floorplan

    • Primary Bedroom Main Floor

    • Smart Home

    • Split Bedroom

    • Thermostat

    • Tray Ceiling(s)

    • Walk-In Closet(s)

    • Window Treatments

    Bedrooms and bathrooms

    • Bedrooms: 4

    • Bathrooms: 1

    • Full bathrooms: 3

  • Parking

    • Garage Door Opener

    • Oversized

    Property

    • Levels: One

    • Pool Private: Yes

    • Exterior Features: Courtyard / Irrigation System / Lighting / Outdoor Kitchen / Rain Gutters / Sidewalk / Sliding Doors

    Lot

    • Lot: 0.22 Acres

    Other Property Information

    • Parcel Number: 282619932943000700

  • Type and style

    • Property Type: Residential

    • Property Sub Type: Single Family Residence

  • Utility

    • Fiber Optics

    • Public

  • Other financial information

    • HOA: $143

    • HOA Frequency: Monthly

    • Annual tax amount: $7,298

  • Source details

    • MLS ID: S5139646

    Other facts

    • Construction Materials: Block / Stucco

    • Foundation Details: Slab

    • Fireplace Features: Electric

    • Laundry Features: Inside / Laundry Room

    • Lot Features: Near Golf Course

    • Pool Features: Child Safety Fence / Heated / In Ground / Lighting / Salt Water / Screen Enclosure

    • Window Features: Blinds

    • Direction Faces: Northwest

    • Fireplace: Yes

    • Garage Spaces: 2

    • Attached Garage: Yes

    • Garage: Yes

    • Living Area: 2714

    • Water Source: Public

    • Subdivision Name: HAMPTON LANDING AT PROVIDENCE

Similar Homes

7712 OAKMOSS LOOP placeholder 7712 OAKMOSS LOOP
11 days
For Sale
House
$639,000
6 bds 5 ba 3,173 sqft
7712 OAKMOSS LOOP
2592 HERITAGE GREEN AVENUE placeholder 2592 HERITAGE GREEN AVENUE
21 days
For Sale
House
$649,900
4 bds 3 ba 2,293 sqft
2592 HERITAGE GREEN AVENUE
1204 LEXINGTON AVENUE placeholder 1204 LEXINGTON AVENUE
24 days
For Sale
House
$585,000
4 bds 3 ba 3,096 sqft
1204 LEXINGTON AVENUE
2942 CAMDEN WAY placeholder 2942 CAMDEN WAY
-$15K (2025/12/09)
For Sale
House
$685,000
5 bds 3 ba 3,385 sqft
2942 CAMDEN WAY
500 WESTCHESTER COURT placeholder 500 WESTCHESTER COURT
-$20K (2025/10/08)
For Sale
House
$759,000
5 bds 3 ba 3,683 sqft
500 WESTCHESTER COURT
4044 REDBRIDGE LOOP placeholder 4044 REDBRIDGE LOOP
122 days
For Sale
House
$580,000
5 bds 3 ba 3,287 sqft
4044 REDBRIDGE LOOP
381 Cabello Drive, Davenport FL 33837 placeholder 381 Cabello Drive, Davenport FL 33837
123 days
For Sale
House
$595,900
6 bds 5 ba
381 Cabello Drive, Davenport FL 33837
488 CHELSEA AVENUE placeholder 488 CHELSEA AVENUE
-$25K (2025/11/24)
For Sale
House
$775,000
4 bds 4 ba 4,307 sqft
488 CHELSEA AVENUE

The multiple listing information is provided by the Stellar MLS from a copyrighted compilation of listings. The compilation of listings and each individual listing are ©2025-present Stellar MLS. All Rights Reserved. The information provided is for consumers' personal, noncommercial use and may not be used for any purpose other than to identify prospective properties consumers may be interested in purchasing. All properties are subject to prior sale or withdrawal. All information provided is deemed reliable but is not guaranteed accurate, and should be independently verified. Listing courtesy of: KELLER WILLIAMS LEGACY REALTY