Contact
Tell us about your needs

23 MOODY DRIVE

House Active With Contract
$599,000

BTC: 6.89694876

ETH: 299.50000000

-$60K (2025/08/14)
212 days
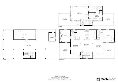
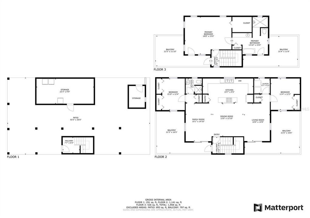
3 bds
2 ba
1,948 sqft
Est. Estimated sales range: $0 - $0
$0

Overview

Under contract-accepting backup offers. Welcome to 23 Moody Drive, a beautifully updated coastal retreat nestled in the highly desirable Marineland Acres subdivision—just steps from the beach and a mere half mile from the Intracoastal Waterway. Elevated on sturdy pilings to stay high and dry, this 3-bedroom, 2-bathroom home offers 1,948 square feet of well-maintained and thoughtfully upgraded living space. Enjoy peace of mind with a new roof, new septic system, new electric panel, and HVAC under warranty through 2027. Most windows have been replaced for improved efficiency, and the home was professionally painted inside and out just a few years ago—still offering a clean, updated, and well-cared-for feel throughout. The kitchen is equipped with updated appliances, including a gas range—perfect for those who love to cook and entertain. Outdoor living shines with four Trex decks spanning the second and third floors—two with ocean views and all positioned to capture soothing sounds of the surf. The home’s lush landscaping features Naval orange trees, blackberry bushes, and a papaya tree, along with multiple planters and beautifully laid paver and brick walkways. Two spacious storage areas (22’x10’ and 8’x10’) provide plenty of room for tools, beach gear, or hobby space, while the new cement driveway and fencing add to the home's overall curb appeal. Perfect for outdoor enthusiasts, this property offers walkable beach access at the end of the street, great fishing and kayaking nearby, and regular wildlife sightings, including exotic birds that feed on the property. Rinse off in the outdoor shower after a day on the water, and use the built-in fish filleting station to prep the catch of the day. With no HOA and ample room for your boat or RV, this is the beachside lifestyle you’ve been searching for—quiet, private, and move-in ready. Boat ramp minutes away at Bing's landing. Don’t miss your chance to own a slice of paradise!

Location

Facts and features

Type:
Residential
Parking:
Boat / Covered / Driveway / RV Parking
Year Built:
1986
Lot:
0.21 Acres
Heating:
Central
Price/sqft:
$307
Cooling:
Central Air
HOA:
No Data
All facts and features
  • Flooring

    • Bamboo

    • Tile

    Heating

    • Central

    Cooling

    • Central Air

    Appliances

    • Dishwasher

    • Dryer

    • Range

    • Refrigerator

    • Washer

    Other interior features

    • PrimaryBedroom Upstairs

    • Walk-In Closet(s)

    • Window Treatments

    Bedrooms and bathrooms

    • Bedrooms: 3

    • Full bathrooms: 2

  • Parking

    • Boat

    • Covered

    • Driveway

    • RV Parking

    Property

    • Levels: Three Or More

    • Exterior Features: Balcony / Courtyard / Garden / Hurricane Shutters / Sliding Doors / Storage

    Lot

    • Lot: 0.21 Acres

    Other Property Information

    • Parcel Number: 3910314200000400100

    • Zoning: R-1

  • Type and style

    • Property Type: Residential

    • Property Sub Type: Single Family Residence

  • Utility

    • Cable Connected

    • Electricity Available

    • Sewer Connected

    • Water Connected

  • Other financial information

    • Annual tax amount: $7,034

  • Source details

    • MLS ID: FC308696

    Other facts

    • Construction Materials: Vinyl Siding / Wood Frame

    • Foundation Details: Slab / Stilt/On Piling

    • Laundry Features: Upper Level

    • Lot Features: Corner Lot

    • Patio And Porch Features: Covered / Deck

    • Direction Faces: East

    • Other Structures: Shed(s) / Storage

    • Architectural Style: Coastal

    • Living Area: 1948

    • Water Source: Public

    • Subdivision Name: MARINELAND ACRES 1ST ADD

Similar Homes

11 SEMINOLE AVENUE placeholder 11 SEMINOLE AVENUE
1 days
Active With Contract
House
$519,000
3 bds 2 ba 1,632 sqft
11 SEMINOLE AVENUE
4093 OLD KINGS ROAD N placeholder 4093 OLD KINGS ROAD N
15 days
Active With Contract
Lots/Land
$450,000
0 room(s)
4093 OLD KINGS ROAD N
4121 OLD KINGS ROAD N placeholder 4121 OLD KINGS ROAD N
21 days
Active With Contract
Lots/Land
$460,000
0 room(s)
4121 OLD KINGS ROAD N
53 COCHISE COURT placeholder 53 COCHISE COURT
-$15K (2025/11/10)
Active With Contract
House
$419,900
4 bds 3 ba 1,996 sqft
53 COCHISE COURT
82 COCHISE COURT placeholder 82 COCHISE COURT
28 days
Active With Contract
House
$700,000
4 bds 2 ba 2,088 sqft
82 COCHISE COURT
17 FERNGATE LANE placeholder 17 FERNGATE LANE
28 days
Active With Contract
House
$449,900
4 bds 3 ba 2,306 sqft
17 FERNGATE LANE
5 CAYUGA COURT placeholder 5 CAYUGA COURT
-$5K (2025/11/24)
Active With Contract
House
$645,000
4 bds 2 ba 2,338 sqft
5 CAYUGA COURT
51 COMANCHE COURT placeholder 51 COMANCHE COURT
49 days
Active With Contract
House
$638,499
4 bds 3 ba 2,916 sqft
51 COMANCHE COURT

The multiple listing information is provided by the Stellar MLS from a copyrighted compilation of listings. The compilation of listings and each individual listing are ©2025-present Stellar MLS. All Rights Reserved. The information provided is for consumers' personal, noncommercial use and may not be used for any purpose other than to identify prospective properties consumers may be interested in purchasing. All properties are subject to prior sale or withdrawal. All information provided is deemed reliable but is not guaranteed accurate, and should be independently verified. Listing courtesy of: COLDWELL BANKER PREMIER