Contact
Tell us about your needs

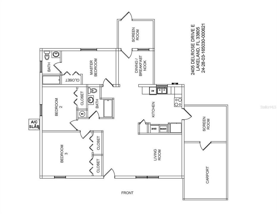
2405 DELROSE DRIVE E

House For Sale
$289,950

BTC: 9.66500000

ETH: 144.97500000

-$10K (2025/11/25)
35 days
3 bds
2 ba
1,360 sqft
Est. Estimated sales range: $0 - $0
$0

Overview

Welcome to this newly renovated 3-bedroom, 2-bathroom home in the heart of Lakeland! This move-in ready property combines modern upgrades with everyday comfort, with neutral finishes ready to make the space your own! Inside, you’ll find all-new flooring throughout — luxury vinyl plank in the main living areas, cozy carpet in the bedrooms, and tile in the bathrooms. The brand-new kitchen features stainless steel appliances, new cabinetry, quartz countertops, and a pantry, making it both updated and functional. Both bathrooms have been tastefully updated with new vanities, quartz countertops, and contemporary gray subway tile showers for a fresh look. This home features a brand-new electric water heater, a newer roof (2022), and a newer A/C (2020). Enjoy the outdoors comfortably from your screened-in front and back porches, perfect for relaxing or spending time with friends and family. The fully fenced backyard provides a safe space to work and play, along with a detached shed for extra storage or workshop needs. Inside, you’ll also find a laundry room and an additional space ideal for a home office. This newly updated home offers the perfect blend of comfort, style, and space. Don’t miss your chance to make this property your new home — schedule your showing today!

Location

Facts and features

Type:
Residential
Parking:
No Data
Year Built:
1981
Lot:
0.23 Acres
Heating:
Central
Price/sqft:
$213
Cooling:
Central Air / Wall/Window Unit(s)
HOA:
No Data
All facts and features
  • Flooring

    • Carpet

    • Luxury Vinyl

    • Tile

    Heating

    • Central

    Cooling

    • Central Air

    • Wall/Window Unit(s)

    Appliances

    • Dishwasher

    • Electric Water Heater

    • Microwave

    • Range

    • Refrigerator

    Other interior features

    • Ceiling Fan(s)

    • Other

    • Solid Surface Counters

    Bedrooms and bathrooms

    • Bedrooms: 3

    • Full bathrooms: 2

  • Property

    • Levels: One

    • Exterior Features: Storage

    Lot

    • Lot: 0.23 Acres

    Other Property Information

    • Parcel Number: 242803165030000621

    • Zoning: R-1

  • Type and style

    • Property Type: Residential

    • Property Sub Type: Single Family Residence

  • Utility

    • Electricity Connected

    • Public

  • Other financial information

    • Annual tax amount: $1,363

  • Source details

    • MLS ID: L4956981

    Other facts

    • Construction Materials: Block

    • Foundation Details: Slab

    • Laundry Features: In Kitchen

    • Patio And Porch Features: Covered / Front Porch / Patio / Porch / Rear Porch / Screened

    • Direction Faces: West

    • Other Structures: Shed(s)

    • Living Area: 1360

    • Water Source: Public

    • Lot Size Dimensions: 67 x 149

    • Subdivision Name: WILSON ACRES PH 02

Similar Homes

744 OSPREY ROOST DRIVE placeholder 744 OSPREY ROOST DRIVE
1 days
For Sale
House
$345,000
4 bds 3 ba 2,174 sqft
744 OSPREY ROOST DRIVE
210 FIELDS ROAD placeholder 210 FIELDS ROAD
7 days
For Sale
Lots/Land
$224,900
0 room(s)
210 FIELDS ROAD
2615 ROXIE AVENUE placeholder 2615 ROXIE AVENUE
9 days
For Sale
House
$246,000
3 bds 2 ba 1,385 sqft
2615 ROXIE AVENUE
1403 FERN PLACE placeholder 1403 FERN PLACE
10 days
For Sale
House
$304,999
4 bds 1 ba 1,612 sqft
1403 FERN PLACE
2728 WILLISTON DRIVE placeholder 2728 WILLISTON DRIVE
11 days
For Sale
House
$279,900
3 bds 2 ba 1,374 sqft
2728 WILLISTON DRIVE
609 HICKORY LANE placeholder 609 HICKORY LANE
12 days
For Sale
House
$239,900
3 bds 1 ba 1,414 sqft
609 HICKORY LANE
2219 TENEROC TRAIL placeholder 2219 TENEROC TRAIL
14 days
For Sale
House
$258,989
3 bds 2 ba 1,270 sqft
2219 TENEROC TRAIL
2330 WYDINE DRIVE placeholder 2330 WYDINE DRIVE
14 days
For Sale
House
$220,000
3 bds 3 ba 1,573 sqft
2330 WYDINE DRIVE

The multiple listing information is provided by the Stellar MLS from a copyrighted compilation of listings. The compilation of listings and each individual listing are ©2025-present Stellar MLS. All Rights Reserved. The information provided is for consumers' personal, noncommercial use and may not be used for any purpose other than to identify prospective properties consumers may be interested in purchasing. All properties are subject to prior sale or withdrawal. All information provided is deemed reliable but is not guaranteed accurate, and should be independently verified. Listing courtesy of: PORCHLIGHT HOMES LLC