Contact
Tell us about your needs

320 STARR RIDGE DRIVE

House Active With Contract
$365,000

BTC: 12.16666667

ETH: 182.50000000

21 days
3 bds
2 ba
2,288 sqft
Est. Estimated sales range: $0 - $0
$0

Overview

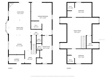
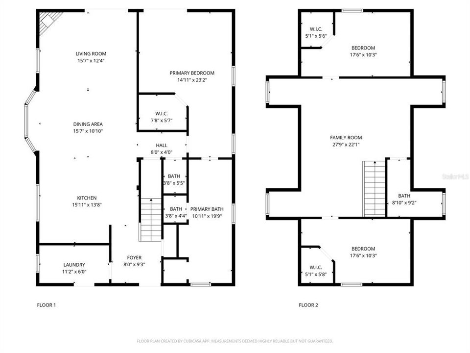
Under contract-accepting backup offers. Welcome to this spacious and well-kept 2-story home nestled in the desirable South Starr Hills community. Featuring 3 bedrooms, 2 full baths, and 2 half baths, this residence offers a thoughtfully designed open floor plan that seamlessly connects the kitchen, dining area, and living room—perfect for entertaining and everyday living. Upstairs, you'll find a generous family room, two bedrooms, and a full bath, providing ample space for relaxation or play. Above the garage, an air-conditioned bonus room offers flexible use as a home office, gym, guest suite, or creative studio. Recent upgrades include a brand-new HVAC system, new water heater, fresh interior paint, and updated window treatments. Additional features include a water softener and a screened-in back porch. This family-friendly home is located in a welcoming neighborhood with easy access to local dining, schools and shopping and the famous Bok Tower Gardens and Lake Starr. The versatile layout and modern updates make it move-in ready and full of potential.

Location

Facts and features

Type:
Residential
Parking:
No Data
Year Built:
1999
Lot:
0.84 Acres
Heating:
Central / Natural Gas
Price/sqft:
$160
Cooling:
Central Air
HOA:
No Data
All facts and features
  • Flooring

    • Parquet

    • Tile

    Heating

    • Central

    • Natural Gas

    Cooling

    • Central Air

    Appliances

    • Dishwasher

    • Disposal

    • Microwave

    • Range

    • Refrigerator

    • Water Softener

    Other interior features

    • Ceiling Fan(s)

    • Open Floorplan

    • Primary Bedroom Main Floor

    • Vaulted Ceiling(s)

    • Walk-In Closet(s)

    • Window Treatments

    Bedrooms and bathrooms

    • Bedrooms: 3

    • Bathrooms: 2

    • Full bathrooms: 2

  • Property

    • Levels: Two

    • Exterior Features: Irrigation System

    Lot

    • Lot: 0.84 Acres

    Other Property Information

    • Parcel Number: 272923868002000330

  • Type and style

    • Property Type: Residential

    • Property Sub Type: Single Family Residence

  • Utility

    • Electricity Connected

    • Natural Gas Connected

  • Other financial information

    • Annual tax amount: $2,327

  • Source details

    • MLS ID: L4956148

    Other facts

    • Construction Materials: Wood Frame / Wood Siding

    • Foundation Details: Other

    • Fireplace Features: Living Room

    • Laundry Features: Laundry Room

    • Patio And Porch Features: Rear Porch / Screened

    • Direction Faces: Northeast

    • Fireplace: Yes

    • Garage Spaces: 2

    • Attached Garage: Yes

    • Garage: Yes

    • Living Area: 2288

    • Water Source: Well

    • Subdivision Name: SOUTH STARR HILLS

Similar Homes

4609 BROOKSHIRE PLACE placeholder 4609 BROOKSHIRE PLACE
15 days
Active With Contract
House
$425,000
4 bds 2 ba 2,145 sqft
4609 BROOKSHIRE PLACE
815 OAK STREET placeholder 815 OAK STREET
17 days
Active With Contract
House
$350,000
4 bds 2 ba 1,560 sqft
815 OAK STREET
4146 DINNER LAKE WAY placeholder 4146 DINNER LAKE WAY
32 days
Active With Contract
House
$275,000
3 bds 2 ba 1,367 sqft
4146 DINNER LAKE WAY
809 WEDGEWOOD STREET placeholder 809 WEDGEWOOD STREET
-$11K (2025/11/01)
Active With Contract
House
$291,202
4 bds 2 ba 1,541 sqft
809 WEDGEWOOD STREET
4236 DINNER LAKE STREET placeholder 4236 DINNER LAKE STREET
60 days
Active With Contract
House
$389,900
5 bds 3 ba 2,901 sqft
4236 DINNER LAKE STREET
2117 EMMA LANE placeholder 2117 EMMA LANE
-$21K (2025/06/30)
Active With Contract
House
$264,900
3 bds 2 ba 1,266 sqft
2117 EMMA LANE
0 US-27 HIGHWAY placeholder 0 US-27 HIGHWAY
112 days
Active With Contract
Lots/Land
$300,000
0 room(s)
0 US-27 HIGHWAY
850 WEDGEWOOD STREET placeholder 850 WEDGEWOOD STREET
-$9K (2025/11/22)
Active With Contract
House
$296,317
4 bds 2 ba 1,541 sqft
850 WEDGEWOOD STREET

The multiple listing information is provided by the Stellar MLS from a copyrighted compilation of listings. The compilation of listings and each individual listing are ©2025-present Stellar MLS. All Rights Reserved. The information provided is for consumers' personal, noncommercial use and may not be used for any purpose other than to identify prospective properties consumers may be interested in purchasing. All properties are subject to prior sale or withdrawal. All information provided is deemed reliable but is not guaranteed accurate, and should be independently verified. Listing courtesy of: KELLER WILLIAMS REALTY SMART