Contact
Tell us about your needs

336 FERNHILL DRIVE

House For Sale
$369,990

BTC: 4.28477128

ETH: 126.44907724

-$19K (2025/12/18)
27 days
3 bds
2 ba
1,652 sqft
Est. Estimated sales range: $0 - $0
$0

Overview

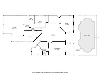
Welcoming golfers, tranquility seekers and/or families looking to be close to shopping, dining and grocery stores! 336 Fernhill Dr. is well-maintained 3 bedroom, 2 bath home is 1,652 sq ft of comfortable living space on an oversized 8,664 sq ft lot. and it comes complete with your own private screened-in pool w/ pool solar heating panels. Located in the sought after Debary Plantation, 336 Fernhill offers a combination of security, location and lifestyle. (FLOOR PLAN picture included in the listing for you convenience) The home features hardwood flooring throughout the main living areas, creating a warm and inviting atmosphere. The home has been recently updated with a new pool system, new lanai screens, and a new irrigation system. The floor plan features an open main living space, a closed off kitchen overlooking the pool area, and a private primary suite separated from the secondary bedrooms. The screened-in patio and pool area are the perfect outdoor retreat for relaxing or entertaining year-round. Located in the highly sought-after DeBary Plantation, residents enjoy a gated neighborhood with convenient access to local shops, Walmart, restaurants, and more. With easy access to major roadways, commuting and daily errands are effortless.

Location

Facts and features

Type:
Residential
Parking:
No Data
Year Built:
1995
Lot:
0.20 Acres
Heating:
Heat Pump
Price/sqft:
$224
Cooling:
Central Air
HOA:
$590
All facts and features
  • Flooring

    • Tile

    Heating

    • Heat Pump

    Cooling

    • Central Air

    Appliances

    • Dishwasher

    • Disposal

    • Refrigerator

    Other interior features

    • High Ceilings

    • Thermostat

    • Walk-In Closet(s)

    Bedrooms and bathrooms

    • Bedrooms: 3

    • Full bathrooms: 2

  • Property

    • Levels: One

    • Pool Private: Yes

    • Exterior Features: Irrigation System / Private Yard / Sidewalk

    Lot

    • Lot: 0.20 Acres

    Other Property Information

    • Parcel Number: 802205000010

    • Zoning: X

  • Type and style

    • Property Type: Residential

    • Property Sub Type: Single Family Residence

  • Utility

    • Other

  • Other financial information

    • HOA: $590

    • HOA Frequency: Annually

    • Annual tax amount: $5,063

  • Source details

    • MLS ID: O6363674

    Other facts

    • Construction Materials: Block

    • Foundation Details: Slab

    • Laundry Features: Electric Dryer Hookup / Washer Hookup

    • Lot Features: Corner Lot

    • Pool Features: In Ground

    • Direction Faces: South

    • Other Structures: Outdoor Kitchen

    • Garage Spaces: 2

    • Attached Garage: Yes

    • Garage: Yes

    • Living Area: 1652

    • Water Source: None

    • Lot Size Dimensions: 57 x 152

    • Subdivision Name: DEBARY PLANTATION UNIT 07A

Similar Homes

623 WOODFORD DRIVE placeholder 623 WOODFORD DRIVE
6 days
For Sale
House
$435,000
4 bds 3 ba 2,305 sqft
623 WOODFORD DRIVE
36 BASS LAKE DRIVE placeholder 36 BASS LAKE DRIVE
7 days
For Sale
House
$475,000
4 bds 2 ba 2,240 sqft
36 BASS LAKE DRIVE
439 FOXHILL DRIVE placeholder 439 FOXHILL DRIVE
9 days
For Sale
House
$410,000
3 bds 2 ba 1,901 sqft
439 FOXHILL DRIVE
675 S CEDAR AVENUE placeholder 675 S CEDAR AVENUE
12 days
For Sale
House
$365,000
3 bds 2 ba 1,600 sqft
675 S CEDAR AVENUE
480 CHESTNUT AVENUE placeholder 480 CHESTNUT AVENUE
-$5K (2025/12/24)
For Sale
House
$309,999
3 bds 2 ba 1,172 sqft
480 CHESTNUT AVENUE
1933 S VOLUSIA AVENUE placeholder 1933 S VOLUSIA AVENUE
+$30K (2025/12/18)
For Sale
Commercial
$425,000
0 room(s) 2,872 sqft
1933 S VOLUSIA AVENUE
390 FOXHILL DRIVE placeholder 390 FOXHILL DRIVE
14 days
For Sale
House
$375,000
3 bds 2 ba 1,688 sqft
390 FOXHILL DRIVE
250 SUNRISE BOULEVARD placeholder 250 SUNRISE BOULEVARD
+$20K (2025/12/18)
For Sale
House
$340,000
3 bds 2 ba 1,539 sqft
250 SUNRISE BOULEVARD

The multiple listing information is provided by the Stellar MLS from a copyrighted compilation of listings. The compilation of listings and each individual listing are ©2025-present Stellar MLS. All Rights Reserved. The information provided is for consumers' personal, noncommercial use and may not be used for any purpose other than to identify prospective properties consumers may be interested in purchasing. All properties are subject to prior sale or withdrawal. All information provided is deemed reliable but is not guaranteed accurate, and should be independently verified. Listing courtesy of: REALTY OF AMERICA