Contact
Tell us about your needs

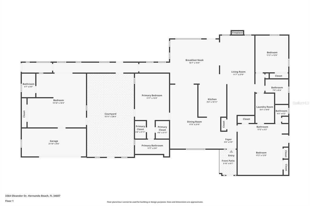
3364 OLEANDER DRIVE

House Active With Contract
$619,900

BTC: 20.66333333

ETH: 309.95000000

-$20K (2025/11/07)
60 days
Waterfront
3 bds
4 ba
2,090 sqft
Est. Estimated sales range: $0 - $0
$0

Overview

Under contract-accepting backup offers. One or more photo(s) has been virtually staged. This stunning 3 bedroom, 4 bathroom home is a true piece of paradise with so much to offer, starting with a double lot! Right when you walk in, you are greeted by a screened-in front atrium filled with tropical plants that set the tone for the rest of the home. To the right is a spacious area that can easily serve as a second primary-in-law suite complete with its own bathroom, laundry room, stunning floors, and private entrance. The primary suite also features an attached private courtyard, giving you the option for two primary suites or the perfect setup for a mother-in-law suite. The home features a formal living and dining room, along with a separate family room highlighted by a cozy wood-burning fireplace overlooking the canal. The kitchen is a showpiece with new cabinetry, Silestone countertops, and brand-new appliances including a refrigerator, dishwasher, and range. A skylight fills the space with natural light, making it warm and inviting. Step outside and the backyard feels like a resort. The pool and spa are surrounded by pavers, tropical landscaping, and palm trees. You will also find an avocado tree, a fig tree, several banana trees, and a bougainvillea draped over a charming swing tucked into the corner. Entertain effortlessly by the pool and spa or under the PVC gazebo (with electric). For boating enthusiasts, there is a private dock with railing, a floating dock extension, and a drive-up boat ramp, plus even a paddle boat to enjoy the water. There is also a built-in catio so your feline friends can join in on the fun. Additional upgrades include a newer AC (2024), two water heaters (2025), a tiled roof, and a brand-new pool pump. Washer and dryer are included. The backyard is fully fenced with 6-foot PVC fencing, offering both privacy and plenty of space for pets or a garden. A carport is included, and the garage has a full bathroom with a window AC unit. HUGE BONUS: this home comes with a transferable flood insurance policy ($2,511/year and can only go up 4% each year!) which is an extremely rare find in Hernando Beach. Also, NO HOA fees here! All room measurements are approximate and should be verified by Buyer.

Location

Facts and features

Type:
Residential
Parking:
Converted Garage / Golf Cart Parking
Year Built:
1985
Lot:
0.34 Acres
Heating:
Electric
Price/sqft:
$297
Cooling:
Central Air
HOA:
No Data
All facts and features
  • Flooring

    • Tile

    Heating

    • Electric

    Cooling

    • Central Air

    Appliances

    • Dishwasher

    • Dryer

    • Microwave

    • Range

    • Refrigerator

    • Washer

    Other interior features

    • Living Room/Dining Room Combo

    • Primary Bedroom Main Floor

    • Window Treatments

    Bedrooms and bathrooms

    • Bedrooms: 3

    • Full bathrooms: 4

  • Parking

    • Converted Garage

    • Golf Cart Parking

    Property

    • Levels: One

    • Pool Private: Yes

    • Exterior Features: Courtyard / Private Mailbox

    Lot

    • Lot: 0.34 Acres

    Other Property Information

    • Parcel Number: R1322316235010700080

    • Zoning: R1B

  • Type and style

    • Property Type: Residential

    • Property Sub Type: Single Family Residence

  • Utility

    • BB/HS Internet Available

    • Cable Available

    • Electricity Connected

    • Sewer Connected

    • Water Connected

  • Other financial information

    • Annual tax amount: $3,445

  • Source details

    • MLS ID: TB8430820

    Other facts

    • Construction Materials: Block

    • Foundation Details: Block

    • Fireplace Features: Family Room

    • Laundry Features: Inside / Laundry Room

    • Lot Features: Flood Insurance Required / FloodZone / Landscaped / Oversized Lot

    • Patio And Porch Features: Front Porch / Screened

    • Pool Features: Gunite

    • Window Features: Window Treatments

    • Direction Faces: West

    • Other Structures: Gazebo / Storage

    • Architectural Style: Mediterranean

    • Waterfront: Yes

    • Fireplace: Yes

    • Water Body Name: GULF OF AMERICA

    • Garage Spaces: 1

    • Attached Garage: Yes

    • Garage: Yes

    • Living Area: 2090

    • Water Source: Public

    • Subdivision Name: HERNANDO BEACH

Similar Homes

3351 FERNLEAF DRIVE placeholder 3351 FERNLEAF DRIVE
7 days
Active With Contract
House
$535,000
3 bds 2 ba 1,750 sqft
3351 FERNLEAF DRIVE
4396 5TH ISLE DRIVE placeholder 4396 5TH ISLE DRIVE
9 days
Active With Contract
House
$670,000
3 bds 2 ba 1,814 sqft
4396 5TH ISLE DRIVE
4137 DES PREZ COURT placeholder 4137 DES PREZ COURT
25 days
Active With Contract
House
$619,900
3 bds 2 ba 1,470 sqft
4137 DES PREZ COURT
3208 GULF WINDS CIRCLE placeholder 3208 GULF WINDS CIRCLE
69 days
Active With Contract
Lots/Land
$699,000
0 room(s)
3208 GULF WINDS CIRCLE
4446 BAHAMA DRIVE placeholder 4446 BAHAMA DRIVE
-$74K (2025/05/09)
Active With Contract
House
$625,000
3 bds 3 ba 1,193 sqft
4446 BAHAMA DRIVE
3215 ROSE ARBOR DRIVE placeholder 3215 ROSE ARBOR DRIVE
-$75K (2025/10/08)
Active With Contract
House
$499,999
4 bds 2 ba 1,534 sqft
3215 ROSE ARBOR DRIVE
3431 SHEEPHEAD DRIVE placeholder 3431 SHEEPHEAD DRIVE
-$110K (2025/10/30)
Active With Contract
House
$549,999
3 bds 2 ba 1,630 sqft
3431 SHEEPHEAD DRIVE

The multiple listing information is provided by the Stellar MLS from a copyrighted compilation of listings. The compilation of listings and each individual listing are ©2025-present Stellar MLS. All Rights Reserved. The information provided is for consumers' personal, noncommercial use and may not be used for any purpose other than to identify prospective properties consumers may be interested in purchasing. All properties are subject to prior sale or withdrawal. All information provided is deemed reliable but is not guaranteed accurate, and should be independently verified. Listing courtesy of: SELECT PROPERTIES INC