Contact
Tell us about your needs

3609 Washington Rd, West Palm Beach FL 33405

House For Sale
$2,500,000

BTC: 28.78526195

ETH: 1,250.00000000

242 days
5 bds
5 ba
Est. Estimated sales range: $0 - $0
$0

Overview

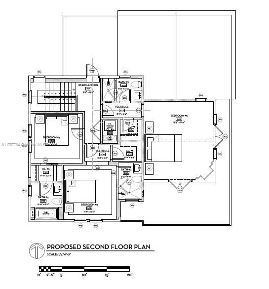
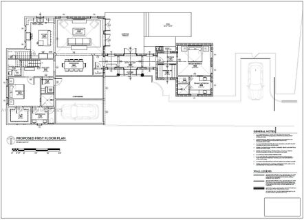
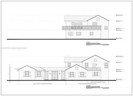
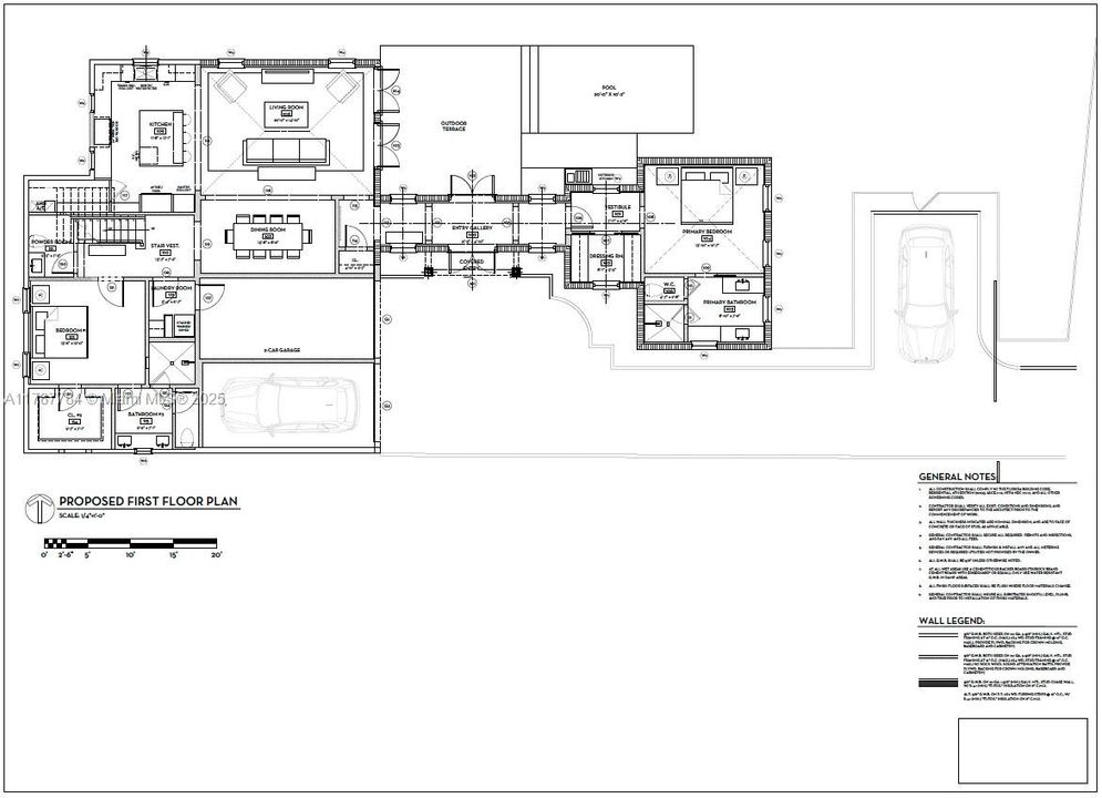
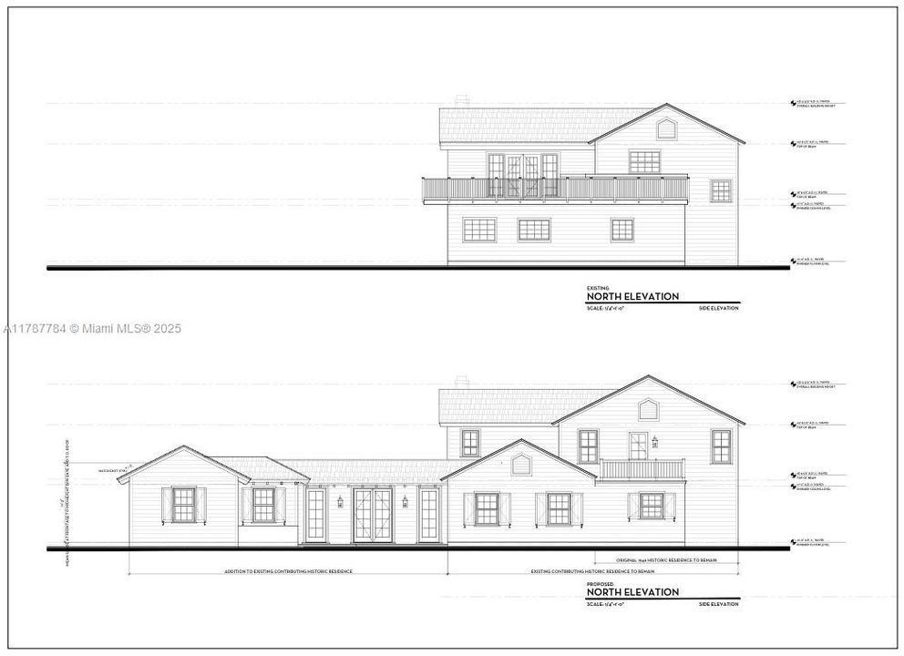
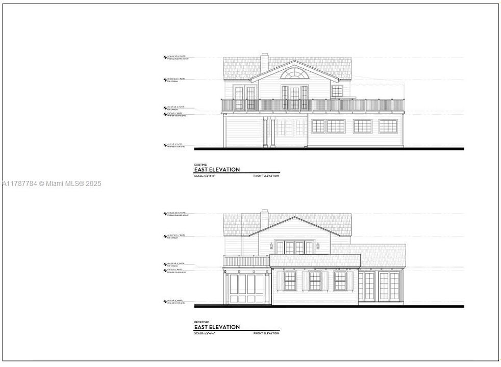
Situated in the sought-after Southland Park Historic District of West Palm Beach, this property offers an outstanding opportunity for developers or end users. Just steps from the Intracoastal Waterway, it comes with fully approved architectural plans for a luxury 5 Bed 5 1/2 Bathroom 3700 sqft +/- two-story residence with water views from the upper level. Surrounded by historic homes and palm-lined streets, this site blends timeless neighborhood charm with approved architectural plans for your convenience. Whether creating a dream home or developing a premium asset, this is a rare opportunity in a prestigious coastal enclave.

Location

Facts and features

Type:
Residential
Parking:
Attached Carport / Driveway
Year Built:
1946
Lot:
7229 Square Feet
Heating:
Other
Price/sqft:
No Data
Cooling:
Other
HOA:
No Data
All facts and features
  • Flooring

    • Other

    Heating

    • Other

    Cooling

    • Other

    Other interior features

    • First Floor Entry

    • Other

    Bedrooms and bathrooms

    • Bedrooms: 5

    • Bathrooms: 1

    • Full bathrooms: 5

  • Parking

    • Attached Carport

    • Driveway

    Lot

    • Lot: 7229 Square Feet

    Other Property Information

    • Parcel Number: 74434334090100040

    • Zoning: SF14 (ci

  • Type and style

    • Property Type: Residential

    • Property Sub Type: Single Family Residence

  • Other financial information

    • Annual tax amount: $21,294

  • Source details

    • MLS ID: A11787784

    Other facts

    • Construction Materials: Concrete Block Construction

    • Lot Features: 1/4 To Less Than 1/2 Acre Lot

    • Patio And Porch Features: Awning(s)

    • Direction Faces: East

    • Architectural Style: Detached / Two Story

    • Garage Spaces: 2

    • Attached Garage: Yes

    • Garage: Yes

    • Water Source: Municipal Water

    • Subdivision Name: SOUTHLAND PARK

Similar Homes

2607 Holy Cross Ln, Lake Worth FL 33460 placeholder 2607 Holy Cross Ln, Lake Worth FL 33460
-$36K (2025/12/19)
For Sale
House
$1,960,000
5 bds 4 ba 3,049 sqft
2607 Holy Cross Ln, Lake Worth FL 33460
348 Plymouth, West Palm Beach, FL 33405 placeholder 348 Plymouth, West Palm Beach, FL 33405
5 days
For Sale
House
$2,250,000
3 bds 3 ba 1,918 sqft
348 Plymouth, West Palm Beach, FL 33405
389 Lake, Palm Beach, FL 33480 placeholder 389 Lake, Palm Beach, FL 33480
5 days
For Sale
Condo/Co-op
$1,800,000
2 bds 2 ba 1,760 sqft
389 Lake, Palm Beach, FL 33480
306 Plymouth Rd, West Palm Beach FL 33405 placeholder 306 Plymouth Rd, West Palm Beach FL 33405
11 days
For Sale
House
$3,000,000
5 bds 5 ba 2,884 sqft
306 Plymouth Rd, West Palm Beach FL 33405
770 N, West Palm Beach, FL 33401 placeholder 770 N, West Palm Beach, FL 33401
11 days
For Sale
Townhouse
$2,100,000
3 bds 3 ba 2,401 sqft
770 N, West Palm Beach, FL 33401
330 Laurie, West Palm Beach, FL 33405 placeholder 330 Laurie, West Palm Beach, FL 33405
12 days
For Sale
House
$2,275,000
4 bds 3 ba 2,473 sqft
330 Laurie, West Palm Beach, FL 33405
354 Marlborough, West Palm Beach, FL 33405 placeholder 354 Marlborough, West Palm Beach, FL 33405
12 days
For Sale
House
$1,995,000
5 bds 3 ba 2,503 sqft
354 Marlborough, West Palm Beach, FL 33405
2100 Ocean, Palm Beach, FL 33480 placeholder 2100 Ocean, Palm Beach, FL 33480
12 days
For Sale
Condo/Co-op
$2,995,000
3 bds 3 ba 3,136 sqft
2100 Ocean, Palm Beach, FL 33480

The multiple listing information is provided by the Miami Association of REALTORS® from a copyrighted compilation of listings. The compilation of listings and each individual listing are ©2025-present Miami Association of REALTORS®. All Rights Reserved. The information provided is for consumers' personal, noncommercial use and may not be used for any purpose other than to identify prospective properties consumers may be interested in purchasing. All properties are subject to prior sale or withdrawal. All information provided is deemed reliable but is not guaranteed accurate, and should be independently verified. Listing courtesy of: Serhant