Contact
Tell us about your needs

3851 HORIZON HILL DRIVE

House Active With Contract
$290,000

BTC: 9.66666667

ETH: 145.00000000

8 days
3 bds
2 ba
1,432 sqft
Est. Estimated sales range: $0 - $0
$0

Overview

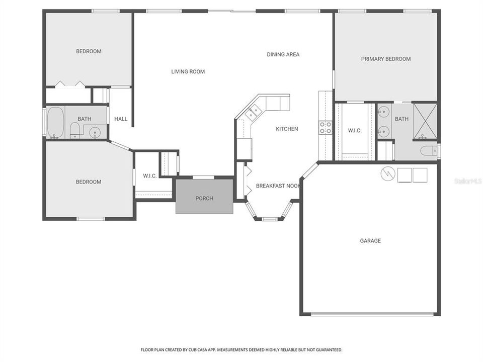
Under contract-accepting backup offers. **MULTIPLE OFFERS. PLEASE SUBMIT HIGHEST AND BEST BY TUESDAY, OCTOBER 14TH BY 5PM.** This meticulously maintained one-owner home, built by Highland Homes in 2003, features the popular Lindsey floor plan offering 1,436 square feet of living area, a 433-square-foot garage, and a 41-square-foot entryway. This thoughtfully designed three-bedroom, two-bathroom split-bedroom layout provides comfort, efficiency, and timeless appeal in desirable South Lakeland. Step through the front door into a welcoming foyer that opens into a spacious living room with vaulted ceilings and abundant natural light from multiple windows. The kitchen overlooks the living area and includes ample cabinet space, a double-door pantry, and an adjacent dining area — perfect for gatherings or everyday living. The primary suite, located on the right side of the home for privacy, features a walk-in closet and an ensuite bath with a tiled step-in shower, linen closet, and vanity. On the opposite side of the home, two comfortable bedrooms share a hallway bathroom, making this an ideal floorplan for families or guests. Recent upgrades enhance the home’s value and efficiency. A brand-new roof was installed in June 2018 by Bob & Jerry’s Roofing, Inc., featuring Timberline HD GAF shingles (Warranty No. 1664430). The garage door springs were replaced in November 2020 by Overhead Door Company of Polk County. In October 2025, Polk County Window & Door installed premium vinyl windows and French doors along the back wall, crafted with Simonton Windows and Door materials, offering both durability and energy efficiency. This home also comes with a solid maintenance history: Septic system last pumped by Ray Thompson Septic on February 16, 2022. Pest control managed by trusted local providers, with Bio-Tech Termite & Pest Control performing the last WDO inspection on October 21, 2019, and routine pest services completed by Futch Pest Control on July 17, 2023, July 10, 2024, and January 14, 2025. Boundary survey on hand (dated May 15, 2003) included with documentation. Enjoy the spacious backyard, accessible through the new French doors from the living room, creating an effortless indoor-outdoor connection perfect for entertaining or relaxing. Conveniently located near 540A, South Lakeland schools, dining, shopping, and easy access to both the Polk Parkway and Bartow Highway/98S, this home truly offers the best of location, quality, and care. Schedule your private showing today to experience this beautifully maintained South Lakeland gem built by Highland Homes!

Location

Facts and features

Type:
Residential
Parking:
No Data
Year Built:
2003
Lot:
0.23 Acres
Heating:
Central
Price/sqft:
$203
Cooling:
Central Air
HOA:
$205
All facts and features
  • Flooring

    • Carpet

    • Tile

    Heating

    • Central

    Cooling

    • Central Air

    Appliances

    • Dishwasher

    • Range

    • Refrigerator

    Other interior features

    • Ceiling Fan(s)

    • Eating Space In Kitchen

    • Split Bedroom

    • Thermostat

    • Vaulted Ceiling(s)

    • Walk-In Closet(s)

    Bedrooms and bathrooms

    • Bedrooms: 3

    • Full bathrooms: 2

  • Property

    • Levels: One

    • Exterior Features: Lighting / Sliding Doors

    Lot

    • Lot: 0.23 Acres

    Other Property Information

    • Parcel Number: 242923288031000090

  • Type and style

    • Property Type: Residential

    • Property Sub Type: Single Family Residence

  • Utility

    • Water Available

    • Water Connected

  • Other financial information

    • HOA: $205

    • HOA Frequency: Annually

    • Annual tax amount: $689

  • Source details

    • MLS ID: L4956218

    Other facts

    • Construction Materials: Block / Stucco

    • Foundation Details: Slab

    • Laundry Features: In Garage

    • Direction Faces: North

    • Garage Spaces: 2

    • Attached Garage: Yes

    • Garage: Yes

    • Living Area: 1432

    • Water Source: Public

    • Subdivision Name: HIGHLANDS AT CREWS LAKE ADD

Similar Homes

570 LUCILE STREET placeholder 570 LUCILE STREET
6 days
Active With Contract
House
$219,900
3 bds 1 ba 888 sqft
570 LUCILE STREET
6322 GEORGIA AVENUE placeholder 6322 GEORGIA AVENUE
25 days
Active With Contract
House
$210,000
3 bds 1 ba 810 sqft
6322 GEORGIA AVENUE
3174 VALLEY VISTA CIRCLE placeholder 3174 VALLEY VISTA CIRCLE
25 days
Active With Contract
House
$344,000
3 bds 2 ba 1,679 sqft
3174 VALLEY VISTA CIRCLE
3701 DIVING DOVE LANE placeholder 3701 DIVING DOVE LANE
-$5K (2025/11/22)
Active With Contract
House
$309,900
4 bds 2 ba 1,936 sqft
3701 DIVING DOVE LANE
2220 ALBATROSS NEST DRIVE placeholder 2220 ALBATROSS NEST DRIVE
-$2K (2025/06/27)
Active With Contract
House
$321,990
4 bds 2 ba 1,828 sqft
2220 ALBATROSS NEST DRIVE
3612 DIVING DOVE LANE placeholder 3612 DIVING DOVE LANE
-$2K (2025/11/08)
Active With Contract
House
$297,000
3 bds 2 ba 1,671 sqft
3612 DIVING DOVE LANE
2208 ALBATROSS NEST DRIVE placeholder 2208 ALBATROSS NEST DRIVE
-$2K (2025/06/27)
Active With Contract
House
$341,990
5 bds 3 ba 2,077 sqft
2208 ALBATROSS NEST DRIVE
4157 SUNNY VIEW DRIVE placeholder 4157 SUNNY VIEW DRIVE
35 days
Active With Contract
House
$300,000
3 bds 2 ba 1,324 sqft
4157 SUNNY VIEW DRIVE

The multiple listing information is provided by the Stellar MLS from a copyrighted compilation of listings. The compilation of listings and each individual listing are ©2025-present Stellar MLS. All Rights Reserved. The information provided is for consumers' personal, noncommercial use and may not be used for any purpose other than to identify prospective properties consumers may be interested in purchasing. All properties are subject to prior sale or withdrawal. All information provided is deemed reliable but is not guaranteed accurate, and should be independently verified. Listing courtesy of: BHHS FLORIDA PROPERTIES GROUP