Contact
Tell us about your needs

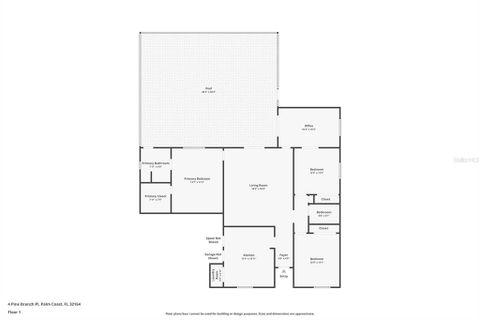
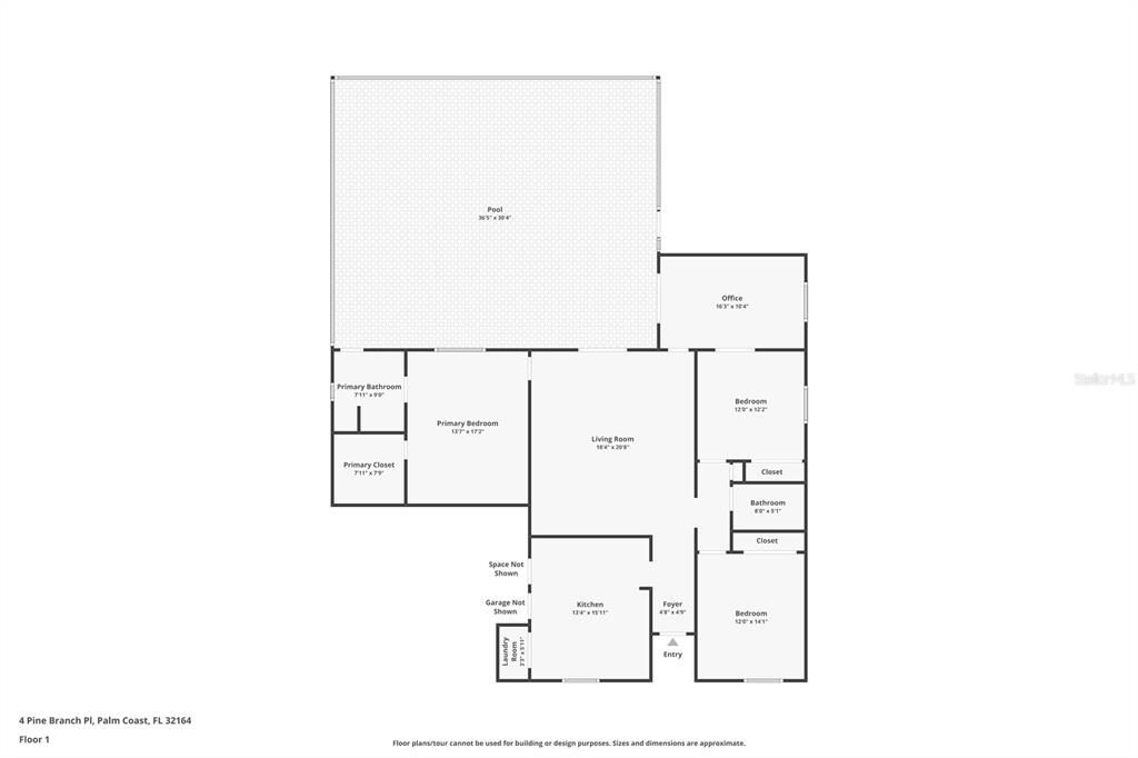
4 PINE BRANCH PLACE

House Active With Contract
$360,000

BTC: 3.95604396

ETH: 180.00000000

1 days
3 bds
2 ba
1,867 sqft
Est. Estimated sales range: $0 - $0
$0

Overview

Under contract-accepting backup offers. Welcome to 4 Pine Branch Place — a beautifully maintained screened-in pool home tucked away on a quiet cul-de-sac in one of Palm Coast’s most desirable neighborhoods. This inviting 3-bedroom, 2-bath residence also features a spacious den/office, offering the perfect flex space for work, hobbies, or an additional living area. Both the den and great room include sliders that open directly to the oversized screened pool, creating effortless indoor-outdoor living. Step inside to a light and open floorplan with a large family room and dedicated dining area, perfect for gatherings and everyday comfort. The cheerful eat-in kitchen features abundant upper cabinetry with stained-glass accents and plenty of counter space for prep and storage. The home offers a mix of beautiful laminate wood flooring, tile in the kitchen and bathrooms, and carpeted bedrooms for comfort and function. A new roof (2021) provides peace of mind. Out back, enjoy your covered rear porch overlooking the sparkling screened pool, surrounded by lush, mature landscaping that creates a private, park-like setting. This serene outdoor space is ideal for relaxing, entertaining, or enjoying the Florida lifestyle year-round. Located close to schools and conveniently positioned between both main shopping hubs in Palm Coast, all while being nestled on a peaceful culdesac street. Schedule a showing today!

Location

Facts and features

Type:
Residential
Parking:
Garage Door Opener / Oversized
Year Built:
2004
Lot:
0.23 Acres
Heating:
Central
Price/sqft:
$193
Cooling:
Central Air
HOA:
No Data
All facts and features
  • Flooring

    • Carpet

    • Laminate

    • Hardwood

    Heating

    • Central

    Cooling

    • Central Air

    Appliances

    • Dishwasher

    • Disposal

    • Dryer

    • Electric Water Heater

    • Range

    • Refrigerator

    • Washer

    Other interior features

    • Primary Bedroom Main Floor

    • Split Bedroom

    • Vaulted Ceiling(s)

    Bedrooms and bathrooms

    • Bedrooms: 3

    • Full bathrooms: 2

  • Parking

    • Garage Door Opener

    • Oversized

    Property

    • Levels: One

    • Pool Private: Yes

    • Exterior Features: Irrigation System / Rain Gutters / Sliding Doors

    Lot

    • Lot: 0.23 Acres

    Other Property Information

    • Parcel Number: 0711317026005100100

    • Zoning: SFR

  • Type and style

    • Property Type: Residential

    • Property Sub Type: Single Family Residence

  • Utility

    • BB/HS Internet Available

    • Cable Available

    • Cable Connected

    • Electricity Connected

    • Public

    • Sewer Connected

    • Sprinkler Well

    • Water Connected

  • Other financial information

    • Annual tax amount: $5,174

  • Source details

    • MLS ID: FC314676

    Other facts

    • Construction Materials: Block

    • Foundation Details: Slab

    • Laundry Features: In Kitchen / Laundry Closet

    • Patio And Porch Features: Rear Porch / Screened

    • Pool Features: Heated / In Ground / Screen Enclosure

    • Window Features: Blinds

    • Direction Faces: East

    • Other Structures: Other / Storage

    • Architectural Style: Ranch

    • Garage Spaces: 2

    • Attached Garage: Yes

    • Garage: Yes

    • Living Area: 1867

    • Water Source: Public

    • Lot Size Dimensions: 80 x 125

    • Subdivision Name: PALM COAST SEC 26

Similar Homes

24 RYMSHAW DRIVE placeholder 24 RYMSHAW DRIVE
5 days
Active With Contract
House
$309,000
4 bds 2 ba 2,255 sqft
24 RYMSHAW DRIVE
10 ESSINGTON LANE placeholder 10 ESSINGTON LANE
5 days
Active With Contract
House
$360,000
3 bds 3 ba 2,138 sqft
10 ESSINGTON LANE
19 PINE CREST LANE placeholder 19 PINE CREST LANE
8 days
Active With Contract
House
$319,990
3 bds 2 ba 1,588 sqft
19 PINE CREST LANE
160 CYPRESS POINT PARKWAY UNIT D101 placeholder 160 CYPRESS POINT PARKWAY UNIT D101
10 days
Active With Contract
Commercial
$435,000
0 room(s) 1,925 sqft
160 CYPRESS POINT PARKWAY UNIT D101
12 PRITCHARD DRIVE placeholder 12 PRITCHARD DRIVE
11 days
Active With Contract
House
$399,900
4 bds 2 ba 2,884 sqft
12 PRITCHARD DRIVE
18 E DIAMOND DRIVE placeholder 18 E DIAMOND DRIVE
11 days
Active With Contract
House
$390,000
3 bds 2 ba 1,894 sqft
18 E DIAMOND DRIVE
11 ERIC DRIVE placeholder 11 ERIC DRIVE
12 days
Active With Contract
House
$339,000
3 bds 2 ba 1,721 sqft
11 ERIC DRIVE
1 PARKWAY DRIVE placeholder 1 PARKWAY DRIVE
14 days
Active With Contract
House
$359,900
3 bds 2 ba 1,958 sqft
1 PARKWAY DRIVE

The multiple listing information is provided by the Stellar MLS from a copyrighted compilation of listings. The compilation of listings and each individual listing are ©2025-present Stellar MLS. All Rights Reserved. The information provided is for consumers' personal, noncommercial use and may not be used for any purpose other than to identify prospective properties consumers may be interested in purchasing. All properties are subject to prior sale or withdrawal. All information provided is deemed reliable but is not guaranteed accurate, and should be independently verified. Listing courtesy of: KEY REALTY OF FLAGLER COUNTY