Contact
Tell us about your needs

4272 LA SALLE AVENUE

House For Sale
$744,999

BTC: 8.62766647

ETH: 254.61346548

-$5K (2025/10/02)
140 days
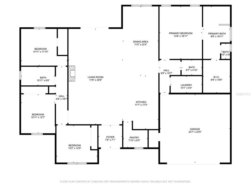
4 bds
2 ba
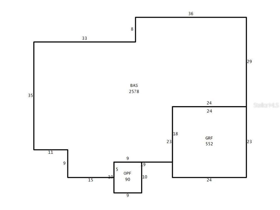
2,582 sqft
Est. Estimated sales range: $0 - $0
$0

Overview

Looking for an almost brand new home on acreage with NO HOA? Look no further! This custom-built 4 bedroom, 2.5 bathroom home offers 2,582 sq. ft. of thoughtfully designed living space, perfect for a growing family. The gourmet kitchen is a showstopper, featuring a butler’s pantry, quartz countertops, center island, farmhouse sink, pull-out garbage cabinet, designer backsplash, chimney-style range hood, built-in oven & microwave, and a breakfast bar. The spacious great room boasts built-in cabinets, custom counters, and an electric fireplace—perfect for cozy evenings. The luxurious master suite includes a tray ceiling, oversized walk-in closet, hardwood floors, a soaker tub, separate shower, dual vanities, and linen cabinets. Additional upgrades include: • 5 ¼” baseboards & crown molding • Ceiling fans throughout • Double-pane insulated windows • Rain gutters & 3-panel sliding glass pocket door • Motion detectors, water softener, & soft-close cabinetry • Bluetooth speakers in all bathrooms • TV hookup on the back patio This home is built with concrete block, gable board, and Hardie board siding for long-lasting durability. Hardwood floors flow throughout the home, with carpet in three bedrooms. Lot dimensions are approximately 110’ x 593’ x 110’ x 597’, offering plenty of space for outdoor enjoyment.

Location

Facts and features

Type:
Residential
Parking:
Driveway / Garage Door Opener
Year Built:
2023
Lot:
1.54 Acres
Heating:
Heat Pump
Price/sqft:
$289
Cooling:
Central Air
HOA:
No Data
All facts and features
  • Flooring

    • Carpet

    • Engineered Hardwood

    Heating

    • Heat Pump

    Cooling

    • Central Air

    Appliances

    • Built-In Oven

    • Convection Oven

    • Cooktop

    • Dishwasher

    • Disposal

    • Electric Water Heater

    • Microwave

    • Range

    • Refrigerator

    • Water Softener

    Other interior features

    • Built-in Features

    • Ceiling Fan(s)

    • High Ceilings

    • Open Floorplan

    • Solid Surface Counters

    • Split Bedroom

    • Stone Counters

    • Thermostat

    • Tray Ceiling(s)

    • Walk-In Closet(s)

    Bedrooms and bathrooms

    • Bedrooms: 4

    • Bathrooms: 1

    • Full bathrooms: 2

  • Parking

    • Driveway

    • Garage Door Opener

    Property

    • Levels: One

    • Exterior Features: French Doors / Rain Gutters / Sliding Doors

    Lot

    • Lot: 1.54 Acres

    Other Property Information

    • Parcel Number: 062731495000010894

    • Zoning: LDR

  • Type and style

    • Property Type: Residential

    • Property Sub Type: Single Family Residence

  • Utility

    • BB/HS Internet Available

    • Cable Available

    • Cable Connected

    • Electricity Connected

    • Phone Available

  • Other financial information

    • Annual tax amount: $631

  • Source details

    • MLS ID: V4944248

    Other facts

    • Construction Materials: Block

    • Foundation Details: Slab

    • Fireplace Features: Electric

    • Laundry Features: Inside / Laundry Room

    • Lot Features: In County / Oversized Lot

    • Patio And Porch Features: Patio

    • Direction Faces: East

    • Architectural Style: Craftsman

    • Fireplace: Yes

    • Garage Spaces: 2

    • Attached Garage: Yes

    • Garage: Yes

    • Living Area: 2582

    • Water Source: Well

    • Subdivision Name: S L & I C

Similar Homes

3622 CAPE COURT placeholder 3622 CAPE COURT
6 days
For Sale
House
$529,000
5 bds 3 ba 3,316 sqft
3622 CAPE COURT
3659 MALAWI TRAIL placeholder 3659 MALAWI TRAIL
24 days
For Sale
House
$847,071
4 bds 3 ba 2,745 sqft
3659 MALAWI TRAIL
5460 BOUTIN LANE placeholder 5460 BOUTIN LANE
37 days
For Sale
House
$649,900
4 bds 2 ba 2,276 sqft
5460 BOUTIN LANE
3430 WESTSHORE DRIVE placeholder 3430 WESTSHORE DRIVE
43 days
For Sale
House
$695,000
3 bds 2 ba 1,967 sqft
3430 WESTSHORE DRIVE
3667 MALAWI TRAIL placeholder 3667 MALAWI TRAIL
+$845 (2025/12/16)
For Sale
House
$894,076
5 bds 3 ba 2,929 sqft
3667 MALAWI TRAIL
3273 WAUSEON DRIVE placeholder 3273 WAUSEON DRIVE
-$10K (2025/11/19)
For Sale
House
$665,000
5 bds 3 ba 3,854 sqft
3273 WAUSEON DRIVE
3675 MALAWI TRL placeholder 3675 MALAWI TRL
-$596 (2025/12/16)
For Sale
House
$900,200
5 bds 3 ba 2,929 sqft
3675 MALAWI TRL
3683 MALAWI TRAIL placeholder 3683 MALAWI TRAIL
-$23K (2025/12/11)
For Sale
House
$849,990
4 bds 3 ba 2,745 sqft
3683 MALAWI TRAIL

The multiple listing information is provided by the Stellar MLS from a copyrighted compilation of listings. The compilation of listings and each individual listing are ©2025-present Stellar MLS. All Rights Reserved. The information provided is for consumers' personal, noncommercial use and may not be used for any purpose other than to identify prospective properties consumers may be interested in purchasing. All properties are subject to prior sale or withdrawal. All information provided is deemed reliable but is not guaranteed accurate, and should be independently verified. Listing courtesy of: WATSON REALTY CORP