Contact
Tell us about your needs

4840 HERTON DRIVE

House For Sale
$439,000

BTC: 14.63333333

ETH: 219.50000000

-$20K (2025/10/24)
142 days
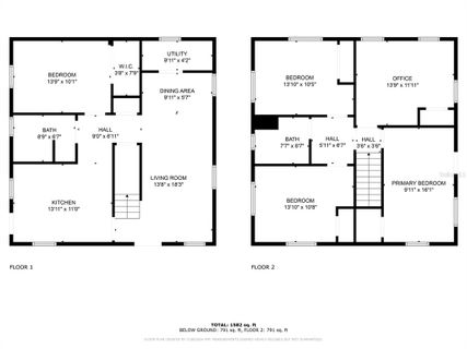
4 bds
2 ba
1,800 sqft
Est. Estimated sales range: $0 - $0
$0

Overview

Welcome to 4840 Herton Drive – Your Move-In Ready Pool Home in the Heart of Mandarin! This beautifully updated 3-bedroom, 2-bathroom home perfectly combines modern upgrades, timeless charm, and resort-style outdoor living. Step inside to a bright, open layout featuring fresh interior and exterior paint and a brand-new roof, giving you total peace of mind and a truly move-in-ready experience. The upgraded kitchen is a chef’s delight, complete with stainless steel appliances and ample cabinet space for easy entertaining. Each room is thoughtfully designed, offering comfort, functionality, and plenty of natural light throughout. Step outside and enjoy your own private backyard oasis—featuring an in-ground pool, spacious patio area, and lush surroundings perfect for summer days, weekend BBQs, or simply unwinding under the Florida sun. Nestled in a quiet, established neighborhood with convenient access to top-rated schools, shopping, dining, and major highways, this Mandarin gem offers the perfect blend of location, lifestyle, and comfort. Don’t miss your chance to own this beautifully updated pool home—schedule your private tour today and start living the Florida dream!

Location

Facts and features

Type:
Residential
Parking:
No Data
Year Built:
1988
Lot:
0.52 Acres
Heating:
Heat Pump
Price/sqft:
$244
Cooling:
Central Air
HOA:
No Data
All facts and features
  • Flooring

    • Hardwood

    Heating

    • Heat Pump

    Cooling

    • Central Air

    Appliances

    • Dishwasher

    • Electric Water Heater

    • Microwave

    • Range

    • Refrigerator

    Other interior features

    • Ceiling Fan(s)

    • Other

    Bedrooms and bathrooms

    • Bedrooms: 4

    • Full bathrooms: 2

  • Property

    • Levels: Two

    • Pool Private: Yes

    • Exterior Features: Other / Sidewalk

    Lot

    • Lot: 0.52 Acres

    Other Property Information

    • Parcel Number: 1574070000

    • Zoning: RR-ACRE

  • Type and style

    • Property Type: Residential

    • Property Sub Type: Single Family Residence

  • Utility

    • Electricity Connected

    • Sewer Connected

    • Water Connected

  • Other financial information

    • Annual tax amount: $5,626

  • Source details

    • MLS ID: TB8406988

    Other facts

    • Construction Materials: Other

    • Foundation Details: Other

    • Laundry Features: Laundry Room

    • Pool Features: Other

    • Direction Faces: North

    • Architectural Style: Contemporary

    • Living Area: 1800

    • Water Source: Public

    • Subdivision Name: DEL RIO

Similar Homes

6116 CLEARSKY DRIVE placeholder 6116 CLEARSKY DRIVE
55 days
For Sale
Townhouse
$335,000
3 bds 2 ba 1,857 sqft
6116 CLEARSKY DRIVE
12494 ACOSTA OAKS DRIVE placeholder 12494 ACOSTA OAKS DRIVE
321 days
For Sale
House
$499,000
4 bds 2 ba 2,654 sqft
12494 ACOSTA OAKS DRIVE

The multiple listing information is provided by the Stellar MLS from a copyrighted compilation of listings. The compilation of listings and each individual listing are ©2025-present Stellar MLS. All Rights Reserved. The information provided is for consumers' personal, noncommercial use and may not be used for any purpose other than to identify prospective properties consumers may be interested in purchasing. All properties are subject to prior sale or withdrawal. All information provided is deemed reliable but is not guaranteed accurate, and should be independently verified. Listing courtesy of: NHR BROKERAGE LLC