Contact
Tell us about your needs

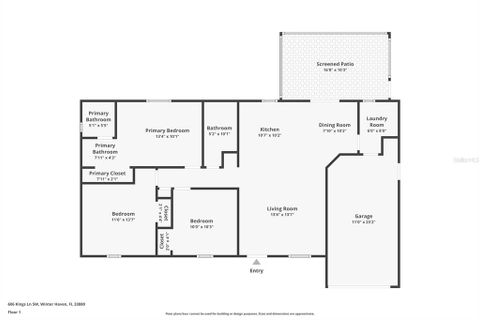
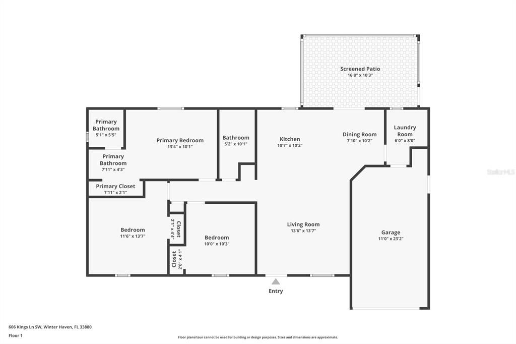
606 KINGS LANE SW

House Active With Contract
$265,000

BTC: 8.83333333

ETH: 132.50000000

7 days
3 bds
2 ba
1,067 sqft
Est. Estimated sales range: $0 - $0
$0

Overview

Under contract-accepting backup offers. Welcome Home! This beautifully FULLY remodeled 3-bedroom, 2-bath home with a 1-car garage sits on a spacious ¼-acre lot in a quiet neighborhood that ends in a cul-de-sac. Offering extra privacy and a true sense of peace. Every detail has been thoughtfully updated in 2025, making this home completely move-in ready! Enjoy peace of mind with a brand-new roof, new AC, new water heater, and new energy-efficient windows. Step inside to a stunning modern interior featuring all-new finishes, fixtures, and flooring throughout. The open layout provides a perfect flow for entertaining or relaxing, while the large backyard offers endless possibilities plenty of space to add a pool. Park your RV or trailer on the side yard, or simply enjoy the Florida sunshine. With no HOA, you’ll have the freedom to truly make this home your own. Conveniently located near shops, restaurants, and daily conveniences, this home combines comfort, privacy, and accessibility. Whether you’re a first-time homebuyer or looking for your forever home, this property checks all the boxes. Everything is new. Everything is move in ready. Schedule your private tour today — you’ve got to see this beauty for yourself!

Location

Facts and features

Type:
Residential
Parking:
Garage Door Opener / Golf Cart Garage
Year Built:
1987
Lot:
0.25 Acres
Heating:
Central / Electric
Price/sqft:
$248
Cooling:
Central Air
HOA:
No Data
All facts and features
  • Flooring

    • Laminate

    • Tile

    Heating

    • Central

    • Electric

    Cooling

    • Central Air

    Appliances

    • Disposal

    • Microwave

    • Range

    • Refrigerator

    Other interior features

    • Ceiling Fan(s)

    • Eating Space In Kitchen

    • Solid Surface Counters

    • Thermostat

    • Walk-In Closet(s)

    Bedrooms and bathrooms

    • Bedrooms: 3

    • Full bathrooms: 2

  • Parking

    • Garage Door Opener

    • Golf Cart Garage

    Property

    • Levels: One

    • Exterior Features: Private Mailbox / Sliding Doors

    Lot

    • Lot: 0.25 Acres

    Other Property Information

    • Parcel Number: 362825355253000290

    • Zoning: RM

  • Type and style

    • Property Type: Residential

    • Property Sub Type: Single Family Residence

  • Utility

    • BB/HS Internet Available

    • Cable Connected

    • Electricity Connected

    • Public

    • Sewer Connected

    • Water Connected

    Green energy

    • Windows

  • Other financial information

    • Annual tax amount: $2,675

  • Source details

    • MLS ID: TB8445938

    Other facts

    • Construction Materials: Block / Brick / Concrete

    • Foundation Details: Block

    • Laundry Features: Inside / Laundry Room

    • Lot Features: In County / Level / Oversized Lot

    • Patio And Porch Features: Rear Porch

    • Window Features: ENERGY STAR Qualified Windows

    • Direction Faces: North

    • Garage Spaces: 1

    • Attached Garage: Yes

    • Garage: Yes

    • Living Area: 1067

    • Water Source: Public

    • Subdivision Name: KINGS COURT

Similar Homes

2732 AVENUE S NW placeholder 2732 AVENUE S NW
2 days
Active With Contract
House
$339,999
3 bds 2 ba 1,924 sqft
2732 AVENUE S NW
135 BRAD CIRCLE placeholder 135 BRAD CIRCLE
5 days
Active With Contract
House
$275,000
3 bds 2 ba 1,215 sqft
135 BRAD CIRCLE
2512 ASHLEY WAY placeholder 2512 ASHLEY WAY
5 days
Active With Contract
House
$329,950
4 bds 2 ba 1,919 sqft
2512 ASHLEY WAY
2438 NE 5TH STREET NE placeholder 2438 NE 5TH STREET NE
6 days
Active With Contract
Multi-family
$325,000
6 bds 1,950 sqft
2438 NE 5TH STREET NE
3509 AVENUE U NW placeholder 3509 AVENUE U NW
6 days
Active With Contract
House
$220,000
3 bds 1 ba 1,020 sqft
3509 AVENUE U NW
2418 W CENTRAL AVENUE placeholder 2418 W CENTRAL AVENUE
10 days
Active With Contract
House
$255,000
3 bds 2 ba 1,249 sqft
2418 W CENTRAL AVENUE
319 AVENUE P NE placeholder 319 AVENUE P NE
13 days
Active With Contract
House
$215,000
3 bds 2 ba 1,190 sqft
319 AVENUE P NE
841 SUN RIDGE VILLAGE DRIVE placeholder 841 SUN RIDGE VILLAGE DRIVE
15 days
Active With Contract
House
$279,900
4 bds 2 ba 2,108 sqft
841 SUN RIDGE VILLAGE DRIVE

The multiple listing information is provided by the Stellar MLS from a copyrighted compilation of listings. The compilation of listings and each individual listing are ©2025-present Stellar MLS. All Rights Reserved. The information provided is for consumers' personal, noncommercial use and may not be used for any purpose other than to identify prospective properties consumers may be interested in purchasing. All properties are subject to prior sale or withdrawal. All information provided is deemed reliable but is not guaranteed accurate, and should be independently verified. Listing courtesy of: ENGEL & VOLKERS TAMPA DOWNTOWN