Contact
Tell us about your needs

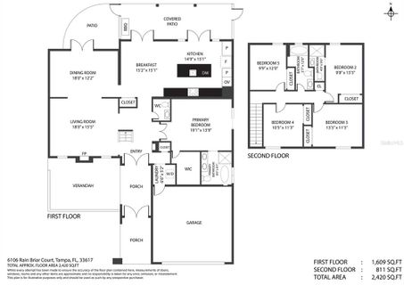
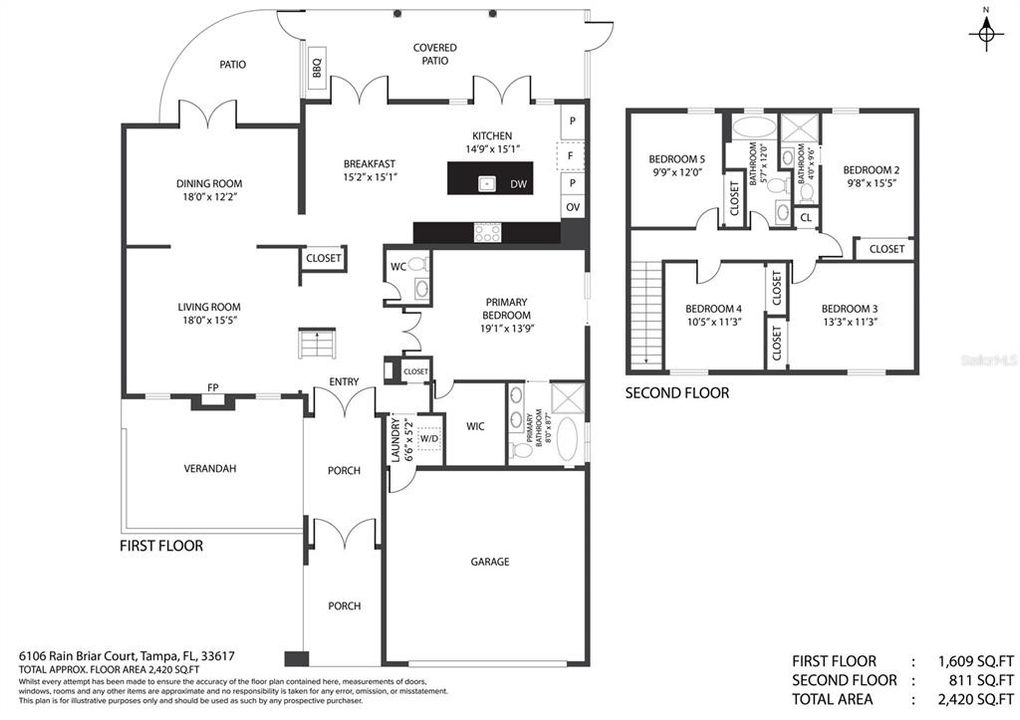
6106 RAIN BRIAR COURT

House Active With Contract
$624,000

BTC: 8.91428571

ETH: 303.64963504

-$76K (2025/11/21)
125 days
5 bds
3 ba
2,434 sqft
Est. Estimated sales range: $0 - $0
$0

Overview

Under contract-accepting backup offers. POOL HOME | NO HOA | NEW ROOF (2020) | 1st Floor Primary Bedroom | Modern Upgrades Backyard Oasis, and Space for Everyone. This Multi- Generational Home or a potential Short Term Rental (Airbnb) Money making investment tucked away on a peaceful cul-de-sac in a lovely neighborhood, this beautifully updated home offers some great modern style and room to spread out. With 5 bedrooms, 3 full baths, and a handy half-bath downstairs, it’s the kind of place where everyone can have their own space—and still gather easily in the open, welcoming main living areas. Step into the heart of the home: the remodeled kitchen with sleek European-style cabinets, quartz countertops, and an oversized island with a deep sink that’s perfect for cooking. Stainless steel appliances include a Bosch dishwasher, Whirlpool smart double oven, cooktop, and range hood, plus a roomy LG fridge. The living space flows right into a sunny backyard that feels like your own private retreat. The resurfaced pool and spa feature LED lights, fresh tiling, and a newer heater, all enclosed by a screened-in cage. Whether you're unwinding solo or entertaining a crowd, it’s all ready to go. Inside, thoughtful updates like impact windows, newer French doors, European oak stairs, and built-in ceiling speakers with multi-zone control add modern touches throughout. The primary bathroom has been freshly remodeled, along with other updates like a new water heater, electric sub-panel, and EV charger in the double garage. Close to major highways, I-75, I-4, and I-275, and close proximity to USF and the up-and-coming Uptown Tampa area. With a newer roof (2020) and recent tree trimming, this home is move-in ready and made to enjoy—indoors and out. Mortgage savings may be available for buyers of this listing.

Location

Facts and features

Type:
Residential
Parking:
Covered / Driveway / Garage Door Opener
Year Built:
1982
Lot:
0.22 Acres
Heating:
Central / Electric
Price/sqft:
$256
Cooling:
Central Air
HOA:
No Data
All facts and features
  • Flooring

    • Tile

    Heating

    • Central

    • Electric

    Cooling

    • Central Air

    Appliances

    • Built-In Oven

    • Dishwasher

    • Disposal

    • Refrigerator

    Other interior features

    • Ceiling Fan(s)

    • Eating Space In Kitchen

    • Kitchen/Family Room Combo

    • Open Floorplan

    • Stone Counters

    • Thermostat

    • Walk-In Closet(s)

    Bedrooms and bathrooms

    • Bedrooms: 5

    • Bathrooms: 1

    • Full bathrooms: 3

  • Parking

    • Covered

    • Driveway

    • Garage Door Opener

    Property

    • Levels: Two

    • Pool Private: Yes

    • Exterior Features: French Doors / Lighting / Private Mailbox / Rain Gutters / Sidewalk

    Lot

    • Lot: 0.22 Acres

    Other Property Information

    • Parcel Number: T1028191HY00000100049.0

    • Zoning: R-7

  • Type and style

    • Property Type: Residential

    • Property Sub Type: Single Family Residence

  • Utility

    • Electricity Connected

    • Public

    • Sewer Connected

    • Street Lights

    • Water Connected

  • Other financial information

    • Annual tax amount: $7,291

  • Source details

    • MLS ID: TB8410724

    Other facts

    • Construction Materials: Block

    • Foundation Details: Slab

    • Fireplace Features: Family Room

    • Laundry Features: Inside / Laundry Room

    • Lot Features: Cul-De-Sac / Landscaped

    • Patio And Porch Features: Front Porch / Rear Porch

    • Pool Features: Heated / In Ground / Screen Enclosure

    • Direction Faces: South

    • Other Structures: Shed(s)

    • Fireplace: Yes

    • Garage Spaces: 2

    • Attached Garage: Yes

    • Garage: Yes

    • Living Area: 2434

    • Water Source: Public

    • Lot Size Dimensions: 73 x 130

    • Subdivision Name: RAINTREE TERRACE SUB W

Similar Homes

4913 TEMPLE HEIGHTS ROAD UNIT A placeholder 4913 TEMPLE HEIGHTS ROAD UNIT A
2 days
Active With Contract
Multi-family
$779,000
8 bds 3,248 sqft
4913 TEMPLE HEIGHTS ROAD UNIT A
6937 RIVERGATE AVENUE placeholder 6937 RIVERGATE AVENUE
3 days
Active With Contract
House
$558,999
3 bds 2 ba 1,836 sqft
6937 RIVERGATE AVENUE
6707 DRIFTING SANDS ROAD placeholder 6707 DRIFTING SANDS ROAD
6 days
Active With Contract
House
$615,000
4 bds 2 ba 2,900 sqft
6707 DRIFTING SANDS ROAD
7224 YARDLEY WAY placeholder 7224 YARDLEY WAY
-$25K (2025/12/17)
Active With Contract
House
$525,000
4 bds 3 ba 2,418 sqft
7224 YARDLEY WAY
4712 E SERENA DRIVE placeholder 4712 E SERENA DRIVE
14 days
Active With Contract
House
$550,000
7 bds 6 ba 2,998 sqft
4712 E SERENA DRIVE
7729 ROSEWOOD GARDEN LOOP placeholder 7729 ROSEWOOD GARDEN LOOP
15 days
Active With Contract
House
$460,000
4 bds 2 ba 1,846 sqft
7729 ROSEWOOD GARDEN LOOP
10905 KEWANEE DRIVE placeholder 10905 KEWANEE DRIVE
17 days
Active With Contract
House
$489,900
4 bds 2 ba 1,892 sqft
10905 KEWANEE DRIVE
7818 CAPWOOD AVENUE placeholder 7818 CAPWOOD AVENUE
-$10K (2025/12/19)
Active With Contract
House
$449,000
5 bds 2 ba 2,021 sqft
7818 CAPWOOD AVENUE

The multiple listing information is provided by the Stellar MLS from a copyrighted compilation of listings. The compilation of listings and each individual listing are ©2026-present Stellar MLS. All Rights Reserved. The information provided is for consumers' personal, noncommercial use and may not be used for any purpose other than to identify prospective properties consumers may be interested in purchasing. All properties are subject to prior sale or withdrawal. All information provided is deemed reliable but is not guaranteed accurate, and should be independently verified. Listing courtesy of: REDFIN CORPORATION