Contact
Tell us about your needs

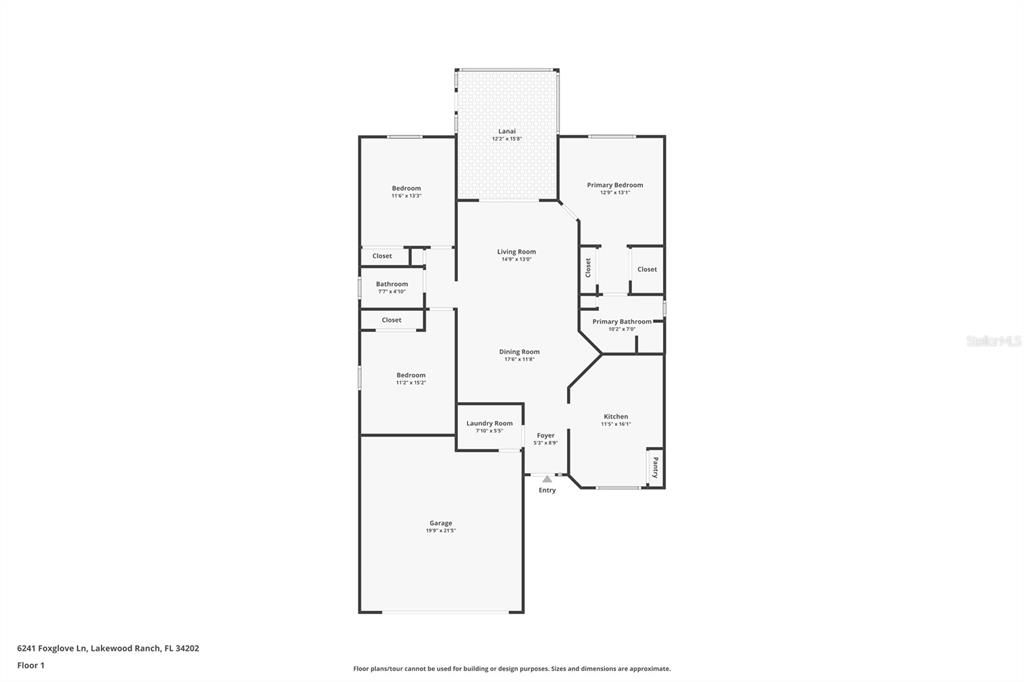
6241 FOXGLOVE LANE

House Active With Contract
$410,000

BTC: 4.74811812

ETH: 140.12303486

11 days
3 bds
2 ba
1,472 sqft
Est. Estimated sales range: $0 - $0
$0

Overview

Under contract-accepting backup offers. Welcome to the Summerfield community and your opportunity to live the Lakewood Ranch lifestyle without breaking the bank. This charming 3 bedroom, 2 bathroom home has been thoughtfully updated for comfort, style and peace of mind. Enjoy an upgraded kitchen perfect for cooking and entertaining, along with a new roof and air conditioning system installed in 2021. The home also features new hurricane-impact windows, providing year round security and energy efficient. Step outside to a fully fenced backyard, ideal for pets and outdoor gatherings, and relax on the screened-in back lanai, offering the perfect spot to unwind and enjoy Florida living. Located just moments from Summerfield Park, LWR Adventure park, Heron's Nest Nature Park. You will have easy access to sports fields, playgrounds and scenic walking trails. Families will appreciate the top rated schools and everyone will love being minutes from terrific restaurants, shopping, and all that Lakewood Ranch has to offer. This partially updated and well maintained property is in a highly desirable location and is the perfect blend of value and lifestyle.

Location

Facts and features

Type:
Residential
Parking:
No Data
Year Built:
1998
Lot:
0.14 Acres
Heating:
Central
Price/sqft:
$279
Cooling:
Central Air
HOA:
No Data
All facts and features
  • Flooring

    • Luxury Vinyl

    Heating

    • Central

    Cooling

    • Central Air

    Appliances

    • Dishwasher

    • Disposal

    • Electric Water Heater

    • Microwave

    • Range

    • Refrigerator

    Other interior features

    • Ceiling Fan(s)

    • Living Room/Dining Room Combo

    • Open Floorplan

    • Primary Bedroom Main Floor

    • Solid Surface Counters

    • Solid Wood Cabinets

    • Split Bedroom

    • Vaulted Ceiling(s)

    • Walk-In Closet(s)

    Bedrooms and bathrooms

    • Bedrooms: 3

    • Full bathrooms: 2

  • Property

    • Levels: One

    • Exterior Features: Lighting / Sidewalk / Sliding Doors

    Lot

    • Lot: 0.14 Acres

    Other Property Information

    • Parcel Number: 584143507

    • Zoning: PDR/WPE/

  • Type and style

    • Property Type: Residential

    • Property Sub Type: Single Family Residence

  • Utility

    • BB/HS Internet Available

    • Electricity Connected

    • Sewer Connected

    • Water Connected

  • Other financial information

    • HOA Frequency: Annually

    • Annual tax amount: $6,716

  • Source details

    • MLS ID: A4672617

    Other facts

    • Construction Materials: Block / Stucco

    • Foundation Details: Slab

    • Laundry Features: Inside / Laundry Room

    • Direction Faces: South

    • Garage Spaces: 2

    • Attached Garage: Yes

    • Garage: Yes

    • Living Area: 1472

    • Water Source: Public

    • Subdivision Name: SUMMERFIELD VILLAGE SUBPHASE C U9

Similar Homes

7834 HIDDEN CREEK LOOP UNIT 104 placeholder 7834 HIDDEN CREEK LOOP UNIT 104
New
Active With Contract
Townhouse
$489,900
3 bds 2 ba 2,629 sqft
7834 HIDDEN CREEK LOOP UNIT 104
11946 BROOKSIDE DRIVE placeholder 11946 BROOKSIDE DRIVE
3 days
Active With Contract
House
$465,000
2 bds 2 ba 1,575 sqft
11946 BROOKSIDE DRIVE
12618 COASTAL BREEZE WAY placeholder 12618 COASTAL BREEZE WAY
4 days
Active With Contract
House
$419,000
3 bds 2 ba 1,766 sqft
12618 COASTAL BREEZE WAY
11204 CORALBEAN DRIVE placeholder 11204 CORALBEAN DRIVE
5 days
Active With Contract
House
$425,000
3 bds 2 ba 1,358 sqft
11204 CORALBEAN DRIVE
6560 MOORINGS POINT CIRCLE UNIT 202 placeholder 6560 MOORINGS POINT CIRCLE UNIT 202
6 days
Active With Contract
Condo/Co-op
$410,000
3 bds 3 ba 2,344 sqft
6560 MOORINGS POINT CIRCLE UNIT 202
11914 WINDING WOODS WAY placeholder 11914 WINDING WOODS WAY
10 days
Active With Contract
House
$399,900
3 bds 2 ba 1,394 sqft
11914 WINDING WOODS WAY
15183 LYLA TERRACE placeholder 15183 LYLA TERRACE
16 days
Active With Contract
Townhouse
$359,900
3 bds 2 ba 1,925 sqft
15183 LYLA TERRACE
13327 TORRESINA TERRACE placeholder 13327 TORRESINA TERRACE
18 days
Active With Contract
House
$520,000
2 bds 2 ba 1,700 sqft
13327 TORRESINA TERRACE

The multiple listing information is provided by the Stellar MLS from a copyrighted compilation of listings. The compilation of listings and each individual listing are ©2025-present Stellar MLS. All Rights Reserved. The information provided is for consumers' personal, noncommercial use and may not be used for any purpose other than to identify prospective properties consumers may be interested in purchasing. All properties are subject to prior sale or withdrawal. All information provided is deemed reliable but is not guaranteed accurate, and should be independently verified. Listing courtesy of: PREFERRED SHORE LLC