Contact
Tell us about your needs

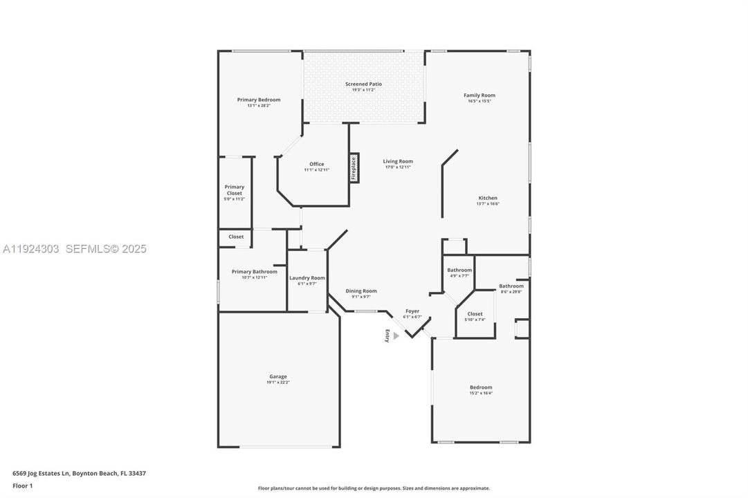
6569 Jog Estates Ln, Boynton Beach FL 33437

House For Sale
$499,900

BTC: 16.66333333

ETH: 249.95000000

1 days
2 bds
2 ba
2,299 sqft
Est. Estimated sales range: $0 - $0
$0

Overview

Back on market, Appraisal, Inspection, Clear Title Complete. Seller Motivated - Spacious single-story home in Sandhurst at Jog Estates, a boutique 55+ community in Boynton Beach, South Florida. Situated on a corner lot, this well-maintained property features two oversized primary bedrooms, a home office, and 2.5 bathrooms. The open floor plan includes a bright, all-white kitchen with island and a large den perfect for entertaining. Enjoy a private patio and lush outdoor space. Sandhurst offers resort-style amenities including a clubhouse, heated pool, tennis court, fitness center, lawn care, and gated security. With only 104 homes, it provides a quiet, exclusive setting. Only one resident must be 55 or older. Experience the best of active adult living in Boynton Beach.

Location

Facts and features

Type:
Residential
Parking:
Attached Carport / Driveway / Guest / On Street
Year Built:
2002
Lot:
7581 Square Feet
Heating:
Central
Price/sqft:
$217
Cooling:
Central Air
HOA:
$341
All facts and features
  • Flooring

    • Tile

    Heating

    • Central

    Cooling

    • Central Air

    Appliances

    • Dishwasher

    • Dryer

    • Electric Water Heater

    • Microwave

    • Electric Range

    • Washer

    Other interior features

    • First Floor Entry

    • Cooking Island

    • Pantry

    • Split Bedroom

    • Vaulted Ceiling(s)

    • Walk-In Closet(s)

    • Den/Library/Office

    • Family Room

    • Utility Room/Laundry

    Bedrooms and bathrooms

    • Bedrooms: 2

    • Bathrooms: 1

    • Full bathrooms: 2

  • Parking

    • Attached Carport

    • Driveway

    • Guest

    • On Street

    Property

    • Exterior Features: Lighting

    Lot

    • Lot: 7581 Square Feet

    Other Property Information

    • Parcel Number: 00424527090000120

    • Zoning: PUD

  • Type and style

    • Property Type: Residential

    • Property Sub Type: Single Family Residence

  • Other financial information

    • HOA: $341

    • HOA Frequency: Monthly

    • Annual tax amount: $3,545

  • Source details

    • MLS ID: A11924303

    Other facts

    • Construction Materials: CBS Construction

    • Laundry Features: Utility Room/Laundry / Washer/Dryer Hook-Up

    • Lot Features: Less Than 1/4 Acre Lot

    • Patio And Porch Features: Screened Porch

    • Direction Faces: South

    • Architectural Style: Detached / One Story

    • Garage Spaces: 2

    • Attached Garage: Yes

    • Garage: Yes

    • Living Area: 2299

    • Water Source: Municipal Water

    • Subdivision Name: Jog Estates

Similar Homes

12363 PLEASANT GREEN WAY placeholder 12363 PLEASANT GREEN WAY
New
For Sale
House
$399,900
3 bds 2 ba 1,671 sqft
12363 PLEASANT GREEN WAY
6374 Park Lake, Boynton Beach, FL 33437 placeholder 6374 Park Lake, Boynton Beach, FL 33437
1 days
For Sale
Townhouse
$395,000
3 bds 2 ba 1,422 sqft
6374 Park Lake, Boynton Beach, FL 33437
7689 Las Cruces, Boynton Beach, FL 33437 placeholder 7689 Las Cruces, Boynton Beach, FL 33437
1 days
For Sale
House
$529,000
3 bds 2 ba 1,858 sqft
7689 Las Cruces, Boynton Beach, FL 33437
7851 Sailing Shores, Boynton Beach, FL 33437 placeholder 7851 Sailing Shores, Boynton Beach, FL 33437
1 days
For Sale
House
$518,000
3 bds 2 ba 2,073 sqft
7851 Sailing Shores, Boynton Beach, FL 33437
7791 Campania, Boynton Beach, FL 33472 placeholder 7791 Campania, Boynton Beach, FL 33472
2 days
For Sale
House
$425,000
3 bds 2 ba 1,884 sqft
7791 Campania, Boynton Beach, FL 33472
10398 Gold Leaf, Boynton Beach, FL 33437 placeholder 10398 Gold Leaf, Boynton Beach, FL 33437
2 days
For Sale
House
$595,000
3 bds 2 ba 2,331 sqft
10398 Gold Leaf, Boynton Beach, FL 33437
10845 Royal Caribbean, Boynton Beach, FL 33437 placeholder 10845 Royal Caribbean, Boynton Beach, FL 33437
2 days
For Sale
House
$410,000
3 bds 2 ba 1,788 sqft
10845 Royal Caribbean, Boynton Beach, FL 33437
6511 Malta, Boynton Beach, FL 33437 placeholder 6511 Malta, Boynton Beach, FL 33437
2 days
For Sale
House
$539,000
3 bds 2 ba 2,249 sqft
6511 Malta, Boynton Beach, FL 33437

The multiple listing information is provided by the Miami Association of REALTORS® from a copyrighted compilation of listings. The compilation of listings and each individual listing are ©2025-present Miami Association of REALTORS®. All Rights Reserved. The information provided is for consumers' personal, noncommercial use and may not be used for any purpose other than to identify prospective properties consumers may be interested in purchasing. All properties are subject to prior sale or withdrawal. All information provided is deemed reliable but is not guaranteed accurate, and should be independently verified. Listing courtesy of: EXP Realty LLC