Contact
Tell us about your needs

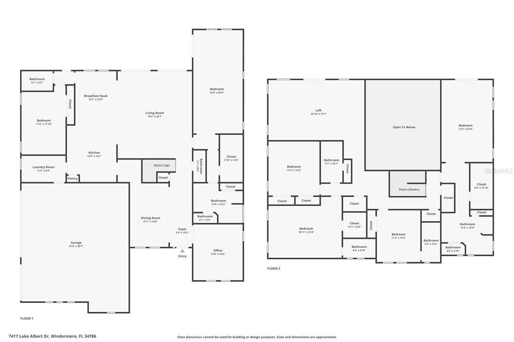
7417 LAKE ALBERT DRIVE

House Active With Contract
$1,690,000

BTC: 17.78947368

ETH: 545.16129032

15 days
6 bds
6 ba
5,006 sqft
Est. Estimated sales range: $0 - $0
$0

Overview

Under contract-accepting backup offers. Back on the market - buyer could not secure financing. Furniture has been removed. Welcome to your private paradise at 7417 Lake Albert Drive, where stunning sunrises and serene waterfront living await you. Owners have the option to build a dock and enjoy some water sports on this beautiful lake. This exceptional 6-bed, 6.5-bath residence, nestled in the highly sought-after Lake Burden community, offers an unparalleled lifestyle. Imagine waking up to tranquil lake views from your master suite and spending evenings on your patio, the water shimmering as the sun comes up. The home will be sold unfurnished, providing a blank canvas for you to create the home of your dreams (furniture is optional at a price). The backyard is a true oasis, featuring a sparkling pool and spa, a spacious outdoor kitchen, and a grill, all perfectly positioned to maximize your enjoyment of the picturesque scenery. This is more than a home; it's a front-row seat to the beauty of Lake Burden. Beyond your private retreat, the Lake Burden community provides an array of amenities that cater to a vibrant, active lifestyle. Enjoy friendly matches on the tennis courts, take a stroll along the scenic walking paths, or stay fit at the community gym. The neighborhood also features a children's playground, a baseball field, and a pier extending onto the tranquil Lake Burden. The prime location places you just a short drive from Central Florida's world-renowned attractions, including Walt Disney World and Universal Studios, as well as endless options for dining, shopping, and entertainment. This is your chance to own a piece of paradise in a community that offers the perfect blend of luxury, convenience, and natural beauty.

Location

Facts and features

Type:
Residential
Parking:
No Data
Year Built:
2014
Lot:
2.86 Acres
Heating:
Central / Electric
Price/sqft:
$338
Cooling:
Central Air
HOA:
$278
All facts and features
  • Flooring

    • Carpet

    • Tile

    Heating

    • Central

    • Electric

    Cooling

    • Central Air

    Appliances

    • Built-In Oven

    • Cooktop

    • Dishwasher

    • Dryer

    • Microwave

    • Refrigerator

    • Washer

    Other interior features

    • Ceiling Fan(s)

    Bedrooms and bathrooms

    • Bedrooms: 6

    • Bathrooms: 1

    • Full bathrooms: 6

  • Property

    • Levels: Two

    • Pool Private: Yes

    • Exterior Features: Sidewalk

    Lot

    • Lot: 2.86 Acres

    Other Property Information

    • Parcel Number: 252327432101760

    • Zoning: P-D

  • Type and style

    • Property Type: Residential

    • Property Sub Type: Single Family Residence

  • Utility

    • BB/HS Internet Available

    • Cable Available

    • Electricity Available

    • Phone Available

    • Public

    • Water Available

  • Other financial information

    • HOA: $278

    • HOA Frequency: Quarterly

    • Annual tax amount: $21,415

  • Source details

    • MLS ID: S5135158

    Other facts

    • Construction Materials: Other / Stucco

    • Foundation Details: Slab

    • Fireplace Features: Outside

    • Laundry Features: Laundry Room

    • Pool Features: In Ground

    • Direction Faces: Southwest

    • Fireplace: Yes

    • Garage Spaces: 3

    • Attached Garage: Yes

    • Garage: Yes

    • Living Area: 5006

    • Water Source: Public

    • Subdivision Name: LAKE BURDEN

Similar Homes

14238 CREST PALM AVENUE placeholder 14238 CREST PALM AVENUE
New
Active With Contract
House
$1,222,740
6 bds 4 ba 4,222 sqft
14238 CREST PALM AVENUE
11474 CLAYMONT CIRCLE placeholder 11474 CLAYMONT CIRCLE
5 days
Active With Contract
House
$1,350,000
5 bds 4 ba 3,238 sqft
11474 CLAYMONT CIRCLE
9215 CYPRESS COVE DRIVE placeholder 9215 CYPRESS COVE DRIVE
28 days
Active With Contract
House
$1,250,000
5 bds 4 ba 3,919 sqft
9215 CYPRESS COVE DRIVE
5412 WATER CREEK DRIVE placeholder 5412 WATER CREEK DRIVE
-$175K (2025/12/09)
Active With Contract
House
$1,825,000
4 bds 4 ba 4,247 sqft
5412 WATER CREEK DRIVE
10159 ROYAL ISLAND COURT placeholder 10159 ROYAL ISLAND COURT
42 days
Active With Contract
House
$1,345,000
5 bds 4 ba 4,474 sqft
10159 ROYAL ISLAND COURT
11318 FENIMORE COURT COURT placeholder 11318 FENIMORE COURT COURT
-$30K (2025/12/09)
Active With Contract
House
$1,249,000
4 bds 3 ba 2,523 sqft
11318 FENIMORE COURT COURT
10403 PROVENCE DRIVE placeholder 10403 PROVENCE DRIVE
-$50K (2025/09/25)
Active With Contract
House
$1,299,999
6 bds 5 ba 4,615 sqft
10403 PROVENCE DRIVE
6161 BLAKEFORD DRIVE placeholder 6161 BLAKEFORD DRIVE
-$510K (2025/11/07)
Active With Contract
House
$1,690,000
5 bds 4 ba 5,704 sqft
6161 BLAKEFORD DRIVE

The multiple listing information is provided by the Stellar MLS from a copyrighted compilation of listings. The compilation of listings and each individual listing are ©2026-present Stellar MLS. All Rights Reserved. The information provided is for consumers' personal, noncommercial use and may not be used for any purpose other than to identify prospective properties consumers may be interested in purchasing. All properties are subject to prior sale or withdrawal. All information provided is deemed reliable but is not guaranteed accurate, and should be independently verified. Listing courtesy of: TEAM DONOVAN