Contact
Tell us about your needs

742 W DEACON PLACE

House Active With Contract
$289,900

BTC: 3.35726694

ETH: 99.07723855

14 days
4 bds
2 ba
1,487 sqft
Est. Estimated sales range: $0 - $0
$0

Overview

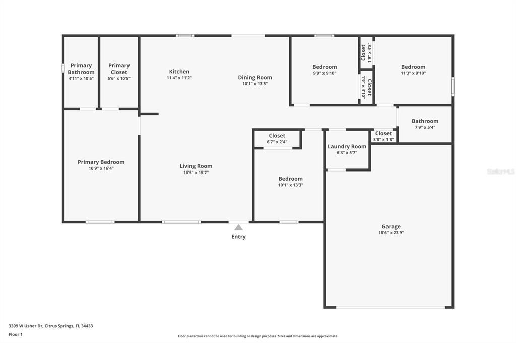
Under contract-accepting backup offers. Under Construction. I am excited to share details about a brand-new listing: the Banyan model, a four-bedroom home located in Citrus Springs. This modern home features an open-concept, split floor plan. You will love the high ceilings and abundant windows that create a bright, inviting atmosphere throughout. A key highlight is that the property is fully fenced, offering excellent privacy and security. The impressive kitchen is designed for functionality and style, offering a large island perfect for meal preparation or casual dining. It boasts generous storage with soft-close cabinets, gleaming granite countertops, and elegant stainless steel appliances. The space is completed with an undermount sink and recessed lighting. The primary bedroom serves as a comfortable retreat, featuring a tray ceiling, a spacious walk-in closet, and an en-suite bathroom with granite countertops and beautiful wall tiles. For comfort and convenience, easy-care LVP flooring flows through the living areas and bedrooms, with durable tile in the bathrooms and laundry room. Additional features include a covered entryway, a conveniently located laundry room, modern light fixtures, and a garage door opener. This is a fantastic opportunity, and I encourage you to schedule a showing today to see if the Banyan model could be your new home. Photos are of model home, actual colors may vary.

Location

Facts and features

Type:
Residential
Parking:
No Data
Year Built:
2025
Lot:
0.23 Acres
Heating:
Central
Price/sqft:
$195
Cooling:
Central Air
HOA:
No Data
All facts and features
  • Flooring

    • Luxury Vinyl

    Heating

    • Central

    Cooling

    • Central Air

    Appliances

    • Dishwasher

    • Disposal

    • Electric Water Heater

    • Microwave

    • Range

    • Refrigerator

    Other interior features

    • Cathedral Ceiling(s)

    • Ceiling Fan(s)

    Bedrooms and bathrooms

    • Bedrooms: 4

    • Full bathrooms: 2

  • Property

    • Levels: One

    • Exterior Features: Balcony / Lighting / Other

    Lot

    • Lot: 0.23 Acres

    Other Property Information

    • Parcel Number: 18E17S100010008100120

    • Zoning: PDR

  • Type and style

    • Property Type: Residential

    • Property Sub Type: Single Family Residence

  • Utility

    • Public

  • Other financial information

    • Annual tax amount: $191

  • Source details

    • MLS ID: O6359914

    Other facts

    • Construction Materials: Block

    • Foundation Details: Slab

    • Laundry Features: Laundry Room

    • Direction Faces: South

    • Garage Spaces: 2

    • Attached Garage: Yes

    • Garage: Yes

    • Living Area: 1487

    • Water Source: Public

    • Lot Size Dimensions: 80 x 125

    • Subdivision Name: CITRUS SPGS UNIT 01

Similar Homes

7988 N TINY LILY DRIVE placeholder 7988 N TINY LILY DRIVE
New
Active With Contract
House
$285,000
3 bds 2 ba 1,529 sqft
7988 N TINY LILY DRIVE
665 E NEMO DRIVE placeholder 665 E NEMO DRIVE
2 days
Active With Contract
House
$289,000
4 bds 2 ba 1,473 sqft
665 E NEMO DRIVE
8984 N GRECO TERRACE placeholder 8984 N GRECO TERRACE
4 days
Active With Contract
House
$234,900
3 bds 2 ba 1,405 sqft
8984 N GRECO TERRACE
2815 W BRAVURA DRIVE placeholder 2815 W BRAVURA DRIVE
-$5K (2025/12/04)
Active With Contract
House
$234,900
3 bds 2 ba 1,405 sqft
2815 W BRAVURA DRIVE
853 W LUDLUM STREET placeholder 853 W LUDLUM STREET
14 days
Active With Contract
House
$255,000
3 bds 2 ba 1,447 sqft
853 W LUDLUM STREET
275 W BRIMSON PLACE placeholder 275 W BRIMSON PLACE
-$5K (2025/12/04)
Active With Contract
House
$234,900
3 bds 2 ba 1,405 sqft
275 W BRIMSON PLACE
7229 N GIBRALTER DRIVE placeholder 7229 N GIBRALTER DRIVE
14 days
Active With Contract
House
$279,900
4 bds 2 ba 1,833 sqft
7229 N GIBRALTER DRIVE
10986 N MATARO AVENUE placeholder 10986 N MATARO AVENUE
-$6K (2025/12/12)
Active With Contract
House
$233,900
3 bds 2 ba 1,405 sqft
10986 N MATARO AVENUE

The multiple listing information is provided by the Stellar MLS from a copyrighted compilation of listings. The compilation of listings and each individual listing are ©2025-present Stellar MLS. All Rights Reserved. The information provided is for consumers' personal, noncommercial use and may not be used for any purpose other than to identify prospective properties consumers may be interested in purchasing. All properties are subject to prior sale or withdrawal. All information provided is deemed reliable but is not guaranteed accurate, and should be independently verified. Listing courtesy of: OAK AVENUE REAL ESTATE LLC