Contact
Tell us about your needs

812 WHITE BIRCH COURT

House Active With Contract
$350,000

BTC: 11.66666667

ETH: 175.00000000

10 days
3 bds
2 ba
1,990 sqft
Est. Estimated sales range: $0 - $0
$0

Overview

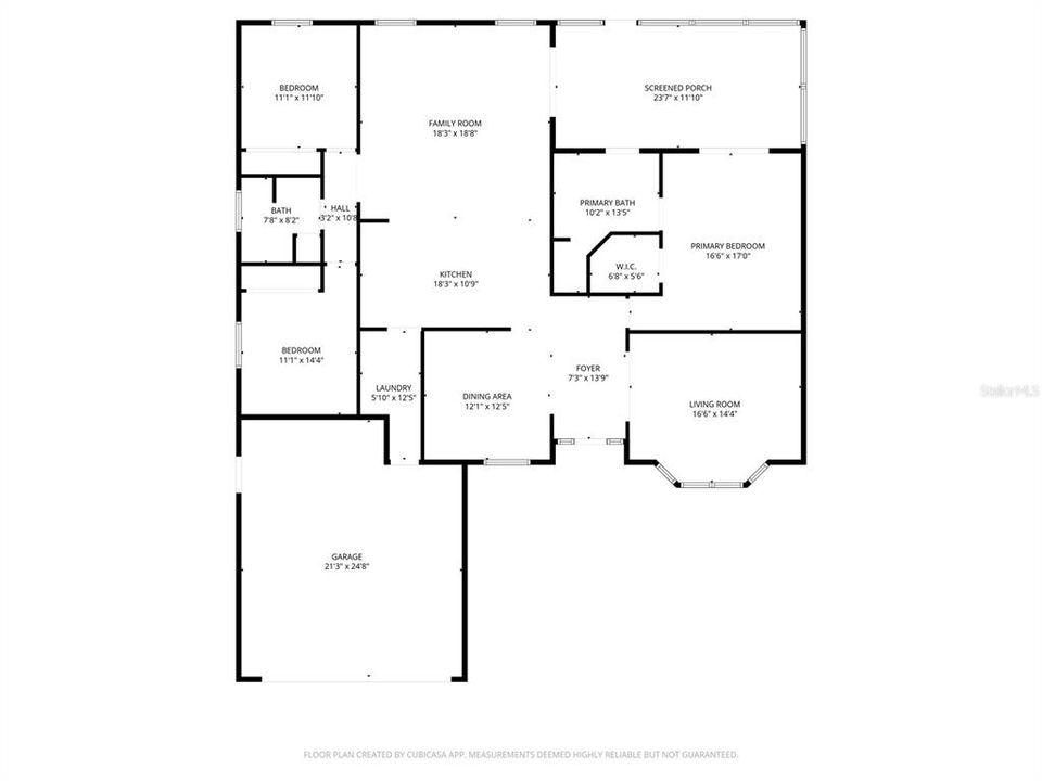
Under contract-accepting backup offers. This cozy 3-bedroom, 2-bath home offers nearly 2,000 square feet of comfortable living space on higher ground in a quiet cul-de-sac. The welcoming split floor plan features vaulted ceilings, a spacious primary suite with a large walk-in closet, and an oversized primary bath. The kitchen provides ample storage and quality appliances, while the enclosed Florida room is perfect for relaxing or entertaining. Enjoy peace of mind with a roof from 2020, an A/C system from 2021, gutters, hurricane shutters, and a larger two-car garage. The beautiful lawn is watered from a well to save cost, and a scenic walking path is just steps away. Located in a friendly neighborhood with a low-cost annual HOA, this home is close to shopping, dining, and a nearby hospital, offering both convenience and comfort. A wonderful blend of space, functionality, and location—ready to call home.

Location

Facts and features

Type:
Residential
Parking:
No Data
Year Built:
1991
Lot:
0.23 Acres
Heating:
Electric
Price/sqft:
$176
Cooling:
Central Air
HOA:
$181
All facts and features
  • Flooring

    • Carpet

    • Ceramic Tile

    • Laminate

    Heating

    • Electric

    Cooling

    • Central Air

    Appliances

    • Dishwasher

    • Disposal

    • Dryer

    • Electric Water Heater

    • Microwave

    • Range

    • Refrigerator

    • Washer

    Other interior features

    • Eating Space In Kitchen

    • High Ceilings

    • Kitchen/Family Room Combo

    • Thermostat

    • Vaulted Ceiling(s)

    • Walk-In Closet(s)

    Bedrooms and bathrooms

    • Bedrooms: 3

    • Full bathrooms: 2

  • Property

    • Levels: One

    • Exterior Features: Hurricane Shutters / Irrigation System / Sidewalk

    Lot

    • Lot: 0.23 Acres

    Other Property Information

    • Parcel Number: 801423000340

    • Zoning: RESI

  • Type and style

    • Property Type: Residential

    • Property Sub Type: Single Family Residence

  • Utility

    • Cable Connected

    • Electricity Connected

    • Sewer Connected

    • Sprinkler Well

    • Street Lights

    • Underground Utilities

    • Water Connected

  • Other financial information

    • HOA: $181

    • HOA Frequency: Annually

    • Annual tax amount: $1,679

  • Source details

    • MLS ID: O6354544

    Other facts

    • Construction Materials: Block

    • Foundation Details: Slab

    • Laundry Features: Inside / Laundry Room

    • Direction Faces: North

    • Garage Spaces: 2

    • Attached Garage: Yes

    • Garage: Yes

    • Living Area: 1990

    • Water Source: None

    • Subdivision Name: SHADOW RIDGE PH 01

Similar Homes

351 HAVERSHAM ROAD placeholder 351 HAVERSHAM ROAD
1 days
Active With Contract
House
$379,990
3 bds 2 ba 1,564 sqft
351 HAVERSHAM ROAD
2301 PINE HILL PLACE placeholder 2301 PINE HILL PLACE
2 days
Active With Contract
House
$259,000
3 bds 1 ba 1,050 sqft
2301 PINE HILL PLACE
115 SYCAMORE DRIVE placeholder 115 SYCAMORE DRIVE
2 days
Active With Contract
House
$390,000
3 bds 2 ba 1,875 sqft
115 SYCAMORE DRIVE
1183 E LOMBARDY DRIVE placeholder 1183 E LOMBARDY DRIVE
3 days
Active With Contract
House
$269,000
3 bds 2 ba 1,514 sqft
1183 E LOMBARDY DRIVE
1364 W HARTLEY CIRCLE placeholder 1364 W HARTLEY CIRCLE
4 days
Active With Contract
House
$260,000
3 bds 1 ba 920 sqft
1364 W HARTLEY CIRCLE
1200 N THORPE AVENUE placeholder 1200 N THORPE AVENUE
6 days
Active With Contract
House
$400,000
3 bds 2 ba 2,069 sqft
1200 N THORPE AVENUE
2156 EL CAMPO AVENUE placeholder 2156 EL CAMPO AVENUE
6 days
Active With Contract
House
$299,999
4 bds 2 ba 1,986 sqft
2156 EL CAMPO AVENUE
651 LEAR TERRACE placeholder 651 LEAR TERRACE
6 days
Active With Contract
House
$250,000
3 bds 1 ba 1,123 sqft
651 LEAR TERRACE

The multiple listing information is provided by the Stellar MLS from a copyrighted compilation of listings. The compilation of listings and each individual listing are ©2025-present Stellar MLS. All Rights Reserved. The information provided is for consumers' personal, noncommercial use and may not be used for any purpose other than to identify prospective properties consumers may be interested in purchasing. All properties are subject to prior sale or withdrawal. All information provided is deemed reliable but is not guaranteed accurate, and should be independently verified. Listing courtesy of: COLDWELL BANKER REALTY