Contact
Tell us about your needs

9407 PINEBARK COURT

House Active With Contract
$510,000

BTC: 5.87219344

ETH: 255.00000000

-$85K (2025/12/01)
223 days
3 bds
2 ba
2,030 sqft
Est. Estimated sales range: $0 - $0
$0

Overview

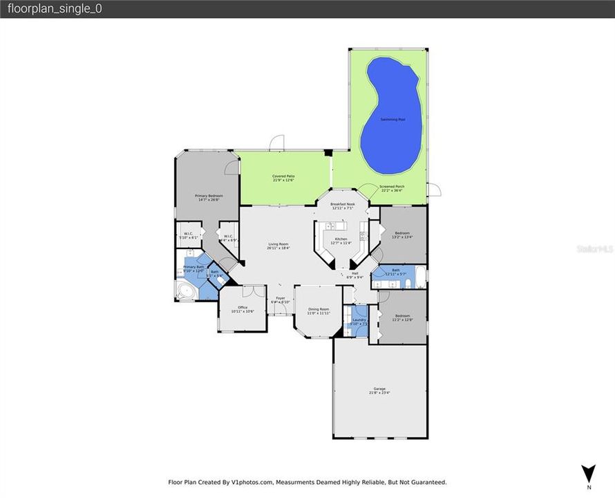
Under contract-accepting backup offers. Beautiful home situated on a serene canal front estate lot in Meadowood Golf & Tennis Club Community. From the moment you step inside, the expansive 12-foot ceilings and abundance of windows, highlights the stunning backyard space. This solid block construction home features 2030 square feet with three bedrooms two full bathrooms, an office or den, and additional dining area. You will appreciate the abundance of natural light illuminating the entire home. Split floor plan featuring a spacious primary bedroom with two walk-in closets and a private bath for added privacy. Over $70K in upgrades for your convenience include Italian porcelain tile throughout, new light fixtures, fingerprint-resistant stainless-steel appliances, two new air conditioning units installed in 2022, electric shades, a new garage door and gutters, and a pool converted to saltwater. Roof 2014. Within this serene and private community your new sanctuary awaits. Savor your morning coffee or unwind in the evening embraced by the nature's beauty. If you choose you can join the MWGTC for more adventure. If you enjoy golfing, going on walks or bike rides, you will not be disappointed. Make this hidden treasure yours. Owners are licensed Florida realtors. Furnishings are negotiable. Call today for your own private showing.

Location

Facts and features

Type:
Residential
Parking:
Garage Door Opener
Year Built:
1992
Lot:
0.39 Acres
Heating:
Central
Price/sqft:
$251
Cooling:
Central Air
HOA:
$900
All facts and features
  • Flooring

    • Porcelain Tile

    Heating

    • Central

    Cooling

    • Central Air

    Appliances

    • Convection Oven

    • Dishwasher

    • Disposal

    • Dryer

    • Electric Water Heater

    • Ice Maker

    • Microwave

    • Range

    • Refrigerator

    • Washer

    Other interior features

    • Ceiling Fan(s)

    • Eating Space In Kitchen

    • High Ceilings

    • Pest Guard System

    • Solid Surface Counters

    • Split Bedroom

    • Walk-In Closet(s)

    • Window Treatments

    Bedrooms and bathrooms

    • Bedrooms: 3

    • Full bathrooms: 2

  • Parking

    • Garage Door Opener

    Property

    • Levels: One

    • Pool Private: Yes

    • Exterior Features: Hurricane Shutters / Irrigation System / Lighting / Private Mailbox / Rain Gutters / Sliding Doors

    Lot

    • Lot: 0.39 Acres

    Other Property Information

    • Parcel Number: 132780100500001

    • Zoning: PLANNED UN

  • Type and style

    • Property Type: Residential

    • Property Sub Type: Single Family Residence

  • Utility

    • Cable Connected

    • Sprinkler Well

    • Street Lights

  • Other financial information

    • HOA: $900

    • HOA Frequency: Quarterly

    • Annual tax amount: $5,621

  • Source details

    • MLS ID: TB8379479

    Other facts

    • Construction Materials: Block / Stucco

    • Foundation Details: Slab

    • Laundry Features: Inside / Laundry Room

    • Lot Features: Near Golf Course / Street Dead-End

    • Patio And Porch Features: Covered / Front Porch / Rear Porch / Screened

    • Pool Features: Gunite / In Ground / Lighting / Salt Water / Screen Enclosure

    • Window Features: Shades

    • Direction Faces: North

    • Garage Spaces: 2

    • Attached Garage: Yes

    • Garage: Yes

    • Living Area: 2030

    • Water Source: Private

    • Lot Size Dimensions: 112 x 150

    • Subdivision Name: MONTE CARLO COUNTRY CLUB

Similar Homes

301 Silver Sands, Fort Pierce, FL 34945 placeholder 301 Silver Sands, Fort Pierce, FL 34945
-$28K (2025/05/30)
Active With Contract
House
$411,995
4 bds 3 ba 1,609 sqft
301 Silver Sands, Fort Pierce, FL 34945
9873 Orange, Fort Pierce, FL 34945 placeholder 9873 Orange, Fort Pierce, FL 34945
-$70K (2025/11/21)
Active With Contract
House
$625,000
3 bds 2 ba 1,939 sqft
9873 Orange, Fort Pierce, FL 34945
2664 Conifer, Fort Pierce, FL 34951 placeholder 2664 Conifer, Fort Pierce, FL 34951
-$45K (2025/12/02)
Active With Contract
House
$405,000
2 bds 2 ba 1,832 sqft
2664 Conifer, Fort Pierce, FL 34951

The multiple listing information is provided by the Stellar MLS from a copyrighted compilation of listings. The compilation of listings and each individual listing are ©2025-present Stellar MLS. All Rights Reserved. The information provided is for consumers' personal, noncommercial use and may not be used for any purpose other than to identify prospective properties consumers may be interested in purchasing. All properties are subject to prior sale or withdrawal. All information provided is deemed reliable but is not guaranteed accurate, and should be independently verified. Listing courtesy of: COASTAL PROPERTIES GROUP INTERNATIONAL